Eladó Ház- házrész
Hirdetéskód: 9302798
Ingatlan 4 You Kft.
Felújításhoz személyi kölcsönt keres? Kalkuláljon itt! →
Ez a hirdetés megfelelhet a FIX 3%-os programnak.
Tudj meg többet a részletekről itt.
145.00 m2
ALAPTERÜLET4
SZOBASZÁMnincs megadva
ÉPÍTÉSnincs megadva
FŰTÉS- CSOK igénybe vehető nem
- Tetőtér beépíthető nem
- Klíma nem
- Szigetelt nem
A+++
A++
A+
A
B
C
D
E
F
G
H
I
Az ingatlan leírása
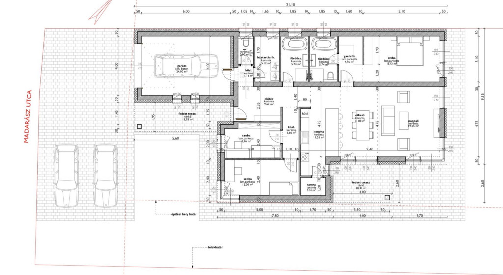
Nyúl hegyben, a közkedvelt Madarász utcában, kialakult lakókörnyezetben, 808 m2-es, körbekerített telken, ÚJ ÉPÍTÉSŰ, nettó 122,65 bruttó 169 m2-es, átgondolt tervezésű, kiváló alaprajzi elrendezésű, a mai kor igényes és exkluzív elvárásait maximálisan kielégítő, 3 szoba + nappalis, 2 fürdőszobás, PRÉMIUM minőségben kivitelezett, modern megjelenésű családi ház, 22,26 m2-es terasszal, 24 m2-es garázzsal eladó.
Emeltszintű szerkezetkész ár: 134 850 000 HUF (telek vételárát egyaránt tartalmazza)
Érd.:
A családi ház Nyúl természetközeli részén helyezkedik el, ahol az otthon kényelme a zöldövezeti nyugalommal párosul.
A családi ház tervezésekor legfőbb szempont volt egy környezettudatos, biztonságos lakókörnyezet megvalósítása, mely a mai kor igényeihez igazodva szolgálja a család minden tagjának kényelmét.
Műszaki tartalom, ami garantálja a Prémium minőséget:
- a korszerű építési technológiával épülő ingatlan Porotherm 30 N+F falazattal és 20 cm vastag hőszigeteléssel készül
- a modern lapos tető, mellyel a ház épül nem csupán esztétikailag látványos, hanem egy tudatosan kihasznált felület, a rajta elhelyezhető napelemes rendszernek, mely biztosítja az energiahatékony működést
- A+ energetikai besorolás - a ház fűtési rendszerét korszerű és környezetkímélő hőszivattyú szolgáltatja, mely az innovatív és környezettudatos gépészeti megoldások egyik kulcseleme
- a családi ház homlokzata külső díszítő burkolatot kap, amely nemcsak időtálló, hanem egyedi, karakteres megjelenést is biztosít az épületnek, mely eleganciát sugall, miközben harmonikusan illeszkedik a környezethez és emeli az ingatlan esztétikai értékét
- design és építészeti értéket tovább fokozzák a 3 rétegű, nagy üvegfelületekkel rendelkező, keskeny keretes, modern stílusú Internorm nyílászárók, melyek beépítésre kerülnek
- opcionális informatikai alapokon működő okos otthon rendszer, hogy az otthona egy applikáción keresztül automatizált és vezérelhető legyen, biztonságos, intelligens, környezetbarát megoldásokon keresztül
A családi ház kulcsrakész állapotban is megvásárolható.
• Ügyfeleink ingatlan vásárlását hozzáértő hitel tanácsadással, illetve teljes körű, ingyenes banki ügyintézéssel segítjük (támogatott és piaci lakáshitelek, falusi CSOK, babaváró hitel, személyi kölcsön vagy akár Lakástakarék Pénztár)
• Kiemelt banki kedvezményeket nyújtunk partner pénzintézeteink kínálatából (kedvezményes kamat, ingyenes előtörlesztés, egyedi akciók)
• Az összes bank ajánlata egy helyen !
• Kényelmi szolgáltatásként lakásbiztosítás, illetve hitelfedezeti biztosítás megkötésében is segítséget nyújtunk.
Emeltszintű szerkezetkész ár: 134 850 000 HUF (telek vételárát egyaránt tartalmazza)
Érd.:
A családi ház Nyúl természetközeli részén helyezkedik el, ahol az otthon kényelme a zöldövezeti nyugalommal párosul.
A családi ház tervezésekor legfőbb szempont volt egy környezettudatos, biztonságos lakókörnyezet megvalósítása, mely a mai kor igényeihez igazodva szolgálja a család minden tagjának kényelmét.
Műszaki tartalom, ami garantálja a Prémium minőséget:
- a korszerű építési technológiával épülő ingatlan Porotherm 30 N+F falazattal és 20 cm vastag hőszigeteléssel készül
- a modern lapos tető, mellyel a ház épül nem csupán esztétikailag látványos, hanem egy tudatosan kihasznált felület, a rajta elhelyezhető napelemes rendszernek, mely biztosítja az energiahatékony működést
- A+ energetikai besorolás - a ház fűtési rendszerét korszerű és környezetkímélő hőszivattyú szolgáltatja, mely az innovatív és környezettudatos gépészeti megoldások egyik kulcseleme
- a családi ház homlokzata külső díszítő burkolatot kap, amely nemcsak időtálló, hanem egyedi, karakteres megjelenést is biztosít az épületnek, mely eleganciát sugall, miközben harmonikusan illeszkedik a környezethez és emeli az ingatlan esztétikai értékét
- design és építészeti értéket tovább fokozzák a 3 rétegű, nagy üvegfelületekkel rendelkező, keskeny keretes, modern stílusú Internorm nyílászárók, melyek beépítésre kerülnek
- opcionális informatikai alapokon működő okos otthon rendszer, hogy az otthona egy applikáción keresztül automatizált és vezérelhető legyen, biztonságos, intelligens, környezetbarát megoldásokon keresztül
A családi ház kulcsrakész állapotban is megvásárolható.
• Ügyfeleink ingatlan vásárlását hozzáértő hitel tanácsadással, illetve teljes körű, ingyenes banki ügyintézéssel segítjük (támogatott és piaci lakáshitelek, falusi CSOK, babaváró hitel, személyi kölcsön vagy akár Lakástakarék Pénztár)
• Kiemelt banki kedvezményeket nyújtunk partner pénzintézeteink kínálatából (kedvezményes kamat, ingyenes előtörlesztés, egyedi akciók)
• Az összes bank ajánlata egy helyen !
• Kényelmi szolgáltatásként lakásbiztosítás, illetve hitelfedezeti biztosítás megkötésében is segítséget nyújtunk.