Eladó Ház- házrész
Hirdetéskód: 9245915
Nyíregyháza Dózsa György út 32-34 - OTP Ingatlanpont Iroda
Ez a hirdetés megfelelhet a FIX 3%-os programnak.
Tudj meg többet a részletekről itt.
143.00 m2
ALAPTERÜLET3
SZOBASZÁMnincs megadva
ÉPÍTÉSnincs megadva
FŰTÉS- CSOK igénybe vehető nem
- Tetőtér beépíthető nem
- Építés éve 2026
- Klíma nem
- Szigetelt nem
A+++
A++
A+
A
B
C
D
E
F
G
H
I
Az ingatlan leírása
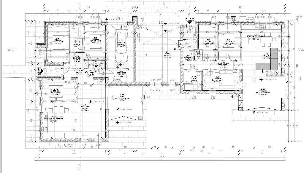
Nyíregyháza csendes, kertvárosi részén kínálunk megvételre egy új építésű, kétlakásos ikerház egyik lakását saját kertkapcsolattal és kocsibeállóval. Az ingatlan összesen 143 négyzetméter alapterületű, amelyből 24 négyzetméter fedett, gépkocsi beálló, valamint 18,7 négyzetméter terasz tartozik hozzá. A lakás 3 szobás kialakítású, kiváló elosztású, világos terekkel rendelkezik, ideális választás családok számára. A telek mérete 550 négyzetméter. Az átadás tervezett időpontja 2026.08 vége.
Az ingatlan magas műszaki tartalommal, korszerű szerkezeti megoldásokkal és energiahatékony technológiával épül, amely hosszú távon alacsony fenntartási költségeket és magas komfortérzetet biztosít. A fűtés korszerű hőszivattyús rendszerrel kerül kialakításra, padlófűtéssel, amely egyenletes hőérzetet és gazdaságos üzemeltetést biztosít. Az épület 30 centiméter vastag Porotherm hőszigetelő téglafalazattal készül, amelyet 15 centiméter vastag grafitos homlokzati hőszigetelés egészít ki. A lakások között magas hanggátlású, 51 decibeles lakáselválasztó fal biztosítja a nyugalmat és az intimitást. A födémszerkezetek és aljzatok hálóvasalt vasbetonból készülnek, többrétegű hő és vízszigeteléssel, a padlóburkolatok alatt lépésálló hőszigeteléssel.
A belső terekben kerámia és laminált padlóburkolatok kerülnek kialakításra, a terasz fagyálló és csúszásmentes burkolattal készül. A tetőszerkezet minőségi fa ácsszerkezettel és betoncserepes fedéssel valósul meg, korszerű hő és páratechnikai rétegrenddel. A kivitelezés során kizárólag jól ismert, prémium minőségű gyártók anyagai kerülnek beépítésre, többek között Baumit, Austrotherm, Mapei és Rockwool termékek, amelyek garantálják az épület tartósságát, megbízhatóságát és hosszú élettartamát.
Az átgondolt tervezés, a kiváló műszaki megoldások és a nyugodt környezet együttesen teszik ezt az ingatlant valódi értékálló otthonná. Ideális választás mindazok számára, akik új építésű, minőségi ingatlant keresnek Nyíregyházán. További információért, részletes műszaki tartalomért vagy megtekintés egyeztetéséhez kérem, keressen bizalommal.
OTP Banki hátterünknek köszönhetően finanszírozási igényekben (pl. Otthon Start Hitelprogram, Babaváró, Falusi CSOK, CSOK Plusz, Lakáshitel, Személyi kölcsön stb.), illetve biztosítások tekintetében is díjmentesen, soron kívüli ügyintézéssel segítem ügyfeleim! Referenciaszám: M320215
Az ingatlan magas műszaki tartalommal, korszerű szerkezeti megoldásokkal és energiahatékony technológiával épül, amely hosszú távon alacsony fenntartási költségeket és magas komfortérzetet biztosít. A fűtés korszerű hőszivattyús rendszerrel kerül kialakításra, padlófűtéssel, amely egyenletes hőérzetet és gazdaságos üzemeltetést biztosít. Az épület 30 centiméter vastag Porotherm hőszigetelő téglafalazattal készül, amelyet 15 centiméter vastag grafitos homlokzati hőszigetelés egészít ki. A lakások között magas hanggátlású, 51 decibeles lakáselválasztó fal biztosítja a nyugalmat és az intimitást. A födémszerkezetek és aljzatok hálóvasalt vasbetonból készülnek, többrétegű hő és vízszigeteléssel, a padlóburkolatok alatt lépésálló hőszigeteléssel.
A belső terekben kerámia és laminált padlóburkolatok kerülnek kialakításra, a terasz fagyálló és csúszásmentes burkolattal készül. A tetőszerkezet minőségi fa ácsszerkezettel és betoncserepes fedéssel valósul meg, korszerű hő és páratechnikai rétegrenddel. A kivitelezés során kizárólag jól ismert, prémium minőségű gyártók anyagai kerülnek beépítésre, többek között Baumit, Austrotherm, Mapei és Rockwool termékek, amelyek garantálják az épület tartósságát, megbízhatóságát és hosszú élettartamát.
Az átgondolt tervezés, a kiváló műszaki megoldások és a nyugodt környezet együttesen teszik ezt az ingatlant valódi értékálló otthonná. Ideális választás mindazok számára, akik új építésű, minőségi ingatlant keresnek Nyíregyházán. További információért, részletes műszaki tartalomért vagy megtekintés egyeztetéséhez kérem, keressen bizalommal.
OTP Banki hátterünknek köszönhetően finanszírozási igényekben (pl. Otthon Start Hitelprogram, Babaváró, Falusi CSOK, CSOK Plusz, Lakáshitel, Személyi kölcsön stb.), illetve biztosítások tekintetében is díjmentesen, soron kívüli ügyintézéssel segítem ügyfeleim! Referenciaszám: M320215