Eladó Ház- házrész
Hirdetéskód: 9243702
Nyíregyháza Dózsa György út 32-34 - OTP Ingatlanpont Iroda
Felújításhoz személyi kölcsönt keres? Kalkuláljon itt! →
Ez a hirdetés megfelelhet a FIX 3%-os programnak.
Tudj meg többet a részletekről itt.
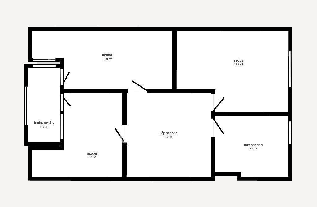
100.00 m2
ALAPTERÜLET5
SZOBASZÁMnincs megadva
ÉPÍTÉSGáz (cirkó)
FŰTÉS- CSOK igénybe vehető nem
- Tetőtér beépíthető nem
- Építés éve 1986
- Fűtés Gáz (cirkó)
- Klíma nem
- Szigetelt nem
A+++
A++
A+
A
B
C
D
E
F
G
H
I
Az ingatlan leírása
Érdeklődni:
Eladó sorházi lakás Korányi-kertváros kedvelt részén, a Sipkay Barna utcában!
Csendes, rendezett és kifejezetten hangulatos utcában található ez a félszinteltolásos, polgári miliőt idéző, rendkívül jól karbantartott sorházi lakás. A házhoz gondozott előkert és bensőséges hátsó kert tartozik, így a nyugalmat és a zöld környezetet egyaránt biztosítja leendő tulajdonosának.
A 5 szoba és 2 fürdőszoba kényelmes életteret kínál akár nagyobb család számára is. A félszinteltolásos kialakítás egyedi, tágas és jól szeparált tereket hoz létre.
A házhoz tartozik egy garázs is.
A környék kifejezetten divatos és keresett, kiváló infrastruktúrával: pár száz méteren belül megtalálható bölcsőde, óvoda, iskola, boltok, valamint orvosi rendelő is ? minden adott a kényelmes mindennapokhoz.
A sóstói erdő gyalog mindössze pár percre található (az erdei tornapálya a google map szerint 1 200 méterre van a háztól) és Sóstó is mindössze pár perc kerékpárút. (Ugyancsak a google map szerint a Vadaspark 3 700 méterre és 13 perc kerékpárútra található).
Kitűnő ár - érték arány és kifogástalan lokáció.
OTP Banki hátterünknek köszönhetően finanszírozási igényekben (pl. Otthon Start Hitelprogram, Babaváró, Falusi CSOK, CSOK Plusz, Lakáshitel, Személyi kölcsön stb.), illetve biztosítások tekintetében is díjmentesen, soron kívüli ügyintézéssel segítem ügyfeleim! Referenciaszám: M318192
Eladó sorházi lakás Korányi-kertváros kedvelt részén, a Sipkay Barna utcában!
Csendes, rendezett és kifejezetten hangulatos utcában található ez a félszinteltolásos, polgári miliőt idéző, rendkívül jól karbantartott sorházi lakás. A házhoz gondozott előkert és bensőséges hátsó kert tartozik, így a nyugalmat és a zöld környezetet egyaránt biztosítja leendő tulajdonosának.
A 5 szoba és 2 fürdőszoba kényelmes életteret kínál akár nagyobb család számára is. A félszinteltolásos kialakítás egyedi, tágas és jól szeparált tereket hoz létre.
A házhoz tartozik egy garázs is.
A környék kifejezetten divatos és keresett, kiváló infrastruktúrával: pár száz méteren belül megtalálható bölcsőde, óvoda, iskola, boltok, valamint orvosi rendelő is ? minden adott a kényelmes mindennapokhoz.
A sóstói erdő gyalog mindössze pár percre található (az erdei tornapálya a google map szerint 1 200 méterre van a háztól) és Sóstó is mindössze pár perc kerékpárút. (Ugyancsak a google map szerint a Vadaspark 3 700 méterre és 13 perc kerékpárútra található).
Kitűnő ár - érték arány és kifogástalan lokáció.
OTP Banki hátterünknek köszönhetően finanszírozási igényekben (pl. Otthon Start Hitelprogram, Babaváró, Falusi CSOK, CSOK Plusz, Lakáshitel, Személyi kölcsön stb.), illetve biztosítások tekintetében is díjmentesen, soron kívüli ügyintézéssel segítem ügyfeleim! Referenciaszám: M318192