Eladó Ház- házrész
Hirdetéskód: 9307155

-

Felújításhoz személyi kölcsönt keres? Kalkuláljon itt! →
84.00 m2
ALAPTERÜLET
4
SZOBASZÁM
Tégla
ÉPÍTÉS
Gáz (cirkó)
FŰTÉS
  • CSOK igénybe vehető igen
  • Tetőtér beépíthető nem
  • Kilátás Kertre néző
  • Tájolás Nyugat
  • Ingatlan komfort Duplakomfortos
  • Parkolási lehetőség Önálló garázs
  • Építés éve 2000
  • Fűtés Gáz (cirkó)
  • Építőanyag Tégla
  • Erkély, terasz Terasz 60.00m2
  • Klíma igen
  • Szigetelt igen
  • Bútorozott igen
  • Akadálymentesített igen
  • Elektromos autó töltés Mode2: 230V otthoni konnektor
  • Víz telken belül
  • Csatorna telken belül
  • Gáz telken belül
  • Villany telken belül

Energetikai besorolás: C

A+++
A++
A+
A
B
C
D
E
F
G
H
I

Az MBH Bank személyi kölcsön ajánlata

Fizetett hirdetés
1 millió Ft
6 évre
20 585 Ft/hó
THM: 14.5%
Részletek →
2 millió Ft
6 évre
41 169 Ft/hó
THM: 14.5%
Részletek →
3 millió Ft
6 évre
61 754 Ft/hó
THM: 14.5%
Részletek →

A tájékoztatás nem teljes körű és nem minősül ajánlattételnek.

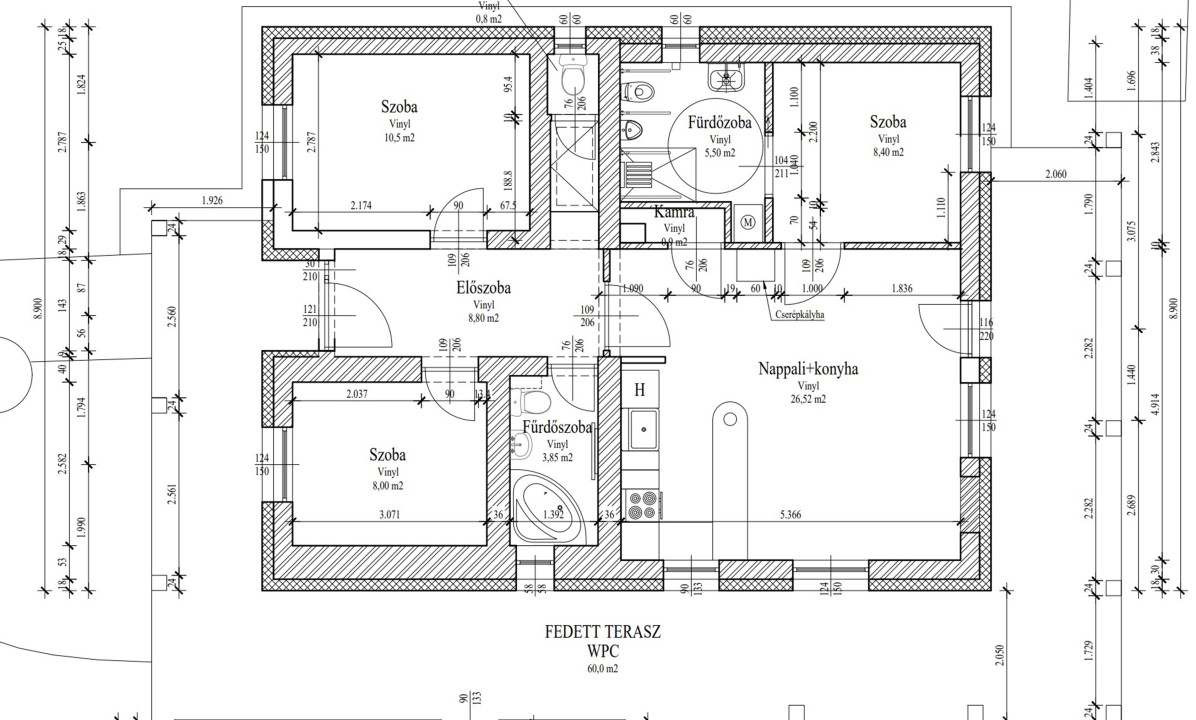
Az ingatlan leírása

Nyíregyházán, csendes aszfaltos út mentén, a Praktiker közelében eladó egy 84 m²-es, 2000-ben téglából épült, 3 szoba + nappalis, duplakomfortos családi ház, amely 2021-ben teljes körű, prémium minőségű felújításon esett át.
Főbb jellemzők:
Építés éve: 2000. Amerikai stílusú (Porotherm tégla, szigetelt, cseréptető).
Felújítás: 2021 (20 cm grafitos homlokzati, 25 cm födémszigetelés).
Lakótér: 84 m².
Terasz: 60 m².
Telek: 730 m², igényesen parkosított, térburkolt.
Pince: 12 m².
Melléképület: 18 m² garázs + 6 m² nyári konyha.
Műszaki tartalom:
380V ipari áram.
Kondenzációs gáz cirkó (radiátoros fűtés).
Új cserépkályha.
3 db inverteres, hőszivattyús hűtő-fűtő klíma.
3 rétegű műanyag nyílászárók.
Új burkolat.
Teljesen megújult elektromos hálózat.
Akadálymentesített kialakítás.
Okosotthon és extrák:
Elektromos redőnyök.
Automata kapu.
Öntözőrendszer.
Riasztó és kamerarendszer.
Beépített, gépesített konyha.
Elrendezés:
Közlekedő.
Amerikai konyhás nappali közvetlen teraszkapcsolattal (60 m²).
Kamra.
3 külön nyíló hálószoba.
Kádas fürdőszoba + WC.
Zuhanyzós, akadálymentesített fürdőszoba + WC.
Külön vendég WC.
Hangulat:
Az enteriőrt az alpesi stílus jegyei formálják: a látszó fagerendás mennyezet és a természetes anyaghasználat meleg, harmonikus és időtálló atmoszférát teremt.
Ez az ingatlan ideális választás mindazok számára, akik a modern technológiát, az alacsony fenntartási költségeket és egy igényesen kialakított, parkosított családi ház kényelmét szeretnék egy helyen élvezni.
További információért és megtekintésért keressen bizalommal!
Hivatkozási szám: 13394.

Térkép

A hirdető elérhetősége

Szabó Csaba

+36 30 318