Eladó Ház- házrész
Hirdetéskód: 9243369
Szabolcs Ingatlanközvetítő Iroda
Ez a hirdetés megfelelhet a FIX 3%-os programnak.
Tudj meg többet a részletekről itt.
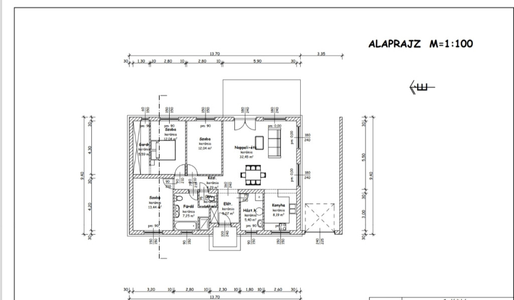
110.00 m2
ALAPTERÜLET3
SZOBASZÁMTégla
ÉPÍTÉSGeotermikus
FŰTÉS- CSOK igénybe vehető nem
- Tetőtér beépíthető nem
- Ingatlan komfort Duplakomfortos
- Építés éve 2026
- Fűtés Geotermikus
- Építőanyag Tégla
- Klíma nem
- Szigetelt nem
A+++
A++
A+
A
B
C
D
E
F
G
H
I
Az ingatlan leírása
Nyíregyháza–Oros központi részének közelében eladásra kínálunk egy 110 m²-es, modern kialakítású, új építésű családi házat, mely 3 szobával, valamint nappali–konyha–étkező együttesével biztosít kényelmes életteret.
Főbb jellemzők:
energiatakarékos hőszivattyús fűtési rendszer
kiváló hőszigetelés:
15 cm külső fal-,
8 cm padlószigetelés,
30 cm tetőszigetelés
3 rétegű, 5 légkamrás műanyag nyílászárók
11,2 m²-es fedett terasz
külön mosókonyha és gardrób helyiség
klímaberendezés
fedett autóbeálló
Az ingatlan B-30-as téglából épül, a hozzá tartozó 600 m²-es telekkel
Várható átadás: 2026 második fele, egyedi megállapodás szerint rugalmasan alakítható.
Ideális választás mindazok számára, akik modern, energiatakarékos, nyugodt környezetben lévő otthont keresnek.Az ingatlan azonosítója: 99460Érdeklődni:
Főbb jellemzők:
energiatakarékos hőszivattyús fűtési rendszer
kiváló hőszigetelés:
15 cm külső fal-,
8 cm padlószigetelés,
30 cm tetőszigetelés
3 rétegű, 5 légkamrás műanyag nyílászárók
11,2 m²-es fedett terasz
külön mosókonyha és gardrób helyiség
klímaberendezés
fedett autóbeálló
Az ingatlan B-30-as téglából épül, a hozzá tartozó 600 m²-es telekkel
Várható átadás: 2026 második fele, egyedi megállapodás szerint rugalmasan alakítható.
Ideális választás mindazok számára, akik modern, energiatakarékos, nyugodt környezetben lévő otthont keresnek.Az ingatlan azonosítója: 99460Érdeklődni: