Eladó Ház- házrész
Hirdetéskód: 9289636
Nyíregyháza Dózsa György út 32-34 - OTP Ingatlanpont Iroda
Felújításhoz személyi kölcsönt keres? Kalkuláljon itt! →124.00 m2
ALAPTERÜLET3
SZOBASZÁMnincs megadva
ÉPÍTÉSnincs megadva
FŰTÉS- CSOK igénybe vehető nem
- Tetőtér beépíthető nem
- Építés éve 2026
- Klíma nem
- Szigetelt nem
A+++
A++
A+
A
B
C
D
E
F
G
H
I
Az ingatlan leírása
Nyíregyháza csendes, folyamatosan fejlődő kertvárosi övezetében, a közkedvelt Báthory lakópark szélső utcájában épül ez a letisztult megjelenésű, modern családi ház, amely ideális választás mindazok számára, akik nyugodt környezetben, mégis városhoz közel szeretnének élni.
Az ingatlan egyik legnagyobb értéke az erdőre néző kilátás, amely ritka lehetőség a környéken. A természet közelsége mindennapi nyugalmat biztosít, miközben a lakópark rendezett, biztonságos környezetet kínál családok számára.
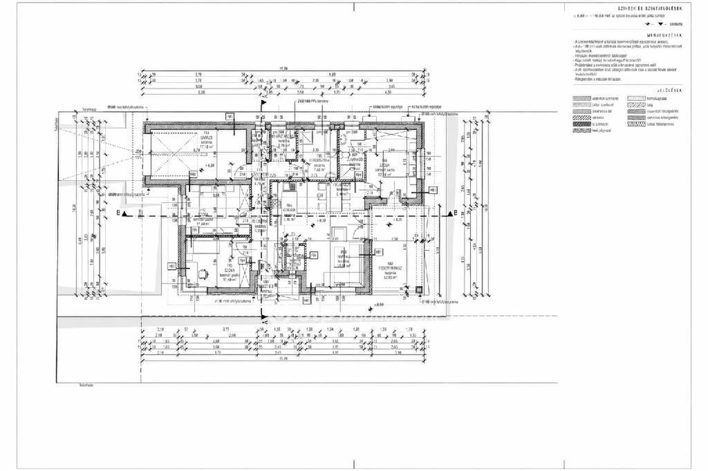
A gondosan megtervezett 124 m2-es ingatlan praktikus elrendezéssel készül:
-92 m2 modern lakótér
-17 m2 garázs közvetlen kapcsolattal a házhoz
-14 m2 fedett terasz
A ház központi része a tágas amerikai konyhás nappali, ahol a nagy üvegfelületeknek köszönhetően egész nap világos, kellemes élettér fogadja új tulajdonosát. Innen közvetlen kijárat nyílik a teraszra és a kertbe, így a belső és külső terek természetesen kapcsolódnak egymáshoz.
Három külön bejáratú, kényelmes méretű szoba kerül kialakításra, amelyek ideálisak hálószobának, gyerekszobának vagy akár dolgozószobának is. A mindennapi kényelmet két fürdőszoba biztosítja.
A 728 m2-es saját telek elegendő teret kínál parkosított kert, játszórész, medence vagy kerti pihenő kialakítására.
A ház korszerű műszaki tartalommal épül:
- kondenzációs gázkazán
- teljes padlófűtés
- energiatakarékos nyílászárók
- redőny előkészítés
- minőségi, időtálló építőanyagok
- átgondolt, modern műszaki megoldások
A közvetlen garázskapcsolat kényelmes mindennapokat biztosít, míg a csendes utca biztonságos környezetet teremt gyermekes családok számára is.
A 2026-ra tervezett átadás lehetőséget ad arra, hogy az új tulajdonos bizonyos belső részleteket még saját ízlésére alakítson, így valóban személyre szabott otthon készülhet.
Ez az ingatlan tökéletes választás azok számára, akik új építésű, modern házat keresnek nyugodt környezetben, kompromisszumok nélkül.
OTP Banki hátterünknek köszönhetően finanszírozási igényekben (pl. Otthon Start Hitelprogram, Babaváró, Falusi CSOK, CSOK Plusz, Lakáshitel, Személyi kölcsön stb.), illetve biztosítások tekintetében is díjmentesen, soron kívüli ügyintézéssel segítem ügyfeleim!
Az ingatlan egyik legnagyobb értéke az erdőre néző kilátás, amely ritka lehetőség a környéken. A természet közelsége mindennapi nyugalmat biztosít, miközben a lakópark rendezett, biztonságos környezetet kínál családok számára.
A gondosan megtervezett 124 m2-es ingatlan praktikus elrendezéssel készül:
-92 m2 modern lakótér
-17 m2 garázs közvetlen kapcsolattal a házhoz
-14 m2 fedett terasz
A ház központi része a tágas amerikai konyhás nappali, ahol a nagy üvegfelületeknek köszönhetően egész nap világos, kellemes élettér fogadja új tulajdonosát. Innen közvetlen kijárat nyílik a teraszra és a kertbe, így a belső és külső terek természetesen kapcsolódnak egymáshoz.
Három külön bejáratú, kényelmes méretű szoba kerül kialakításra, amelyek ideálisak hálószobának, gyerekszobának vagy akár dolgozószobának is. A mindennapi kényelmet két fürdőszoba biztosítja.
A 728 m2-es saját telek elegendő teret kínál parkosított kert, játszórész, medence vagy kerti pihenő kialakítására.
A ház korszerű műszaki tartalommal épül:
- kondenzációs gázkazán
- teljes padlófűtés
- energiatakarékos nyílászárók
- redőny előkészítés
- minőségi, időtálló építőanyagok
- átgondolt, modern műszaki megoldások
A közvetlen garázskapcsolat kényelmes mindennapokat biztosít, míg a csendes utca biztonságos környezetet teremt gyermekes családok számára is.
A 2026-ra tervezett átadás lehetőséget ad arra, hogy az új tulajdonos bizonyos belső részleteket még saját ízlésére alakítson, így valóban személyre szabott otthon készülhet.
Ez az ingatlan tökéletes választás azok számára, akik új építésű, modern házat keresnek nyugodt környezetben, kompromisszumok nélkül.
OTP Banki hátterünknek köszönhetően finanszírozási igényekben (pl. Otthon Start Hitelprogram, Babaváró, Falusi CSOK, CSOK Plusz, Lakáshitel, Személyi kölcsön stb.), illetve biztosítások tekintetében is díjmentesen, soron kívüli ügyintézéssel segítem ügyfeleim!