Eladó Ház- házrész
Hirdetéskód: 9313749
Nyíregyháza Dózsa György út 32-34 - OTP Ingatlanpont Iroda
Felújításhoz személyi kölcsönt keres? Kalkuláljon itt! →153.00 m2
ALAPTERÜLET3
SZOBASZÁMnincs megadva
ÉPÍTÉSEgyéb fűtés
FŰTÉS- CSOK igénybe vehető nem
- Tetőtér beépíthető nem
- Építés éve 2026
- Fűtés Egyéb fűtés
- Klíma nem
- Szigetelt nem
A+++
A++
A+
A
B
C
D
E
F
G
H
I
Az ingatlan leírása
Nyíregyháza egyik legkeresettebb, exkluzív környékén kínálunk megvételre egy valóban prémium kategóriás, modern megjelenésű ikerházat, amely minden igényt kielégít azok számára, akik a minőséget, a kényelmet és az értékállóságot keresik.
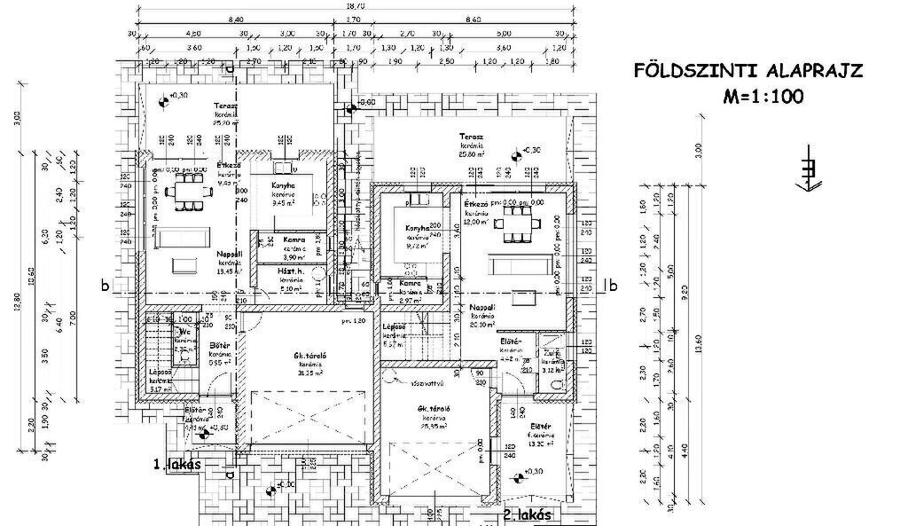
Az ingatlan különlegessége, hogy a két lakóegység kizárólag a garázsnál érintkezik, így biztosítva a maximális privát szférát, szinte önálló családi ház érzetét nyújtva. A nettó 153 négyzetméteres, kétszintes lakótér átgondolt elrendezésének köszönhetően tágas, világos és élhető tereket biztosít a mindennapokhoz. Telek mérete 500 nm.
A házhoz tartozó 25,5 négyzetméteres terasz ideális helyszín pihenésre, családi és baráti összejövetelekre. Az ingatlan három külön nyíló szobával rendelkezik, így tökéletes választás családok számára is.
A műszaki tartalom kiemelkedő színvonalat képvisel. A fűtésről egy 12 kilowattos Panasonic hőszivattyús rendszer gondoskodik, amely energiatakarékos és korszerű megoldást biztosít. A nyári hűtést két darab 3,5 kilowattos Gree klíma teszi komfortossá. A 15 centiméteres homlokzati szigetelés hozzájárul az alacsony fenntartási költségekhez és a kiváló energetikai besoroláshoz.
Az ingatlan háromrétegű, kívül színes nyílászárókkal készül, amelyek nemcsak esztétikusak, hanem kiváló hő és hangszigetelést is nyújtanak. A burkolatok és a beltéri ajtók jelenleg még választhatók, így az új tulajdonos saját ízlésére formálhatja otthonát.
Az ár tartalmazza a teljes kerítést és a térkövezést, így a környezet is rendezett és azonnal használható lesz. A garázs Hörmann szekcionált kapuval kerül kialakításra, amely a megbízhatóság és a prémium minőség szinonimája.
Az ingatlan várható átadása 2026 év vége, így most még lehetőség van egy valóban egyedi, személyre szabott otthon kialakítására Nyíregyháza egyik legjobb lokációjában.
Ez az ingatlan tökéletes választás mindazok számára, akik nem szeretnének kompromisszumot kötni, és egy modern, energiatakarékos, magas műszaki tartalmú otthonra vágynak kiemelkedő környezetben.
OTP Banki hátterünknek köszönhetően finanszírozási igényekben (pl. Otthon Start Hitelprogram, Babaváró, Falusi CSOK, CSOK Plusz, Lakáshitel, Személyi kölcsön stb.), illetve biztosítások tekintetében is díjmentesen, soron kívüli ügyintézéssel segítem ügyfeleim! Referenciaszám: M325960
Az ingatlan különlegessége, hogy a két lakóegység kizárólag a garázsnál érintkezik, így biztosítva a maximális privát szférát, szinte önálló családi ház érzetét nyújtva. A nettó 153 négyzetméteres, kétszintes lakótér átgondolt elrendezésének köszönhetően tágas, világos és élhető tereket biztosít a mindennapokhoz. Telek mérete 500 nm.
A házhoz tartozó 25,5 négyzetméteres terasz ideális helyszín pihenésre, családi és baráti összejövetelekre. Az ingatlan három külön nyíló szobával rendelkezik, így tökéletes választás családok számára is.
A műszaki tartalom kiemelkedő színvonalat képvisel. A fűtésről egy 12 kilowattos Panasonic hőszivattyús rendszer gondoskodik, amely energiatakarékos és korszerű megoldást biztosít. A nyári hűtést két darab 3,5 kilowattos Gree klíma teszi komfortossá. A 15 centiméteres homlokzati szigetelés hozzájárul az alacsony fenntartási költségekhez és a kiváló energetikai besoroláshoz.
Az ingatlan háromrétegű, kívül színes nyílászárókkal készül, amelyek nemcsak esztétikusak, hanem kiváló hő és hangszigetelést is nyújtanak. A burkolatok és a beltéri ajtók jelenleg még választhatók, így az új tulajdonos saját ízlésére formálhatja otthonát.
Az ár tartalmazza a teljes kerítést és a térkövezést, így a környezet is rendezett és azonnal használható lesz. A garázs Hörmann szekcionált kapuval kerül kialakításra, amely a megbízhatóság és a prémium minőség szinonimája.
Az ingatlan várható átadása 2026 év vége, így most még lehetőség van egy valóban egyedi, személyre szabott otthon kialakítására Nyíregyháza egyik legjobb lokációjában.
Ez az ingatlan tökéletes választás mindazok számára, akik nem szeretnének kompromisszumot kötni, és egy modern, energiatakarékos, magas műszaki tartalmú otthonra vágynak kiemelkedő környezetben.
OTP Banki hátterünknek köszönhetően finanszírozási igényekben (pl. Otthon Start Hitelprogram, Babaváró, Falusi CSOK, CSOK Plusz, Lakáshitel, Személyi kölcsön stb.), illetve biztosítások tekintetében is díjmentesen, soron kívüli ügyintézéssel segítem ügyfeleim! Referenciaszám: M325960