Eladó Ház- házrész
Hirdetéskód: 9252878
Nyíregyháza Dózsa György út 32-34 - OTP Ingatlanpont Iroda
170.00 m2
ALAPTERÜLET5
SZOBASZÁMnincs megadva
ÉPÍTÉSnincs megadva
FŰTÉS- CSOK igénybe vehető nem
- Tetőtér beépíthető nem
- Építés éve 2018
- Klíma nem
- Szigetelt nem
A+++
A++
A+
A
B
C
D
E
F
G
H
I
Az ingatlan leírása
Nyíregyháza belvárosában kínálom megvételre ezt a különleges otthont, amit a letisztult modern stílus és a kifinomult elegancia jellemez!
Kiemelkedő minőségben megépített, prémium kivitelű, modern ikerház, amely minden részletében az igényességet és az átgondolt tervezést tükrözi. Az ingatlan ideális választás azok számára, akik a városi kényelem mellett a nyugalmat, az exkluzív környezetet és a magas műszaki tartalmat keresik.
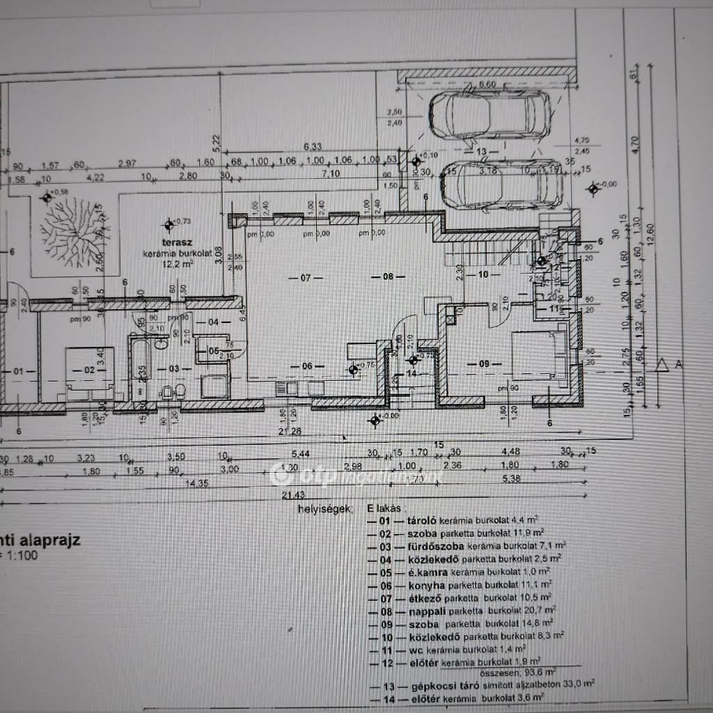
A 137 m2 hasznos alapterületű, kétszintes otthon elrendezése rendkívül praktikus és világos.
42 m2-es amerikai konyhás nappali.
3 külön nyíló hálószoba.
2 nappali / szoba.
2 fürdőszoba, 3 WC.
A gyönyörű, egyedi tervezésű beépített konyhabútor, a gardróbok és az átgondolt belsőépítészeti megoldások valódi luxusérzetet teremtenek.
A földszinten egy 12 m2-es nyitott terasz, az emeleten pedig egy 37 m2-es fedett terasz, valamint két darab 37 m2-es zöldtetős terasz teszi teljessé az életteret, igazi ritkaság a belvárosban.
A 120 m2-es pihenőudvar oázisként szolgál: gondozott, automata öntözőrendszer, hangulatos 18 m2-es grillház, kerti tároló, gépház és több terasz biztosítja a zavartalan kikapcsolódást. Az ingatlanhoz tartozik egy 33 m2-es, kétállásos garázs, Hörmann elektromos kapukkal.
A ház Porotherm 30-as téglából épült, 15 cm grafitos külső szigeteléssel, speciális kéregpaneles födémszigeteléssel. A komfortérzetről padlófűtés, radiátoros hőleadás, klímaberendezések, valamint kondenzációs kazán gondoskodik.
Az ingatlan 3 fázissal, engedélyeztetett napelemrendszer előkészítéssel, riasztórendszerrel és igényes, beépített LED világítással felszerelt.
Hívjon bizalommal!
Vevőink számára minden szolgáltatásunk díjmentes, beleértve a CSOK Plusz, Babaváró, Start Otthon programok, valamint az előminősítés és ügyintézés teljes körű támogatását ? sorban állás nélkül.
Kiemelkedő minőségben megépített, prémium kivitelű, modern ikerház, amely minden részletében az igényességet és az átgondolt tervezést tükrözi. Az ingatlan ideális választás azok számára, akik a városi kényelem mellett a nyugalmat, az exkluzív környezetet és a magas műszaki tartalmat keresik.
A 137 m2 hasznos alapterületű, kétszintes otthon elrendezése rendkívül praktikus és világos.
42 m2-es amerikai konyhás nappali.
3 külön nyíló hálószoba.
2 nappali / szoba.
2 fürdőszoba, 3 WC.
A gyönyörű, egyedi tervezésű beépített konyhabútor, a gardróbok és az átgondolt belsőépítészeti megoldások valódi luxusérzetet teremtenek.
A földszinten egy 12 m2-es nyitott terasz, az emeleten pedig egy 37 m2-es fedett terasz, valamint két darab 37 m2-es zöldtetős terasz teszi teljessé az életteret, igazi ritkaság a belvárosban.
A 120 m2-es pihenőudvar oázisként szolgál: gondozott, automata öntözőrendszer, hangulatos 18 m2-es grillház, kerti tároló, gépház és több terasz biztosítja a zavartalan kikapcsolódást. Az ingatlanhoz tartozik egy 33 m2-es, kétállásos garázs, Hörmann elektromos kapukkal.
A ház Porotherm 30-as téglából épült, 15 cm grafitos külső szigeteléssel, speciális kéregpaneles födémszigeteléssel. A komfortérzetről padlófűtés, radiátoros hőleadás, klímaberendezések, valamint kondenzációs kazán gondoskodik.
Az ingatlan 3 fázissal, engedélyeztetett napelemrendszer előkészítéssel, riasztórendszerrel és igényes, beépített LED világítással felszerelt.
Hívjon bizalommal!
Vevőink számára minden szolgáltatásunk díjmentes, beleértve a CSOK Plusz, Babaváró, Start Otthon programok, valamint az előminősítés és ügyintézés teljes körű támogatását ? sorban állás nélkül.