Eladó Ház- házrész
Hirdetéskód: 9290567

-

Felújításhoz személyi kölcsönt keres? Kalkuláljon itt! →
220.00 m2
ALAPTERÜLET
5
SZOBASZÁM
Tégla
ÉPÍTÉS
Hőszivattyú
FŰTÉS
  • CSOK igénybe vehető igen
  • Belső szintek 2
  • Kilátás Udvari
  • Ingatlan komfort Duplakomfortos
  • Parkolási lehetőség Önálló garázs
  • Építés éve 2026
  • Fűtés Hőszivattyú
  • Építőanyag Tégla
  • Erkély, terasz Terasz 23.00m2
  • Klíma igen
  • Szigetelt igen
  • Víz telken belül
  • Csatorna telken belül
  • Gáz telken belül
  • Villany telken belül
Energetikai besorolás: Nincs meghatározva
A+++
A++
A+
A
B
C
D
E
F
G
H
I

Az MBH Bank személyi kölcsön ajánlata

Fizetett hirdetés
1 millió Ft
6 évre
20 585 Ft/hó
THM: 14.5%
Részletek →
2 millió Ft
6 évre
41 169 Ft/hó
THM: 14.5%
Részletek →
3 millió Ft
6 évre
61 754 Ft/hó
THM: 14.5%
Részletek →

A tájékoztatás nem teljes körű és nem minősül ajánlattételnek.

Az ingatlan leírása

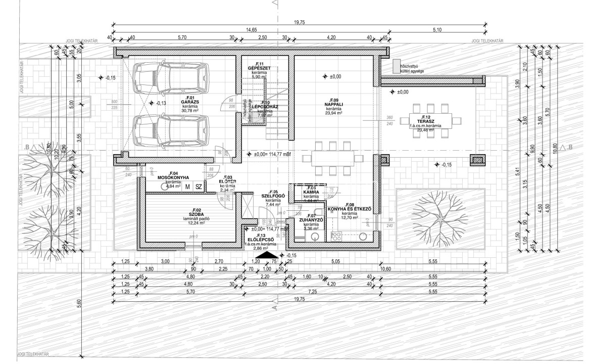
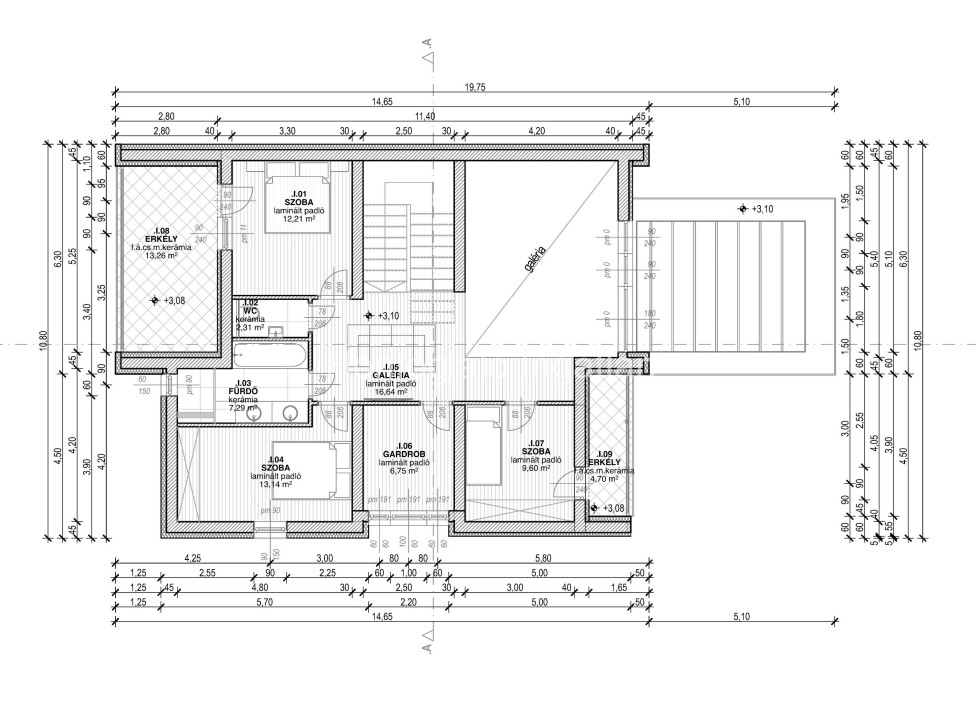
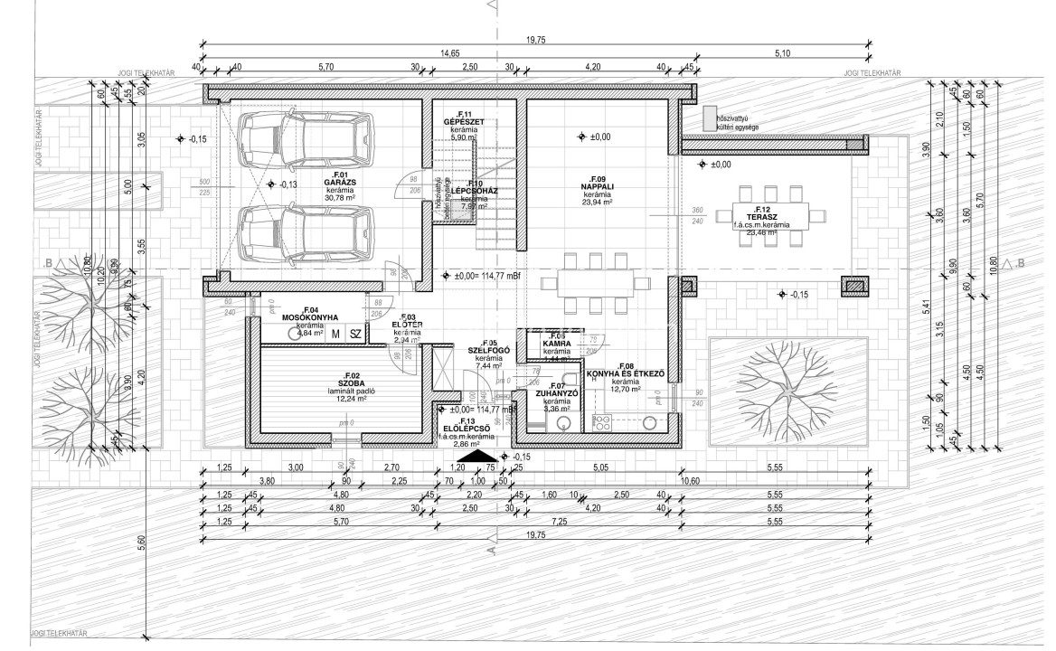
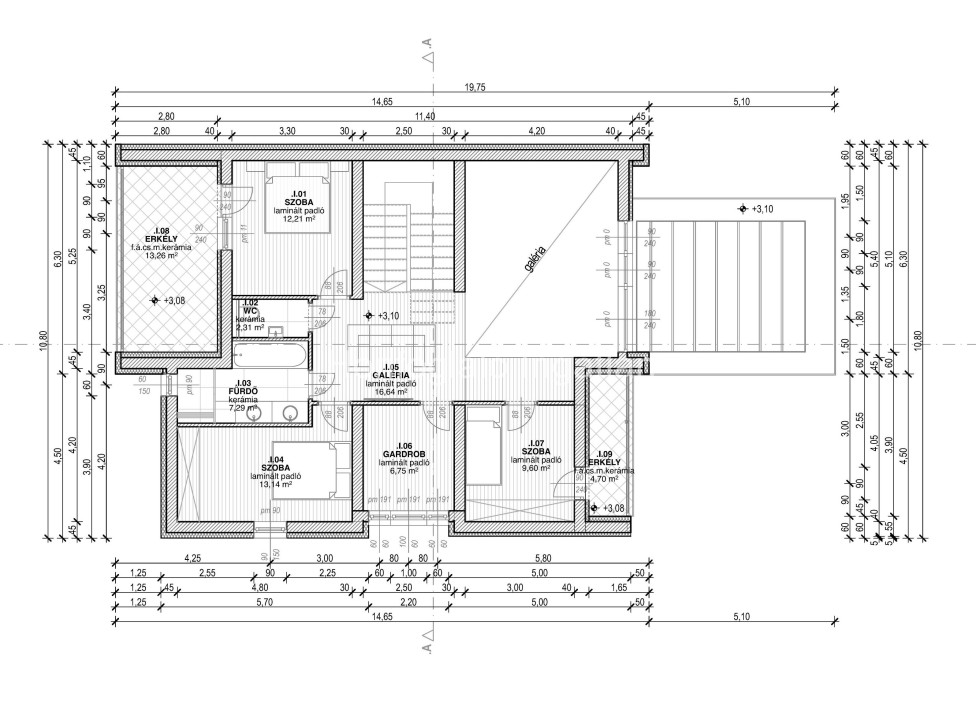
Nyíregyháza kedvelt részén, a Ságvári kertvárosban eladó egy 810 nm-es telken elhelyezkedő, új építésű családi ház. Az ingatlan bruttó 220 nm, nettó 181 nm-es lakóterülettel rendelkezik, elosztása 4 szoba és nappali, dupla komforttal, 23 nm-es terasszal és 31 nm-es kétállásos garázzsal kiegészítve.


A ház földszintjén amerikai konyhás étkező került kialakításra kamrával, a nappali közvetlen teraszkapcsolattal rendelkezik. Ezen a szinten található továbbá egy hálószoba, egy zuhanyzós fürdőszoba WC-vel, egy tárolóhelyiség, valamint a kétállásos garázs. Az emeleti szinten három külön nyíló szoba biztosítja a család kényelmét, továbbá egy fürdőszoba, egy külön WC és egy gardrób szoba is helyet kapott.


A ház további jellemzői:
 - 30 as Neo Rapid Dryfix tégla
 - magastető, kettős, hornyolt, sík, antracit színű betoncserép
 - 15 cm es  homlokzati, 20 cm es födém szigetelés
 - hő és hangszigetelt nyílászárók kívül antracit, belül fehér színben, 3 rétegű üvegezéssel
 - beépített elektromos redőny
 - az épület fűtését (minden helységben padlófűtés) 1db 10 kW-os levegős hőszivattyú biztosítja
 - tartalék fűtés előkészítéssel (gázfűtés)
 - nappaliban 3,5 kW-os Split klímával, további szobákban Split klíma előkészítés
 - kamera és riasztórendszer előkészítés, kábelezéssel együtt,
 - épület körüli térkőburkolat, antracit színben (járda, garázsbejáró)


A kivitelezés során kiemelt hangsúlyt kap a magas műszaki tartalom, a kiváló energiahatékonyság és a minőségi megvalósítás. Az ingatlan vételára a 100%-os készültségi szintre vonatkozik. A jelenlegi fázisban a burkolatok és a belső nyílászárók még szabadon választhatók, így a belső kialakítás a leendő tulajdonos igényeihez igazítható. Az átadás várható időpontja 2026 első negyedévének vége.


További információkért, vagy megtekintéssel kapcsolatosan keressen bizalommal.

Térkép

A hirdető elérhetősége

Honfoglaló Ingatlanközvetítő iroda

+36 70 779