Eladó Ház- házrész
Hirdetéskód: 9304169

Nyíregyháza Dózsa György út 32-34 - OTP Ingatlanpont Iroda

Felújításhoz személyi kölcsönt keres? Kalkuláljon itt! →
FIX 3% Program

Ez a hirdetés megfelelhet a FIX 3%-os programnak.
Tudj meg többet a részletekről itt.

112.00 m2
ALAPTERÜLET
2
SZOBASZÁM
nincs megadva
ÉPÍTÉS
Gáz (cirkó)
FŰTÉS
  • CSOK igénybe vehető nem
  • Tetőtér beépíthető nem
  • Építés éve 2019
  • Fűtés Gáz (cirkó)
  • Klíma nem
  • Szigetelt nem
Energetikai besorolás: Nincs meghatározva
A+++
A++
A+
A
B
C
D
E
F
G
H
I

Az MBH Bank személyi kölcsön ajánlata

Fizetett hirdetés
1 millió Ft
6 évre
20 585 Ft/hó
THM: 14.5%
Részletek →
2 millió Ft
6 évre
41 169 Ft/hó
THM: 14.5%
Részletek →
3 millió Ft
6 évre
61 754 Ft/hó
THM: 14.5%
Részletek →

A tájékoztatás nem teljes körű és nem minősül ajánlattételnek.

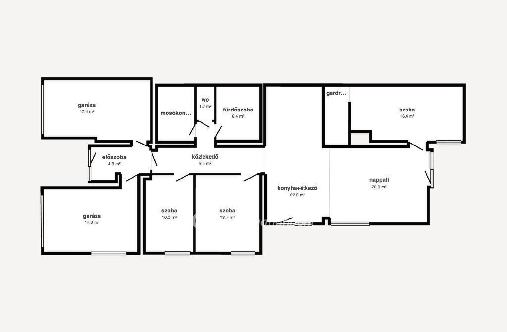
Az ingatlan leírása

Nyíregyháza egyik legcsendesebb és legkedveltebb részén, a Báthory-lakópark nyugodt, lakó-pihenő övezetében kínálok megvételre egy 2019-ben épült, különleges hangulatú családi otthont, amely a modern kényelmet és a harmonikus életteret ötvözi. A 600 nm-es telken elhelyezkedő ingatlan gondosan kialakított kerttel várja új tulajdonosát, ahol az automata öntözőrendszerrel ellátott pihenőkert valódi kikapcsolódást nyújt a mindennapok után. A ház 112 nm alapterületű, tágas és világos terekkel, ahol a három külön nyíló szoba és az amerikai konyhás nappali kényelmes, családbarát elrendezést biztosít. A nappalit egy elegáns beépített kandalló teszi teljessé, amely a hűvösebb estéken különleges hangulatot teremt. Az otthon egyik legvonzóbb része a közel 60 nm-es fedett terasz, amely ideális helyszíne lehet a nyugodt reggeli kávézásoknak, nyári vacsoráknak vagy baráti összejöveteleknek. A gazdaságos fenntartásról napelemrendszer, gázcirkó fűtés, valamint két darab hűtő-fűtő klíma gondoskodik, míg a kamera- és riasztórendszer a biztonságot szolgálja. A praktikus kialakítás része a külön mosókonyha, a két mellékhelyiség és a kétállásos garázs is. A fürdőszoba 2025-ben teljes körű, igényes felújításon esett át. A beépített bútorok a vételár részét képezik, a további berendezések pedig megegyezés szerint az ingatlanban maradhatnak. Ez az otthon nem csupán egy ingatlan, hanem egy harmonikus élettér, ahol minden adott a nyugodt, hosszú távon is élvezhető mindennapokhoz.

OTP Banki hátterünknek köszönhetően finanszírozási igényekben (pl. Otthon Start Hitelprogram, Babaváró, Falusi CSOK, CSOK Plusz, Lakáshitel, Személyi kölcsön stb.), illetve biztosítások tekintetében is díjmentesen, soron kívüli ügyintézéssel segítem ügyfeleim! Referenciaszám: M324748
https://my.matterport.com/show/?m=w4T9MJD6qWa&mls=1

Térkép

Ingatlan adásvétel ügyvédi díja
580 500 Ft
a hirdetésben szereplő ár alapján
  • A vételár 0,45%-a
  • Szerződéscsomag teljeskörű képviselettel
  • Ingyenes tulajdoni lap ellenőrzés
  • Az ÁFA-t már tartalmazza
Érdekel az ajánlat →
A tájékoztatás nem teljes körű és nem minősül ajánlattételnek. Minimum díj: 150 000 Ft, maximum díj: 600 000 Ft. A díj kizárólag lakóingatlan adásvételére vonatkozik.

A hirdető elérhetősége

Nyíregyháza Dózsa György út 32-34 - OTP Ingatlanpont Iroda

Pristyákné Petneházi Éva Zsuzsanna
+36 30 864