Eladó Ház- házrész
Hirdetéskód: 9243709
Nyíregyháza Dózsa György út 32-34 - OTP Ingatlanpont Iroda
Ez a hirdetés megfelelhet a FIX 3%-os programnak.
Tudj meg többet a részletekről itt.
80.00 m2
ALAPTERÜLET4
SZOBASZÁMnincs megadva
ÉPÍTÉSnincs megadva
FŰTÉS- CSOK igénybe vehető nem
- Tetőtér beépíthető nem
- Építés éve 2026
- Klíma nem
- Szigetelt nem
A+++
A++
A+
A
B
C
D
E
F
G
H
I
Az ingatlan leírása
Érdeklődni:
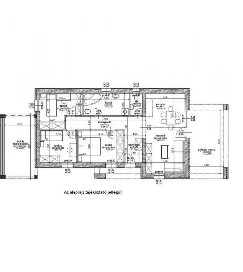
Álmai otthonát keresi Nyíregyháza közkedvelt, dinamikusan fejlődő részén? Oros csendes utcájában (Folyócska utca), 480 nm-es telekrészen eladó egy bruttó 80, valójában 105 nm-es, nappali + 3 szobás (4 szobás), földszintes, új építésű családi ház, amely a mai kor energetikai elvárásainak maximálisan megfelel!
Miért válassza ezt az otthont? Az ingatlan 2026-ban kerül átadásra, így Önnek most még lehetősége van saját ízlésére formálni a belső tereket! A ház modern megjelenését az antracit tető és nyílászárók, valamint a fehér homlokzat elegáns kontrasztja adja.
Kiemelkedő Műszaki Tartalom & Energiahatékonyság:
Falazat: 30-as NF teherhordó téglafal + 15 cm külső nikecell szigetelés.
Födém: Fa szerkezet, 30 cm vastag üveggyapot szigeteléssel, gipszkarton álmennyezettel.
Nyílászárók: Prémium, 3 rétegű üvegezésű, 5 kamrás műanyag ablakok (kívül antracit, belül fehér).
Fűtés-Hűtés: Elektromos kazán padlófűtéssel + 5 kW-os hűtő-fűtő klíma gondoskodik a kellemes hőmérsékletről télen-nyáron.
Belső kialakítás és Extrák:
Burkolatok: A szobákban laminált padló, a vizes helyiségekben és a teraszon kerámia burkolat (5.000 Ft/nm árig szabadon választható!).
Szaniterek: Alföldi porcelánok, Mofém csaptelepek, kádas fürdőszoba + külön WC kézmosóval.
Villany: Legrand szerelvények, helyiségenként bőséges konnektor kiállás, TV és internet előkészítés, konyhai gépek (tűzhely, mosogatógép, elszívó) dedikált áramkörei.
Parkolás: Zárt kocsibeálló az árban!
Testreszabhatóság: Az Ön Otthona, Az Ön Stílusa: A vételár tartalmazza a belső ajtókat, valamint a hideg- és melegburkolatokat a megadott keretösszegig. Az ezen felüli extra igények különbözet elszámolásával megvalósíthatók!
Fontos tudnivalók:
Összközműves: Víz, villany, gáz, csatorna bekötve.
A vételár nem tartalmazza: konyhabútor, lámpatestek, kertépítés/füvesítés.
CSOK Plusz és Otthon Start programra alkalmas!
Az OTP Bankcsoport teljes körű ügyintézéssel áll az eladók és a vevők rendelkezésére! Az adásvételi szerződés megkötéséhez igény szerint megbízható ügyvédi közreműködést és sorban állás nélküli hitel tanácsadást biztosítunk ügyfeleink részére!
Álmai otthonát keresi Nyíregyháza közkedvelt, dinamikusan fejlődő részén? Oros csendes utcájában (Folyócska utca), 480 nm-es telekrészen eladó egy bruttó 80, valójában 105 nm-es, nappali + 3 szobás (4 szobás), földszintes, új építésű családi ház, amely a mai kor energetikai elvárásainak maximálisan megfelel!
Miért válassza ezt az otthont? Az ingatlan 2026-ban kerül átadásra, így Önnek most még lehetősége van saját ízlésére formálni a belső tereket! A ház modern megjelenését az antracit tető és nyílászárók, valamint a fehér homlokzat elegáns kontrasztja adja.
Kiemelkedő Műszaki Tartalom & Energiahatékonyság:
Falazat: 30-as NF teherhordó téglafal + 15 cm külső nikecell szigetelés.
Födém: Fa szerkezet, 30 cm vastag üveggyapot szigeteléssel, gipszkarton álmennyezettel.
Nyílászárók: Prémium, 3 rétegű üvegezésű, 5 kamrás műanyag ablakok (kívül antracit, belül fehér).
Fűtés-Hűtés: Elektromos kazán padlófűtéssel + 5 kW-os hűtő-fűtő klíma gondoskodik a kellemes hőmérsékletről télen-nyáron.
Belső kialakítás és Extrák:
Burkolatok: A szobákban laminált padló, a vizes helyiségekben és a teraszon kerámia burkolat (5.000 Ft/nm árig szabadon választható!).
Szaniterek: Alföldi porcelánok, Mofém csaptelepek, kádas fürdőszoba + külön WC kézmosóval.
Villany: Legrand szerelvények, helyiségenként bőséges konnektor kiállás, TV és internet előkészítés, konyhai gépek (tűzhely, mosogatógép, elszívó) dedikált áramkörei.
Parkolás: Zárt kocsibeálló az árban!
Testreszabhatóság: Az Ön Otthona, Az Ön Stílusa: A vételár tartalmazza a belső ajtókat, valamint a hideg- és melegburkolatokat a megadott keretösszegig. Az ezen felüli extra igények különbözet elszámolásával megvalósíthatók!
Fontos tudnivalók:
Összközműves: Víz, villany, gáz, csatorna bekötve.
A vételár nem tartalmazza: konyhabútor, lámpatestek, kertépítés/füvesítés.
CSOK Plusz és Otthon Start programra alkalmas!
Az OTP Bankcsoport teljes körű ügyintézéssel áll az eladók és a vevők rendelkezésére! Az adásvételi szerződés megkötéséhez igény szerint megbízható ügyvédi közreműködést és sorban állás nélküli hitel tanácsadást biztosítunk ügyfeleink részére!