Eladó Ház- házrész
Hirdetéskód: 9225122
Openhouse Monor
92 m2
ALAPTERÜLET4
SZOBASZÁMnincs megadva
ÉPÍTÉSnincs megadva
FŰTÉS- CSOK igénybe vehető nem
- Tetőtér beépíthető nem
- Építés éve 2026
- Klíma nem
- Szigetelt nem
A+++
A++
A+
A
B
C
D
E
F
G
H
I
Az ingatlan leírása
Az Openhouse Monor Ingatlaniroda kínálatában eladó a #178180 hivatkozási számú nyáregyházi családi ház.
Eladásra kínálunk egy új építésű, önálló családi házat Nyáregyházán, csendes, rendezett környezetben.
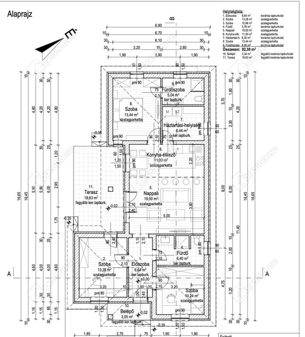
Az ingatlan 92,3 m²-es, 3 szoba + nappalis, tágas terekkel és kiváló elrendezéssel.
A ház 833 m²-es, saját, körbekerített telken helyezkedik el – tökéletes választás családoknak, akik szeretnék élvezni a nyugodt kertvárosi életet, modern kényelemmel párosítva.
- Műszaki tartalom:
Hőszivattyús fűtésrendszer (padlófűtéssel)
A+ energetikai besorolás – alacsony fenntartási költségek
3 rétegű, hő- és hangszigetelt nyílászárók
Tágas nappali és napfényes szobák
- Infrastruktúra és elhelyezkedés
Bölcsőde, óvoda, iskola, kisbolt, buszmegálló 10–15 perc sétán belül
Könnyen megközelíthető: 4-es főút, M4, 405-ös és M5 autóút
Budapest kb. 30 perc alatt elérhető autóval
Megbízható kivitelező által épített, referenciákkal rendelkező projekt, személyesen is megtekinthető korábbi munkákkal.
Modern technológia, kiváló elhelyezkedés, saját telek – ritka lehetőség a piacon!
Ha felkeltette érdeklődését ez az eladó nyáregyházi családi ház, vagy bármely más családi ház és bővebb információt szeretne, keressen bizalommal.Hivatkozási szám: #178180
Az Openhouse Monor Ingatlaniroda tagjaként várom Önt az országos hálózatunk teljes kínálatával.
A családi ház vásárláshoz hitelt igényelne? Ingyenes hitelközvetítéssel segít Önnek bankfüggetlen hitelszakértőnk.
További szolgáltatásainkkal (pl. értékbecslés, energetikai tanúsítvány, jogi háttér) is segítjük Önt a vásárlásban.
Az otthon érték. Az ingatlan üzlet.
Eladásra kínálunk egy új építésű, önálló családi házat Nyáregyházán, csendes, rendezett környezetben.
Az ingatlan 92,3 m²-es, 3 szoba + nappalis, tágas terekkel és kiváló elrendezéssel.
A ház 833 m²-es, saját, körbekerített telken helyezkedik el – tökéletes választás családoknak, akik szeretnék élvezni a nyugodt kertvárosi életet, modern kényelemmel párosítva.
- Műszaki tartalom:
Hőszivattyús fűtésrendszer (padlófűtéssel)
A+ energetikai besorolás – alacsony fenntartási költségek
3 rétegű, hő- és hangszigetelt nyílászárók
Tágas nappali és napfényes szobák
- Infrastruktúra és elhelyezkedés
Bölcsőde, óvoda, iskola, kisbolt, buszmegálló 10–15 perc sétán belül
Könnyen megközelíthető: 4-es főút, M4, 405-ös és M5 autóút
Budapest kb. 30 perc alatt elérhető autóval
Megbízható kivitelező által épített, referenciákkal rendelkező projekt, személyesen is megtekinthető korábbi munkákkal.
Modern technológia, kiváló elhelyezkedés, saját telek – ritka lehetőség a piacon!
Ha felkeltette érdeklődését ez az eladó nyáregyházi családi ház, vagy bármely más családi ház és bővebb információt szeretne, keressen bizalommal.Hivatkozási szám: #178180
Az Openhouse Monor Ingatlaniroda tagjaként várom Önt az országos hálózatunk teljes kínálatával.
A családi ház vásárláshoz hitelt igényelne? Ingyenes hitelközvetítéssel segít Önnek bankfüggetlen hitelszakértőnk.
További szolgáltatásainkkal (pl. értékbecslés, energetikai tanúsítvány, jogi háttér) is segítjük Önt a vásárlásban.
Az otthon érték. Az ingatlan üzlet.