Eladó Ház- házrész
Hirdetéskód: 9303476
Szi-We Otthona Kft.
Felújításhoz személyi kölcsönt keres? Kalkuláljon itt! →185.00 m2
ALAPTERÜLET5
SZOBASZÁMnincs megadva
ÉPÍTÉSnincs megadva
FŰTÉS- CSOK igénybe vehető nem
- Tetőtér beépíthető nem
- Építés éve 2022
- Klíma nem
- Szigetelt nem
A+++
A++
A+
A
B
C
D
E
F
G
H
I
Az ingatlan leírása
Prémium családi otthon Nagytarcsán – modern luxus a mindennapokban
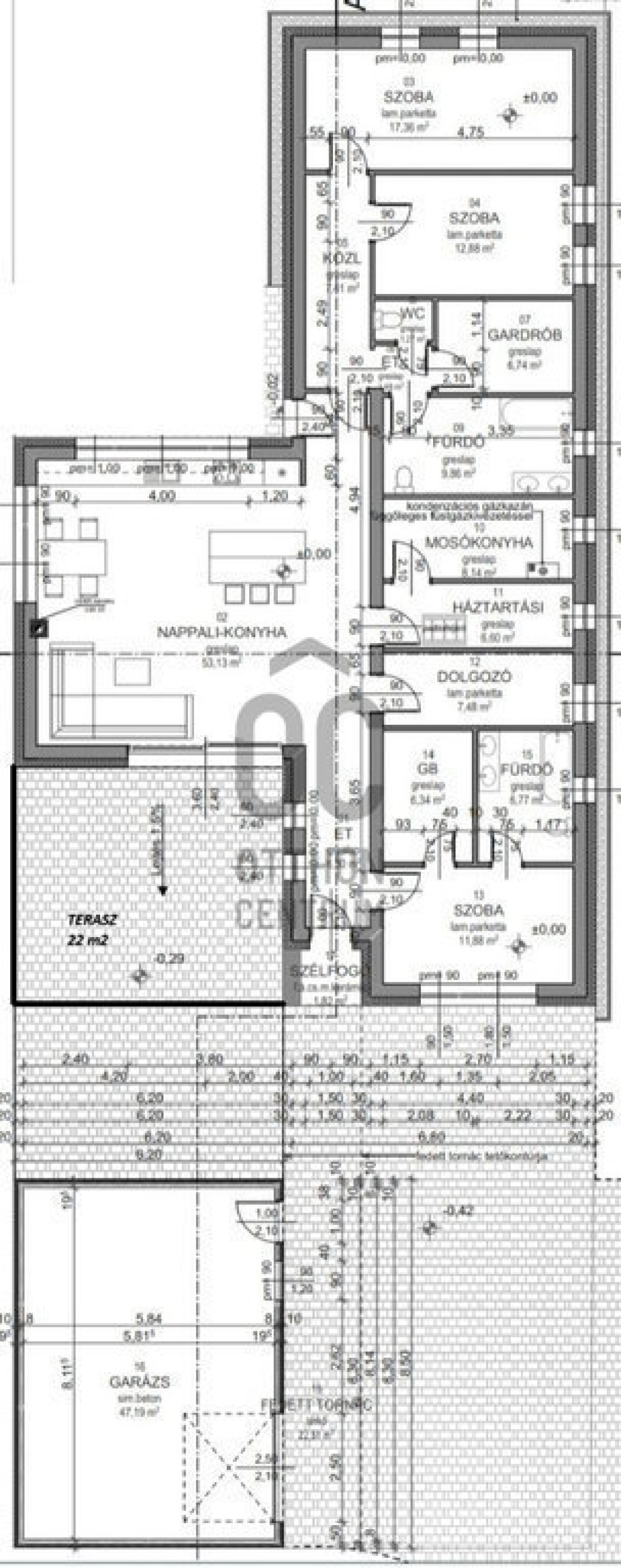
Megvételre kínálok egy 2022-ben épült, 185 m²-es családi házat Pest vármegye szívében, Nagytarcsán. A tágas, amerikai konyhás nappali és három és fél szoba ideális teret biztosít a családi együttlétekhez és baráti összejövetelekhez.
Ez a ház a részletekben rejlik: dupla szigetelés, padlófűtés, márvány burkolatok, hang- és hőszigetelt betonfödém, télikert pince kialakítással, 5 inverteres klíma, két fürdőszoba, három WC és 2 állásos garázs. A tetőtér kiállásai lehetővé teszik a bővítést, így az otthon a család igényeihez rugalmasan alakítható.
966 m²-es telek, magánút, terasz és biztonságos, csendes környék teszik a házat ideális választássá azok számára, akik a nyugalmat és a prémium minőséget keresik. Nagytarcsa kiváló közlekedési kapcsolatokkal rendelkezik, így a főváros percek alatt elérhető.
Ez az ingatlan nem csupán ház, hanem exkluzív otthon, ahol a modern élet minden igénye kielégíthető. Ha Ön is szeretné megtalálni családja új otthonát, keressen bizalommal, szívesen bemutatom személyesen is.
Megvételre kínálok egy 2022-ben épült, 185 m²-es családi házat Pest vármegye szívében, Nagytarcsán. A tágas, amerikai konyhás nappali és három és fél szoba ideális teret biztosít a családi együttlétekhez és baráti összejövetelekhez.
Ez a ház a részletekben rejlik: dupla szigetelés, padlófűtés, márvány burkolatok, hang- és hőszigetelt betonfödém, télikert pince kialakítással, 5 inverteres klíma, két fürdőszoba, három WC és 2 állásos garázs. A tetőtér kiállásai lehetővé teszik a bővítést, így az otthon a család igényeihez rugalmasan alakítható.
966 m²-es telek, magánút, terasz és biztonságos, csendes környék teszik a házat ideális választássá azok számára, akik a nyugalmat és a prémium minőséget keresik. Nagytarcsa kiváló közlekedési kapcsolatokkal rendelkezik, így a főváros percek alatt elérhető.
Ez az ingatlan nem csupán ház, hanem exkluzív otthon, ahol a modern élet minden igénye kielégíthető. Ha Ön is szeretné megtalálni családja új otthonát, keressen bizalommal, szívesen bemutatom személyesen is.