Eladó Ház- házrész
Hirdetéskód: 9245828
Egylet.hu
Ez a hirdetés megfelelhet a FIX 3%-os programnak.
Tudj meg többet a részletekről itt.
138.00 m2
ALAPTERÜLET5
SZOBASZÁMnincs megadva
ÉPÍTÉSnincs megadva
FŰTÉS- Belső szintek 1
- Építés éve 2026
A+++
A++
A+
A
B
C
D
E
F
G
H
I
Az ingatlan leírása
Megvételre kínálunk Nagytarcsán, az Öreghegyen egy új építésű, NAPELEMES, három teraszos, 138 nm-es, 2 fürdős, 5 szobás, egyszintes, önálló családi házat. A ház tájolása és elosztása kiváló, tágas, világos, nyitott nagy terekkel rendelkezik.
Az ingatlan igényes kivitelezéssel, minőségi alapanyagokból, átgondolt tervezéssel, egyedi belső kialakítással készült, ahol a kényelem és az átgondolt tervezés mellett az energia takarékosság volt a fő szempont.
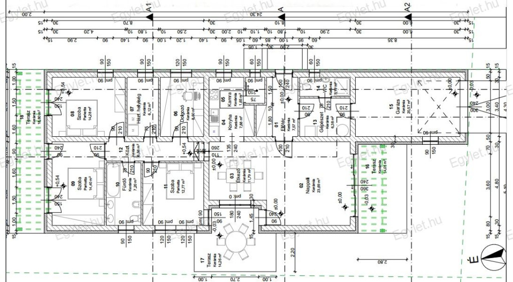
Az ingatlan 21 nm es garázzsal és három nagy méretű terasszal rendelkezik. A teraszok méretei: 14 nm, 19 nm és még egy 14 nm-es terasz. A ház fűtéséről hőszivattyú gondoskodik, ehhez társul egy napelem rendszer. Ennek köszönhetően a rezsi költségek minimalizálódnak. A ház egy 750 nm-es telken fekszik, további gépjármű beállási lehetőséggel.
Az egyszintes, földszintes ingatlan helyiségei:
Három terasz
Garázs
Gépészet
WC
Előtér
Közlekedő
Kamra
Konyha
Két fürdő
Dolgozó szoba
Három hálószoba
Étkező
Nappali
Ennél a beruházásnál most lehetősége van kompromisszumok nélkül egy olyan házba költözni, ahol Ön kiválaszthatja a hideg és meleg burkolatokat, szanitereket, valamint az egyéb kiegészítőket a családja legnagyobb megelégedésére, ez által személyre szabva álmai otthonát.
Az ingatlan biztonságos, kertes házas övezetben, Nagytarcsa legszebb részén az Öreghegyen található. Közlekedése busszal a cinkotai Hév megállóhoz megoldott, illetve az az M0-ás autópálya is rövid idő alatt elérhető.
Hitel, CSOK igénylésben díjmentes ügyintézéssel állunk rendelkezésére!
Várom megtisztelő érdeklődésüket.
Az ingatlan igényes kivitelezéssel, minőségi alapanyagokból, átgondolt tervezéssel, egyedi belső kialakítással készült, ahol a kényelem és az átgondolt tervezés mellett az energia takarékosság volt a fő szempont.
Az ingatlan 21 nm es garázzsal és három nagy méretű terasszal rendelkezik. A teraszok méretei: 14 nm, 19 nm és még egy 14 nm-es terasz. A ház fűtéséről hőszivattyú gondoskodik, ehhez társul egy napelem rendszer. Ennek köszönhetően a rezsi költségek minimalizálódnak. A ház egy 750 nm-es telken fekszik, további gépjármű beállási lehetőséggel.
Az egyszintes, földszintes ingatlan helyiségei:
Három terasz
Garázs
Gépészet
WC
Előtér
Közlekedő
Kamra
Konyha
Két fürdő
Dolgozó szoba
Három hálószoba
Étkező
Nappali
Ennél a beruházásnál most lehetősége van kompromisszumok nélkül egy olyan házba költözni, ahol Ön kiválaszthatja a hideg és meleg burkolatokat, szanitereket, valamint az egyéb kiegészítőket a családja legnagyobb megelégedésére, ez által személyre szabva álmai otthonát.
Az ingatlan biztonságos, kertes házas övezetben, Nagytarcsa legszebb részén az Öreghegyen található. Közlekedése busszal a cinkotai Hév megállóhoz megoldott, illetve az az M0-ás autópálya is rövid idő alatt elérhető.
Hitel, CSOK igénylésben díjmentes ügyintézéssel állunk rendelkezésére!
Várom megtisztelő érdeklődésüket.