Eladó Ház- házrész
Hirdetéskód: 9249099

Duna House - Új-Lak Bázis Kft.

FIX 3% Program

Ez a hirdetés megfelelhet a FIX 3%-os programnak.
Tudj meg többet a részletekről itt.

134.00 m2
ALAPTERÜLET
4
SZOBASZÁM
nincs megadva
ÉPÍTÉS
nincs megadva
FŰTÉS
  • CSOK igénybe vehető nem
  • Tetőtér beépíthető nem
  • Építés éve 2022
  • Klíma nem
  • Szigetelt nem
Energetikai besorolás: Nincs meghatározva
A+++
A++
A+
A
B
C
D
E
F
G
H
I

Az ingatlan leírása

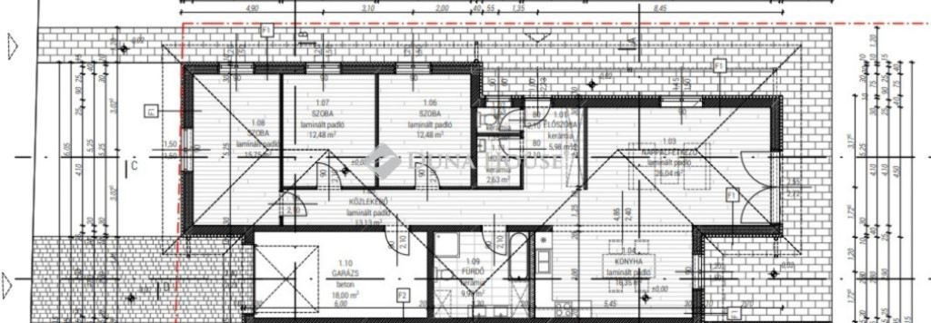
Nagytarcsán, új építésű házak között, új lakóparkban eladó lett egy teljesen kész, konyhabútorral ellátott, AZONNAL KÖLTÖZHETŐ ingatlan.A környezet rendezett, igazi családias hangulatú környék.Az OTTHON:- 2022-ben épült IKERHÁZ- 486 m2-es saját telekkel rendelkezik.EXTRÁK- ELEKTROMOS REDŐNYÖK!- ELEKTROMOS GARÁZSKAPU!- AJÍÁNDÉK KONYHABÚTORMűszaki paraméterek:- 134,87 m2, amely: garázs + amerikai konyhás nappaliból, 3 szobából, fürdőszobából és külön WC.-ből áll. - Az épület 30 cm YTONG, külső falazata szigetelt,- Fűtése hőszivattyúval történik, elektromos- Tetőszerkezet: hagyományos ácsolású, fafödémes.Független, gyors hiteltanácsadással, Energetikai Tanúsítvány készítéssel, Értékbecsléssel és a Duna House teljes kínálatával állok rendelkezésére.További információért keressen! Ha nem tudom felvenni, visszahívom.

Térkép

A hirdető elérhetősége

Duna House - Új-Lak Bázis Kft.

Káplár Ildikó
+36 30 468