Eladó Ház- házrész
Hirdetéskód: 9279624
OTP Ingatlanpont Csongrád
Felújításhoz személyi kölcsönt keres? Kalkuláljon itt! →96.00 m2
ALAPTERÜLET3
SZOBASZÁMnincs megadva
ÉPÍTÉSnincs megadva
FŰTÉS- CSOK igénybe vehető nem
- Tetőtér beépíthető nem
- Építés éve 1940
- Klíma nem
- Szigetelt nem
A+++
A++
A+
A
B
C
D
E
F
G
H
I
Az ingatlan leírása
Csak az OTP Ingatlanpont kínálatában!
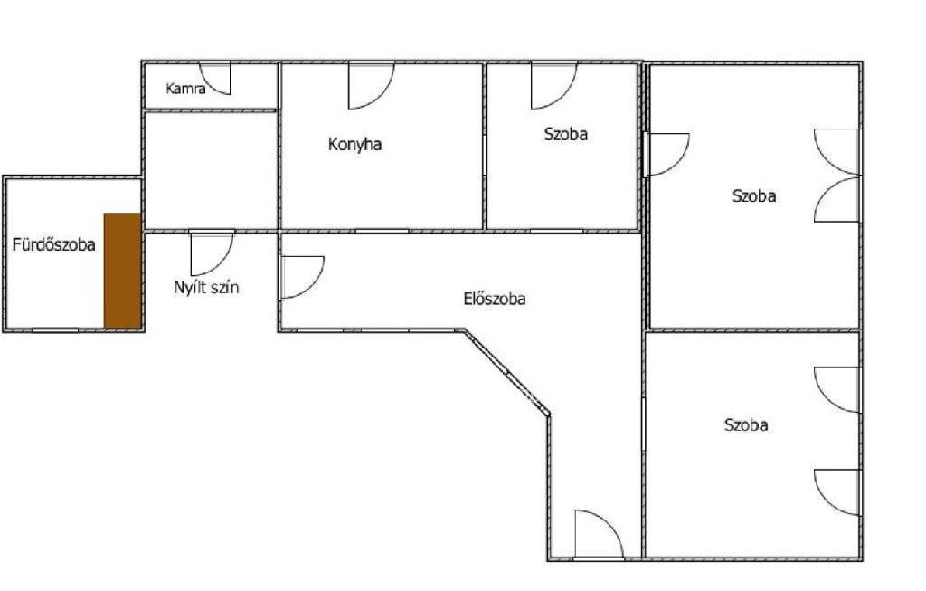
Eladó Csongrád-Csanád vármegyében, Nagyér község központjához közel, egy 3 szoba, előszoba/közlekedő, konyha, kamra, fürdőszoba helyiségekből álló, felújítandó állapotú, 100 m2-es, vegyes falazatú (nagyrészt tégla és vályog) családi ház!
A ház 1940 körül épült, ahhoz 2000 m2-es nagy telek tartozik, pár frissen ültetett gyümölcsfával. A telken góré és tároló található.
A ház szerkezetileg és statikailag jó állapotban van.
A nyílt szín mellett, a padlásfeljáró melletti helyiségben került kialakításra egy nagyobb fürdőszoba, mely a nyílt színnel és így a ház hosszú közlekedőjével egybe nyitható. A tető is jó állapotú.
A ház felújítása pár éve megkezdődött: a tulaj minden szobába új ablakokat szereltetett be. A napfényes előszoba fix ablakai a régiek.
A fürdőszoba kialakítása megkezdődött: ide be lett szerezve a vadiúj csempe és a vadiúj dizájner zuhanykabin káddal. Komplett fürdőszoba berendezés jár hozzá, a zuhanykabin és kád mellett bojler, wc és hangulatfények is, valamint az új csempéhez illő szintén új nagyalakú szürke járólap. A sarki szobához új padlószőnyeg és fa karnis jár. A kamrához is jár 2 db fém, stabil polc, becsomagolt állapotban. Minden az OBI-ból lett beszerezve.
Ezek a berendezések mind maradnak a házban, részei a vételárnak. Itt maradnak továbbá a friss függönykarnisok és pár új beltéri ajtó is. A ház le lett betonozva és pár helyen falazás is történt új téglákkal.
Víz, villany, gáz van a házban, jelenleg szüneteltetve vannak, a minimális villany kivételével. Világítás jelenleg csak egy szobában van, a többiben nincs lámpa, egyébként a világítás mindenhol be van vezetve és működőképes.
A háznak fűtése jelenleg nincs (a régi le lett szerelve), de ki lett építve a hálózat radiátoros egyedi gázfűtéshez.
A ház mind párok, mind családok számára tökéletes lehet jó elhelyezkedése, méretei és adottságai alapján! Bár a ház felújítását be kell fejezni, kifejezetten hangulatos otthon alakítható ki belőle. Csendes helyen van, de a központhoz közel, a házhoz tartozó nagy telek is sok lehetőséget rajt magában.
A község rendezett, van bolt, orvos, gyógyszertár, védőnő, óvoda és alsó tagozatos általános iskola is, mind a házhoz közel. A községben könyvtár is működik, van közösségi élet is.
Mezőhegyes 12 perc, Tótkomlós 5 perc alatt elérhető autóval.
Az ingatlan tehermentes, arra hitel, babaváró támogatás is felvehető, melynek elintézésében szintén gyors és szakértő segítséget nyújtunk önnek igény esetén!
A ház az adásvétel után kisebb kipakolást követően birtokba vehető!
Ha felkeltettem érdeklődését, keressen bizalommal!
Vagy esetleg ingatlant adna el? Akkor is keressen bátran a megadott telefonszámon! Akár ingyenes árkalkulációt is szívesen végzünk Önnek, további kötöttségek nélkül!
Eladó Csongrád-Csanád vármegyében, Nagyér község központjához közel, egy 3 szoba, előszoba/közlekedő, konyha, kamra, fürdőszoba helyiségekből álló, felújítandó állapotú, 100 m2-es, vegyes falazatú (nagyrészt tégla és vályog) családi ház!
A ház 1940 körül épült, ahhoz 2000 m2-es nagy telek tartozik, pár frissen ültetett gyümölcsfával. A telken góré és tároló található.
A ház szerkezetileg és statikailag jó állapotban van.
A nyílt szín mellett, a padlásfeljáró melletti helyiségben került kialakításra egy nagyobb fürdőszoba, mely a nyílt színnel és így a ház hosszú közlekedőjével egybe nyitható. A tető is jó állapotú.
A ház felújítása pár éve megkezdődött: a tulaj minden szobába új ablakokat szereltetett be. A napfényes előszoba fix ablakai a régiek.
A fürdőszoba kialakítása megkezdődött: ide be lett szerezve a vadiúj csempe és a vadiúj dizájner zuhanykabin káddal. Komplett fürdőszoba berendezés jár hozzá, a zuhanykabin és kád mellett bojler, wc és hangulatfények is, valamint az új csempéhez illő szintén új nagyalakú szürke járólap. A sarki szobához új padlószőnyeg és fa karnis jár. A kamrához is jár 2 db fém, stabil polc, becsomagolt állapotban. Minden az OBI-ból lett beszerezve.
Ezek a berendezések mind maradnak a házban, részei a vételárnak. Itt maradnak továbbá a friss függönykarnisok és pár új beltéri ajtó is. A ház le lett betonozva és pár helyen falazás is történt új téglákkal.
Víz, villany, gáz van a házban, jelenleg szüneteltetve vannak, a minimális villany kivételével. Világítás jelenleg csak egy szobában van, a többiben nincs lámpa, egyébként a világítás mindenhol be van vezetve és működőképes.
A háznak fűtése jelenleg nincs (a régi le lett szerelve), de ki lett építve a hálózat radiátoros egyedi gázfűtéshez.
A ház mind párok, mind családok számára tökéletes lehet jó elhelyezkedése, méretei és adottságai alapján! Bár a ház felújítását be kell fejezni, kifejezetten hangulatos otthon alakítható ki belőle. Csendes helyen van, de a központhoz közel, a házhoz tartozó nagy telek is sok lehetőséget rajt magában.
A község rendezett, van bolt, orvos, gyógyszertár, védőnő, óvoda és alsó tagozatos általános iskola is, mind a házhoz közel. A községben könyvtár is működik, van közösségi élet is.
Mezőhegyes 12 perc, Tótkomlós 5 perc alatt elérhető autóval.
Az ingatlan tehermentes, arra hitel, babaváró támogatás is felvehető, melynek elintézésében szintén gyors és szakértő segítséget nyújtunk önnek igény esetén!
A ház az adásvétel után kisebb kipakolást követően birtokba vehető!
Ha felkeltettem érdeklődését, keressen bizalommal!
Vagy esetleg ingatlant adna el? Akkor is keressen bátran a megadott telefonszámon! Akár ingyenes árkalkulációt is szívesen végzünk Önnek, további kötöttségek nélkül!