Eladó Ház- házrész
Hirdetéskód: 9213813
Győr Bajcsy-Zsilinszky út 27 - OTP Ingatlanpont Iroda
Ez a hirdetés megfelelhet a FIX 3%-os programnak.
Tudj meg többet a részletekről itt.
86 m2
ALAPTERÜLET2
SZOBASZÁMnincs megadva
ÉPÍTÉSnincs megadva
FŰTÉS- CSOK igénybe vehető nem
- Tetőtér beépíthető nem
- Építés éve 1954
- Klíma nem
- Szigetelt nem
A+++
A++
A+
A
B
C
D
E
F
G
H
I
Az ingatlan leírása
Költözz Nagybajcsra és alakítsd ki álmaid otthonát!
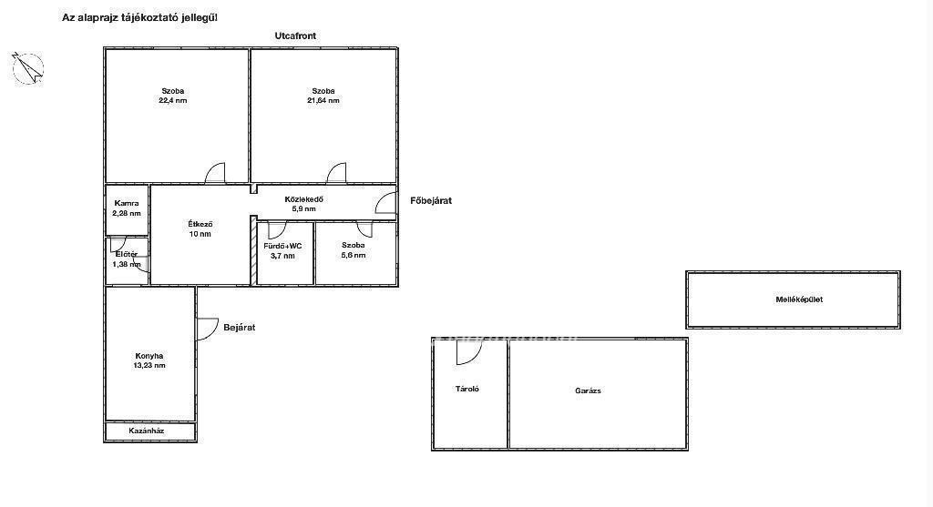
Szereted a nagy telket, a csendes környéket és van affinitásod a barkácsoláshoz? Akkor ezt nézd meg! 1240 nm-es telek, rajta egy 86 nm-es, tégla építésű ház, amit úgy újíthatsz fel, ahogy csak szeretnél.
2 nagy szoba + 1 félszoba, külön étkező és konyha, garázs az udvarban
A ház felújítandó, de a lehetőség benne van: varázsolj belőle otthont vagy épp befektetést!
Csendes utcában, közel a természethez és Győrhöz is.
Az ingatlan megfelel azOtthon Start Hitelprogramfeltételeinek.
Hívj fel és nézzük meg együtt ezt a kivételes lehetőséget!
Referenciaszám: M307301
46990000 Ft
Szereted a nagy telket, a csendes környéket és van affinitásod a barkácsoláshoz? Akkor ezt nézd meg! 1240 nm-es telek, rajta egy 86 nm-es, tégla építésű ház, amit úgy újíthatsz fel, ahogy csak szeretnél.
2 nagy szoba + 1 félszoba, külön étkező és konyha, garázs az udvarban
A ház felújítandó, de a lehetőség benne van: varázsolj belőle otthont vagy épp befektetést!
Csendes utcában, közel a természethez és Győrhöz is.
Az ingatlan megfelel azOtthon Start Hitelprogramfeltételeinek.
Hívj fel és nézzük meg együtt ezt a kivételes lehetőséget!
Referenciaszám: M307301
46990000 Ft