Eladó Ház- házrész
Hirdetéskód: 9311990
Openhouse Kaposvár Ingatlaniroda
Felújításhoz személyi kölcsönt keres? Kalkuláljon itt! →250.00 m2
ALAPTERÜLET6
SZOBASZÁMnincs megadva
ÉPÍTÉSHázközponti
FŰTÉS- CSOK igénybe vehető nem
- Tetőtér beépíthető nem
- Építés éve 2001
- Fűtés Házközponti
- Klíma nem
- Szigetelt nem
A+++
A++
A+
A
B
C
D
E
F
G
H
I
Az ingatlan leírása
Az Openhouse Kaposvár Ingatlaniroda kínálatában eladó a #180441 hivatkozási számú nagyatádi családi ház.
Prémium családi rezidencia eladó Nagyatád szívében
Nagyatád belvárosának egyik legkeresettebb részén kínálunk megvételre egy igazán exkluzív megjelenésű, 2001-ben épült, kifogástalan állapotú családi házat, mely egy 479 m²-es, gondosan kialakított telken helyezkedik el.
Az ingatlan elhelyezkedése páratlan: mindössze néhány lépésre találhatóak a mindennapi élethez szükséges üzletek (Lidl, Eco Family, Pepco, pékség), míg óvoda és bölcsőde csupán 200 méterre biztosítja a család kényelmét.
A ház minden részletében a komfort és a minőség találkozik:
modern gáz központi fűtés padlófűtéssel és radiátorokkal
hangulatos cserépkályha a nappaliban
3x32 Amperes elektromos hálózat, ipari áram
riasztórendszer a maximális biztonságért
klímaberendezés a nyári hónapokra
Belső terek – elegancia és funkcionalitás harmóniája
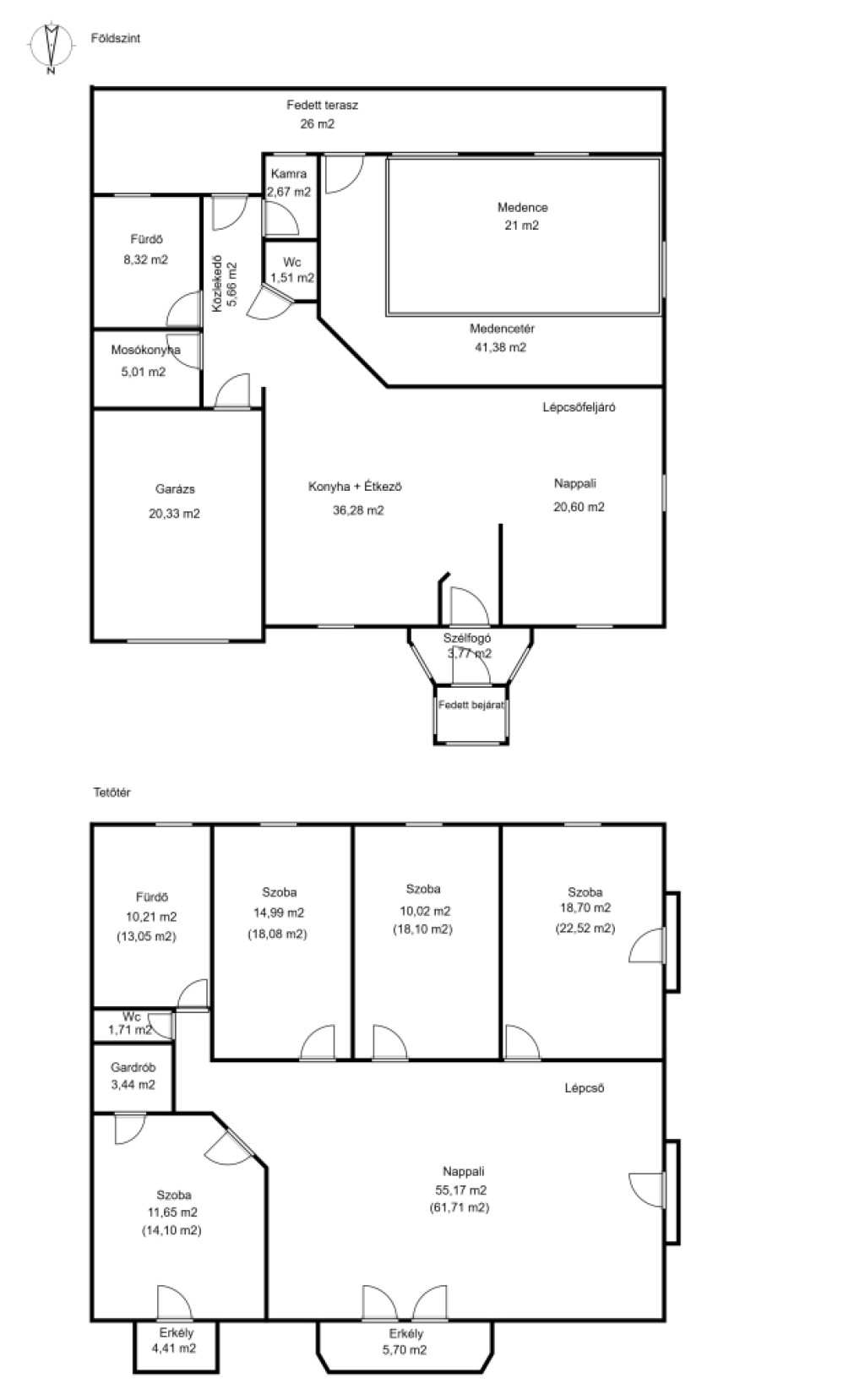
A földszinten:
tágas, amerikai konyhás nappali, a családi élet központja
mosókonyha, kamra, közlekedő
fürdőszoba és külön WC
egyedi kialakítású beltéri medencetér (6×3,5 m-es medencével), amely egész évben wellness élményt nyújt
garázs közvetlen házkapcsolattal
26 m²-es fedett terasz, ideális pihenéshez és kikapcsolódáshoz
A tetőtérben:
világos, tágas nappali
4 külön nyíló szoba
fürdőszoba és külön WC
gardrób
két erkély, ahonnan kellemes kilátás nyílik a környékre
Elhelyezkedés és környezet
Az ingatlan Belső-Somogy déli részén, egy kellemes hangulatú, élhető kisvárosban, Nagyatádon található. A település kiváló földrajzi adottságokkal rendelkezik: a Balatontól mintegy 60 km-re, Kaposvártól 50 km-re, valamint a magyar–horvát határtól mindössze 20 km-re helyezkedik el, a 68-as főútvonal mentén.
A várost a Rinya-patak szeli át, amely tovább erősíti a természetközeli, nyugodt atmoszférát. Nagyatád méltán ismert rendezett parkjairól, kiterjedt zöldterületeiről, valamint gyógyvizes fürdőjéről, amely nemcsak a helyiek, hanem a turisták körében is közkedvelt.
A település különösen ideális családok számára: több óvoda, iskola és minden szükséges intézmény megtalálható, így a mindennapi élet kényelmesen és biztonságosan szervezhető.
Ez az ingatlan tökéletes választás mindazok számára, akik a városi kényelem mellett exkluzív életteret és nyugodt, harmonikus otthont keresnek.
Ha felkeltette érdeklődését ez az eladó nagyatádi családi ház, vagy bármely más családi ház és bővebb információt szeretne, keressen bizalommal. Hivatkozási szám: #180441
Az Openhouse Kaposvár Ingatlaniroda tagjaként várom Önt az országos hálózatunk teljes kínálatával.
A családi ház vásárláshoz hitelt igényelne? Ingyenes hitelközvetítéssel segít Önnek bankfüggetlen hitelszakértőnk.
További szolgáltatásainkkal (pl. értékbecslés, energetikai tanúsítvány, jogi háttér) is segítjük Önt a vásárlásban.
Az otthon érték. Az ingatlan üzlet.
Prémium családi rezidencia eladó Nagyatád szívében
Nagyatád belvárosának egyik legkeresettebb részén kínálunk megvételre egy igazán exkluzív megjelenésű, 2001-ben épült, kifogástalan állapotú családi házat, mely egy 479 m²-es, gondosan kialakított telken helyezkedik el.
Az ingatlan elhelyezkedése páratlan: mindössze néhány lépésre találhatóak a mindennapi élethez szükséges üzletek (Lidl, Eco Family, Pepco, pékség), míg óvoda és bölcsőde csupán 200 méterre biztosítja a család kényelmét.
A ház minden részletében a komfort és a minőség találkozik:
modern gáz központi fűtés padlófűtéssel és radiátorokkal
hangulatos cserépkályha a nappaliban
3x32 Amperes elektromos hálózat, ipari áram
riasztórendszer a maximális biztonságért
klímaberendezés a nyári hónapokra
Belső terek – elegancia és funkcionalitás harmóniája
A földszinten:
tágas, amerikai konyhás nappali, a családi élet központja
mosókonyha, kamra, közlekedő
fürdőszoba és külön WC
egyedi kialakítású beltéri medencetér (6×3,5 m-es medencével), amely egész évben wellness élményt nyújt
garázs közvetlen házkapcsolattal
26 m²-es fedett terasz, ideális pihenéshez és kikapcsolódáshoz
A tetőtérben:
világos, tágas nappali
4 külön nyíló szoba
fürdőszoba és külön WC
gardrób
két erkély, ahonnan kellemes kilátás nyílik a környékre
Elhelyezkedés és környezet
Az ingatlan Belső-Somogy déli részén, egy kellemes hangulatú, élhető kisvárosban, Nagyatádon található. A település kiváló földrajzi adottságokkal rendelkezik: a Balatontól mintegy 60 km-re, Kaposvártól 50 km-re, valamint a magyar–horvát határtól mindössze 20 km-re helyezkedik el, a 68-as főútvonal mentén.
A várost a Rinya-patak szeli át, amely tovább erősíti a természetközeli, nyugodt atmoszférát. Nagyatád méltán ismert rendezett parkjairól, kiterjedt zöldterületeiről, valamint gyógyvizes fürdőjéről, amely nemcsak a helyiek, hanem a turisták körében is közkedvelt.
A település különösen ideális családok számára: több óvoda, iskola és minden szükséges intézmény megtalálható, így a mindennapi élet kényelmesen és biztonságosan szervezhető.
Ez az ingatlan tökéletes választás mindazok számára, akik a városi kényelem mellett exkluzív életteret és nyugodt, harmonikus otthont keresnek.
Ha felkeltette érdeklődését ez az eladó nagyatádi családi ház, vagy bármely más családi ház és bővebb információt szeretne, keressen bizalommal. Hivatkozási szám: #180441
Az Openhouse Kaposvár Ingatlaniroda tagjaként várom Önt az országos hálózatunk teljes kínálatával.
A családi ház vásárláshoz hitelt igényelne? Ingyenes hitelközvetítéssel segít Önnek bankfüggetlen hitelszakértőnk.
További szolgáltatásainkkal (pl. értékbecslés, energetikai tanúsítvány, jogi háttér) is segítjük Önt a vásárlásban.
Az otthon érték. Az ingatlan üzlet.