Eladó Ház- házrész
Hirdetéskód: 9243969
OTP Ingatlanpont Siófok
Felújításhoz személyi kölcsönt keres? Kalkuláljon itt! →
Ez a hirdetés megfelelhet a FIX 3%-os programnak.
Tudj meg többet a részletekről itt.
170.00 m2
ALAPTERÜLET4
SZOBASZÁMnincs megadva
ÉPÍTÉSHázközponti
FŰTÉS- CSOK igénybe vehető nem
- Tetőtér beépíthető nem
- Építés éve 1986
- Fűtés Házközponti
- Klíma nem
- Szigetelt nem
A+++
A++
A+
A
B
C
D
E
F
G
H
I
Az ingatlan leírása
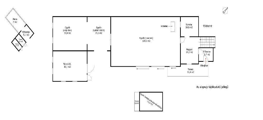
Nágocson eladó egy kiváló állapotú, téglaépítésű családi ház, amelyhez kiemelkedő mezőgazdasági adottságokkal rendelkező, összesen 17 200 m2-es terület tartozik. Nágocs Somogy vármegyében, a Balaton déli térségében helyezkedik el, a Balatontól 25-30 km-re, míg az igali gyógyfürdőtől mindössze 15 km-re. A 170 m2-es, többszintes lakóingatlan földszintből, első és második emeletből, beépített tetőtérből, valamint alagsori részből áll. Az épületben 5 szoba, 2 fürdőszoba, kamra, garázs, kazánház kapott helyet, illetve egy vadiúj, igényesen kialakított konyharész, valamint több beépített szekrény szolgálja a mindennapi kényelmet.
A ház központi fűtéssel rendelkezik, gáz- és fatüzelési lehetőséggel, a meleg vizet villanybojlerek adják . A földszinten minden nyílászáró műanyagra cserélt, a felsőbb szinteken található fa nyílászárók pedig szintén kiváló állapotúak, redőnnyel és szúnyoghálóval felszereltek. Az épület szigetelt, folyamatosan felújított, karbantartott, azonnal használatba vehető állapotú.
A 17 200 m2-es telek jelentős része, 15 557 m2 szántó, amely földművelésre, kertészetre, takarmánytermesztésre vagy önellátó gazdálkodásra alkalmas. A területen számos gyümölcsfa található illetve az udvarban egy hangulatos fedett pergola.
A gazdasági épületek kiemelkedőek: rendelkezésre áll 100 m2 több funkciót ellátó melléképület (állatartás, pince..stb.), valamint egy 100 m2-es, több mint 3,5 m belmagasságú csarnok, amely traktorok, mezőgazdasági gépek, eszközök tárolására kiválóan alkalmas.
Az ingatlan irányáron kerül meghirdetésre, alkuképes, a bútorozás külön megállapodás tárgyát képezi, számos berendezési tárgy az ingatlanban maradhat, ami jelentősen megkönnyíti az azonnali beköltözést.
Megfelel az Otthon Start program feltételeinek, így lehetőséget kínál azok számára is, akik állami támogatással szeretnék megvalósítani otthonteremtési terveiket.
A ház központi fűtéssel rendelkezik, gáz- és fatüzelési lehetőséggel, a meleg vizet villanybojlerek adják . A földszinten minden nyílászáró műanyagra cserélt, a felsőbb szinteken található fa nyílászárók pedig szintén kiváló állapotúak, redőnnyel és szúnyoghálóval felszereltek. Az épület szigetelt, folyamatosan felújított, karbantartott, azonnal használatba vehető állapotú.
A 17 200 m2-es telek jelentős része, 15 557 m2 szántó, amely földművelésre, kertészetre, takarmánytermesztésre vagy önellátó gazdálkodásra alkalmas. A területen számos gyümölcsfa található illetve az udvarban egy hangulatos fedett pergola.
A gazdasági épületek kiemelkedőek: rendelkezésre áll 100 m2 több funkciót ellátó melléképület (állatartás, pince..stb.), valamint egy 100 m2-es, több mint 3,5 m belmagasságú csarnok, amely traktorok, mezőgazdasági gépek, eszközök tárolására kiválóan alkalmas.
Az ingatlan irányáron kerül meghirdetésre, alkuképes, a bútorozás külön megállapodás tárgyát képezi, számos berendezési tárgy az ingatlanban maradhat, ami jelentősen megkönnyíti az azonnali beköltözést.
Megfelel az Otthon Start program feltételeinek, így lehetőséget kínál azok számára is, akik állami támogatással szeretnék megvalósítani otthonteremtési terveiket.