Eladó Ház- házrész
Hirdetéskód: 9238012
Mov-Ing Home
103 m2
ALAPTERÜLET5
SZOBASZÁMnincs megadva
ÉPÍTÉSnincs megadva
FŰTÉS- CSOK igénybe vehető nem
- Tetőtér beépíthető nem
- Építés éve 2026
- Klíma nem
- Szigetelt nem
A+++
A++
A+
A
B
C
D
E
F
G
H
I
Az ingatlan leírása
Új Építésű, A+ Energetikai Besorolású Családi Ház Mosonszolnokon!
Kivételes lehetőség! Eladó egy modern, újonnan épülő családi ház 550 nm telekkel Mosonszolnokon, amely a legszigorúbb energetikai követelményeknek is megfelel, kiemelkedő A+ besorolással!
A főbb adatok, amelyek garantálják az alacsony rezsit:
Helyszín: Mosonszolnok
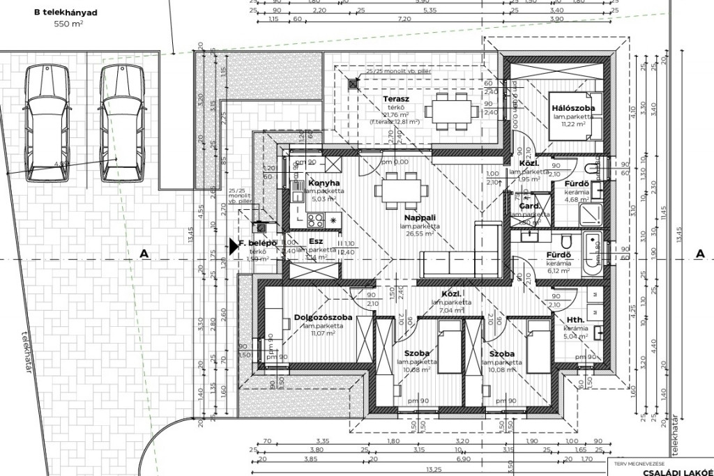
Alapterület: 103,80 m² hasznos alapterület
Elosztása: 4 szoba, nappali-konyha, 2 fürdőszoba, gardrób, háztartási helyiség, nagy terasz (udvari részen két kocsibeálló)
Energetikai minőség: A+
Környezettudatosság: Rendkívül alacsony CO₂ kibocsátás: A+ besorolás.
Fűtési energiaigény: Éves nettó igény mindössze 42,10 kWh/m²év. Az épület fűtését a háztartási helyiségben elhelyezett levegő-víz rendszerű hőszivattyú fogja biztosítani
Kiváló Műszaki Tartalom:
Hőszigetelés: A falakban 20 cm, a födémen 30 cm vastag szigetelés, valamint a talajon fekvő padló is kiválóan szigetelt.
Nyílászárók: Korszerű, alacsony hőátbocsátási tényezőjű (U_ii=0,80 W/m²K, U_nv=1,00 W/m²K) ablakok és ajtók, redőnnyel és függönnyel ellátva a nyári hővédelem érdekében.
Kivételes lehetőség! Eladó egy modern, újonnan épülő családi ház 550 nm telekkel Mosonszolnokon, amely a legszigorúbb energetikai követelményeknek is megfelel, kiemelkedő A+ besorolással!
A főbb adatok, amelyek garantálják az alacsony rezsit:
Helyszín: Mosonszolnok
Alapterület: 103,80 m² hasznos alapterület
Elosztása: 4 szoba, nappali-konyha, 2 fürdőszoba, gardrób, háztartási helyiség, nagy terasz (udvari részen két kocsibeálló)
Energetikai minőség: A+
Környezettudatosság: Rendkívül alacsony CO₂ kibocsátás: A+ besorolás.
Fűtési energiaigény: Éves nettó igény mindössze 42,10 kWh/m²év. Az épület fűtését a háztartási helyiségben elhelyezett levegő-víz rendszerű hőszivattyú fogja biztosítani
Kiváló Műszaki Tartalom:
Hőszigetelés: A falakban 20 cm, a födémen 30 cm vastag szigetelés, valamint a talajon fekvő padló is kiválóan szigetelt.
Nyílászárók: Korszerű, alacsony hőátbocsátási tényezőjű (U_ii=0,80 W/m²K, U_nv=1,00 W/m²K) ablakok és ajtók, redőnnyel és függönnyel ellátva a nyári hővédelem érdekében.