Eladó Ház- házrész
Hirdetéskód: 9205492
Mov-Ing Home
Ez a hirdetés megfelelhet a FIX 3%-os programnak.
Tudj meg többet a részletekről itt.
119.00 m2
ALAPTERÜLET4
SZOBASZÁMnincs megadva
ÉPÍTÉSnincs megadva
FŰTÉS- CSOK igénybe vehető nem
- Tetőtér beépíthető nem
- Építés éve 2025
- Klíma nem
- Szigetelt nem
A+++
A++
A+
A
B
C
D
E
F
G
H
I
Az ingatlan leírása
Mosonmagyaróvár csendes, rendezett részén, kínálunk eladásra egy kiváló elrendezésű, modern, épülő családi házat, saját kerttel és terasszal.
Főbb paraméterek:
Telekterület: 400 m²
Épület típusa: új építésű, földszint + tetőtér
Lakóterület: kb. 119 m² (földszint + tetőtér)
Szobák száma: 4 szoba
Fűtés: levegő-víz hőszivattyú
Parkolás: saját beálló és garázs Hörmann garázskapuval
Energiahatékony kivitelezés: 15 cm-es ásványgyapot és kiegészítő XPS homlokzati hőszigetelés, háromrétegű nyílászárók redőnnyel
Elosztás
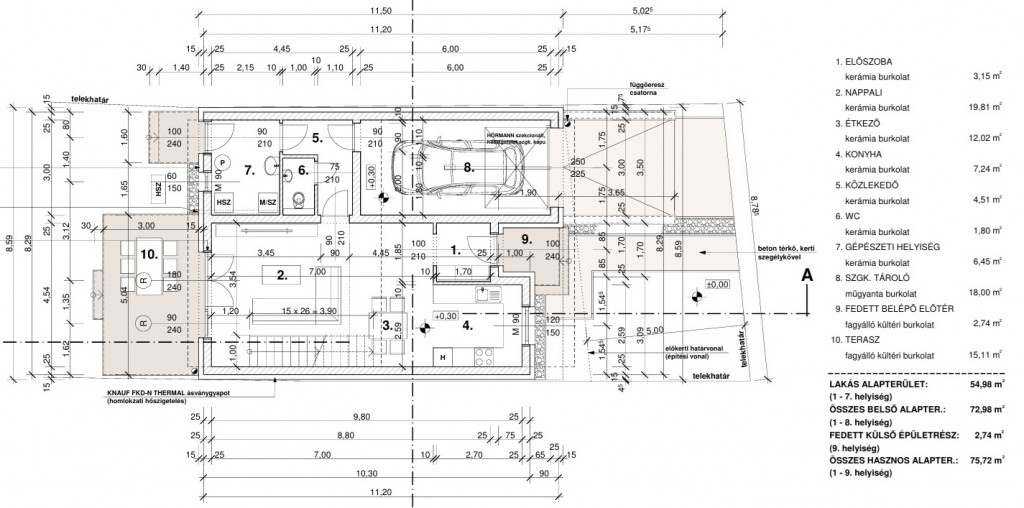
Földszint:
Előszoba
Tágas nappali és étkező
Konyha
Közlekedő
WC
Gépészeti helyiség
Fedett belépő
Terasz
Garázs (zárt, belső kapcsolattal)
Tetőtér:
Közlekedő
3 hálószoba
Fürdőszoba
Részben ferde tetősíkkal, kellemes belmagasságú szobák
Műszaki tartalom és extrák
Tető: BRAMAC Tectura Novo (antracit), kiváló minőségű tetőcserép
Nyílászárók: antracit PVC szerkezet, hőszigetelt üveggel
Hőszivattyú: energiatakarékos levegő–víz rendszer
Falazat: Porotherm 25 N+F, vastag hőszigeteléssel
Lábazat és vakolat: BAUMIT rendszer (GranoporTop + SilikonTop)
Burkolatok: minőségi kerámia, laminált padló, kültéren fagyálló lapburkolat
Redőnyök: rejtett redőnyszekrényes megoldással
Udvar: térkövezett bejáró, zöldfelületekkel
Elhelyezkedés
Kiváló infrastruktúra: bolt, iskola, óvoda, buszmegálló pár perc sétára
Csendes mellékutca, rendezett környezet
Könnyű megközelíthetőség, ingyenes parkolás az utcán is
Hivatkozási szám: 3296
Főbb paraméterek:
Telekterület: 400 m²
Épület típusa: új építésű, földszint + tetőtér
Lakóterület: kb. 119 m² (földszint + tetőtér)
Szobák száma: 4 szoba
Fűtés: levegő-víz hőszivattyú
Parkolás: saját beálló és garázs Hörmann garázskapuval
Energiahatékony kivitelezés: 15 cm-es ásványgyapot és kiegészítő XPS homlokzati hőszigetelés, háromrétegű nyílászárók redőnnyel
Elosztás
Földszint:
Előszoba
Tágas nappali és étkező
Konyha
Közlekedő
WC
Gépészeti helyiség
Fedett belépő
Terasz
Garázs (zárt, belső kapcsolattal)
Tetőtér:
Közlekedő
3 hálószoba
Fürdőszoba
Részben ferde tetősíkkal, kellemes belmagasságú szobák
Műszaki tartalom és extrák
Tető: BRAMAC Tectura Novo (antracit), kiváló minőségű tetőcserép
Nyílászárók: antracit PVC szerkezet, hőszigetelt üveggel
Hőszivattyú: energiatakarékos levegő–víz rendszer
Falazat: Porotherm 25 N+F, vastag hőszigeteléssel
Lábazat és vakolat: BAUMIT rendszer (GranoporTop + SilikonTop)
Burkolatok: minőségi kerámia, laminált padló, kültéren fagyálló lapburkolat
Redőnyök: rejtett redőnyszekrényes megoldással
Udvar: térkövezett bejáró, zöldfelületekkel
Elhelyezkedés
Kiváló infrastruktúra: bolt, iskola, óvoda, buszmegálló pár perc sétára
Csendes mellékutca, rendezett környezet
Könnyű megközelíthetőség, ingyenes parkolás az utcán is
Hivatkozási szám: 3296