Eladó Ház- házrész
Hirdetéskód: 9230854
Mov-Ing Home
72 m2
ALAPTERÜLET2
SZOBASZÁMnincs megadva
ÉPÍTÉSnincs megadva
FŰTÉS- CSOK igénybe vehető nem
- Tetőtér beépíthető nem
- Építés éve 1964
- Klíma nem
- Szigetelt nem
A+++
A++
A+
A
B
C
D
E
F
G
H
I
Az ingatlan leírása
Ha olyan otthont keresel, amit saját ízlésedre formálhatsz, ahol a nagy telek miatt szabadon tervezhetsz kertet, teraszt, garázst vagy akár bővítést, akkor ez a ház remek lehetőség.
A 72 m²-es családi ház egy 1000 m²-es, gondozható, széles utcafrontú telken helyezkedik el, a város egyik csendes, jól lakható részén. A ház 1964-ben épült, stabil alapokkal és szép arányú helyiségekkel — a felújítás pedig teret ad annak, hogy pontosan olyan otthont alakíts ki, amilyenre vágysz.
Amit már nem kell kicserélned:
Műanyag, hőszigetelt nyílászárók
Kiépített gázkonvektoros fűtés
Több helyiségben cserépkályha is használható
10 m²-es fedett terasz, ami akár egész éves pihenőrésszé tehető
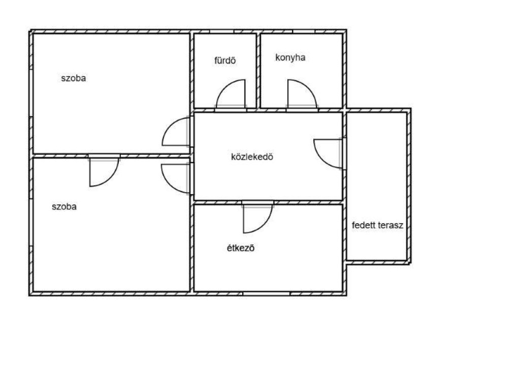
A jelenlegi elosztás (alaprajz alapján):
2 szoba
étkező
közlekedő
konyha
fürdő
fedett terasz
A helyiségek jól rendezhetők, akár egy könnyű átalakítással modern, amerikai konyhás nappali is kialakítható. A nagy telek pedig tovább növeli az értéket: építkezés, melléképület, garázs, kerti tó, veteményes, kutyafuttató — bármi elfér rajta.
Miért jó választás ez az ingatlan a leendő tulajdonosnak?
Felújításnál nincs kompromisszum: teljes mértékben a saját ízlésed szerint alakíthatod.
Nagy és sík telek: ritka ekkora, jól használható telekméret Mosonmagyaróváron.
Energiabarát lehetőségek: szigetelés, új fűtésrendszer, hőszivattyú – mind megvalósítható.
Csendes, nyugodt lakókörnyezet: mégis pár percre a bevásárlási lehetőségektől és a városközponttól.
Kiváló választás befektetésnek is: felújítva magas bérleti értékkel rendelkezik.
Kinek ajánlom?
akik szeretnének egy jó alapállapotú házat saját elképzelés szerint megújítani,
akik fontosnak tartják a nagy telek adta lehetőségeket,
vagy akik befektetési célra keresnek felújítható ingatlant.
A 72 m²-es családi ház egy 1000 m²-es, gondozható, széles utcafrontú telken helyezkedik el, a város egyik csendes, jól lakható részén. A ház 1964-ben épült, stabil alapokkal és szép arányú helyiségekkel — a felújítás pedig teret ad annak, hogy pontosan olyan otthont alakíts ki, amilyenre vágysz.
Amit már nem kell kicserélned:
Műanyag, hőszigetelt nyílászárók
Kiépített gázkonvektoros fűtés
Több helyiségben cserépkályha is használható
10 m²-es fedett terasz, ami akár egész éves pihenőrésszé tehető
A jelenlegi elosztás (alaprajz alapján):
2 szoba
étkező
közlekedő
konyha
fürdő
fedett terasz
A helyiségek jól rendezhetők, akár egy könnyű átalakítással modern, amerikai konyhás nappali is kialakítható. A nagy telek pedig tovább növeli az értéket: építkezés, melléképület, garázs, kerti tó, veteményes, kutyafuttató — bármi elfér rajta.
Miért jó választás ez az ingatlan a leendő tulajdonosnak?
Felújításnál nincs kompromisszum: teljes mértékben a saját ízlésed szerint alakíthatod.
Nagy és sík telek: ritka ekkora, jól használható telekméret Mosonmagyaróváron.
Energiabarát lehetőségek: szigetelés, új fűtésrendszer, hőszivattyú – mind megvalósítható.
Csendes, nyugodt lakókörnyezet: mégis pár percre a bevásárlási lehetőségektől és a városközponttól.
Kiváló választás befektetésnek is: felújítva magas bérleti értékkel rendelkezik.
Kinek ajánlom?
akik szeretnének egy jó alapállapotú házat saját elképzelés szerint megújítani,
akik fontosnak tartják a nagy telek adta lehetőségeket,
vagy akik befektetési célra keresnek felújítható ingatlant.