Eladó Ház- házrész
Hirdetéskód: 9243163
Mov-Ing Home
Ez a hirdetés megfelelhet a FIX 3%-os programnak.
Tudj meg többet a részletekről itt.
90.00 m2
ALAPTERÜLET2
SZOBASZÁMnincs megadva
ÉPÍTÉSnincs megadva
FŰTÉS- CSOK igénybe vehető nem
- Tetőtér beépíthető nem
- Építés éve 1965
- Klíma nem
- Szigetelt nem
A+++
A++
A+
A
B
C
D
E
F
G
H
I
Az ingatlan leírása
Álomtelek, Központi Életérzés Mosonmagyaróváron!
Képzelje el a lehetőségeket! Ez az 1965-ös téglaépítésű, 90 nm-es felújítandó családi ház a városközpontban várja. 945 nm-es, két utcáról is megközelíthető, hatalmas telke igazi kincs! Pár lépesre a bevásárlási lehetőség és egy vízparti sétány is.
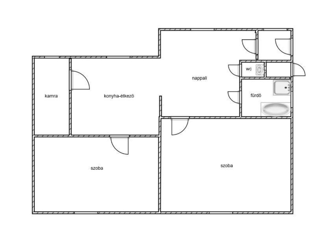
A házban konyha-étkező, kamra, nappali és 2 tágas szoba biztosítja a kényelmet (lásd alaprajz). Az egyik szobából könnyedén kialakíthat barátságos gyerekszobát vagy otthoni irodát.
Jól karbantartott gázkazánnal, műanyag ablakokkal a csendes éjszakákért. Ráadásul: nagy melléképületek, borospince, és központi elhelyezkedés! Itt a hely, ahol a nagy megosztató telek értékével és a központi fekvés kényelmével álmodhatja meg a jövőjét.
Ne maradjon le, nézze meg még ma!
Képzelje el a lehetőségeket! Ez az 1965-ös téglaépítésű, 90 nm-es felújítandó családi ház a városközpontban várja. 945 nm-es, két utcáról is megközelíthető, hatalmas telke igazi kincs! Pár lépesre a bevásárlási lehetőség és egy vízparti sétány is.
A házban konyha-étkező, kamra, nappali és 2 tágas szoba biztosítja a kényelmet (lásd alaprajz). Az egyik szobából könnyedén kialakíthat barátságos gyerekszobát vagy otthoni irodát.
Jól karbantartott gázkazánnal, műanyag ablakokkal a csendes éjszakákért. Ráadásul: nagy melléképületek, borospince, és központi elhelyezkedés! Itt a hely, ahol a nagy megosztató telek értékével és a központi fekvés kényelmével álmodhatja meg a jövőjét.
Ne maradjon le, nézze meg még ma!