Eladó Ház- házrész
Hirdetéskód: 9184267
Mov-Ing Home
Felújításhoz személyi kölcsönt keres? Kalkuláljon itt! →
Ez a hirdetés megfelelhet a FIX 3%-os programnak.
Tudj meg többet a részletekről itt.
110.00 m2
ALAPTERÜLET5
SZOBASZÁMnincs megadva
ÉPÍTÉSGáz (cirkó)
FŰTÉS- CSOK igénybe vehető nem
- Tetőtér beépíthető nem
- Építés éve 2005
- Fűtés Gáz (cirkó)
- Klíma nem
- Szigetelt nem
A+++
A++
A+
A
B
C
D
E
F
G
H
I
Az ingatlan leírása
Különleges lehetőség Mosonmagyaróváron – családi ház a Halászi út nyugodt lakóövezetében
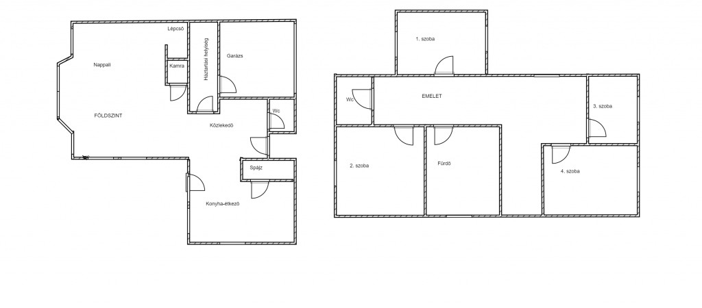
Mosonmagyaróvár egyik legcsendesebb és legkülönlegesebb részén, a Halászi úti lakóparkban eladó egy különleges, 150 m²-es, kétszintes családi ház, amely egy 720 m²-es telken helyezkedik el. Az ingatlan most arra vár, hogy új tulajdonosa saját elképzelése szerint alakítsa át álmai otthonává.
Az alsó szint tágas nappali-étkezője a ház szíve, ahol a hangulatos kandalló melegséget áraszt, miközben a család és a barátok együtt élvezhetik a teret. Innen nyílik a konyha és a spájz, valamint a 25 m²-es terasz, amely közvetlenül kapcsolódik a kerthez. A házból közvetlenül elérhető a garázs, és a külön WC is biztosítja a mindennapi kényelmet.
A felső szinten a nyugalom birodalma tárul a szemünk elé: négy hálószoba, amelyek közül kettő erkélykapcsolattal rendelkezik, valamint egy tágas fürdőszoba és külön WC szolgálja a család kényelmét. A felújítandó állapot lehetőséget ad arra, hogy az új tulajdonos a saját ízlésére formálja a tereket, miközben a masszív, 2005-ben épült téglaépítés biztosítja az otthon stabilitását.
A Halászi úti lakópark különlegessége a nyugodt, családbarát környezet, ahol a privát szféra garantált, ugyanakkor minden városi kényelem könnyen elérhető. A 720 m²-es telek pedig tökéletes teret biztosít a kertészkedéshez, pihenéshez, vagy akár egy medence kialakításához
Mosonmagyaróvár egyik legcsendesebb és legkülönlegesebb részén, a Halászi úti lakóparkban eladó egy különleges, 150 m²-es, kétszintes családi ház, amely egy 720 m²-es telken helyezkedik el. Az ingatlan most arra vár, hogy új tulajdonosa saját elképzelése szerint alakítsa át álmai otthonává.
Az alsó szint tágas nappali-étkezője a ház szíve, ahol a hangulatos kandalló melegséget áraszt, miközben a család és a barátok együtt élvezhetik a teret. Innen nyílik a konyha és a spájz, valamint a 25 m²-es terasz, amely közvetlenül kapcsolódik a kerthez. A házból közvetlenül elérhető a garázs, és a külön WC is biztosítja a mindennapi kényelmet.
A felső szinten a nyugalom birodalma tárul a szemünk elé: négy hálószoba, amelyek közül kettő erkélykapcsolattal rendelkezik, valamint egy tágas fürdőszoba és külön WC szolgálja a család kényelmét. A felújítandó állapot lehetőséget ad arra, hogy az új tulajdonos a saját ízlésére formálja a tereket, miközben a masszív, 2005-ben épült téglaépítés biztosítja az otthon stabilitását.
A Halászi úti lakópark különlegessége a nyugodt, családbarát környezet, ahol a privát szféra garantált, ugyanakkor minden városi kényelem könnyen elérhető. A 720 m²-es telek pedig tökéletes teret biztosít a kertészkedéshez, pihenéshez, vagy akár egy medence kialakításához