Eladó Ház- házrész
Hirdetéskód: 9191688
Openhouse Monor
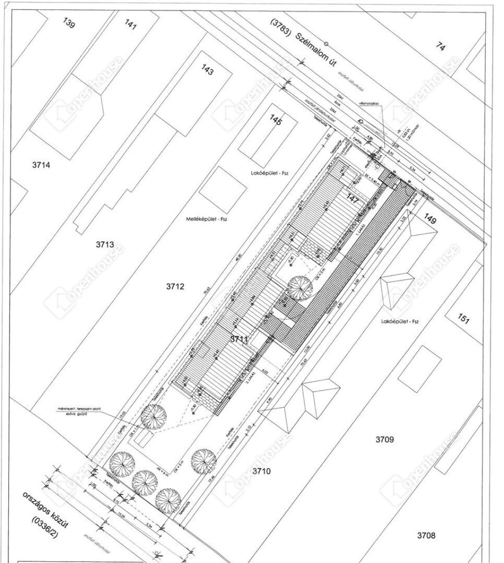
650 m2
ALAPTERÜLET4
SZOBASZÁMnincs megadva
ÉPÍTÉSnincs megadva
FŰTÉS- CSOK igénybe vehető nem
- Tetőtér beépíthető nem
- Építés éve 2025
- Klíma nem
- Szigetelt nem
A+++
A++
A+
A
B
C
D
E
F
G
H
I
Az ingatlan leírása
Az Openhouse Monor Ingatlaniroda kínálatában eladó a #175843 hivatkozási számú monori családi ház.
Új építésű, minőségi otthonok várják új tulajdonosaikat!
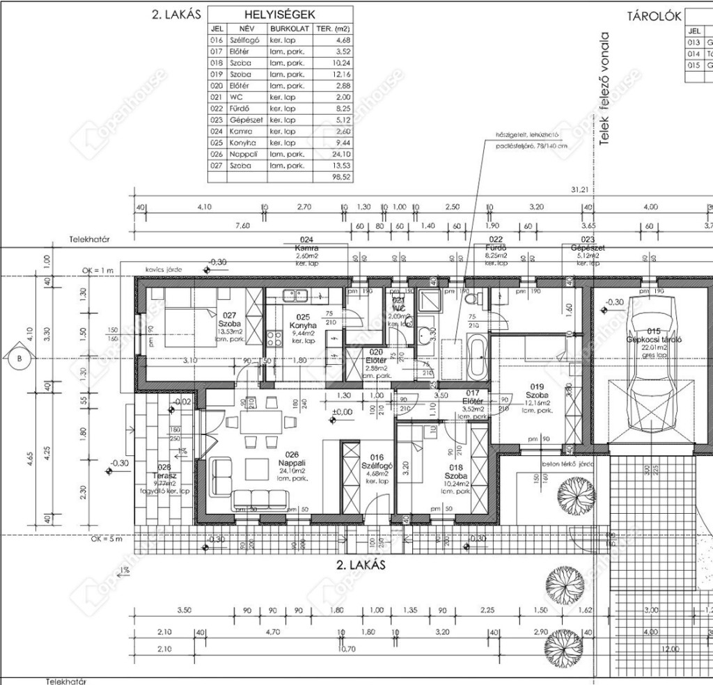
Két különálló, egyszintes családi ház eladó, 650 m²-es, illetve 450 m²-es telkeken, nettó 105,11 m² és 98,52 m² lakóterülettel. A tágas amerikai konyhás nappali mellett három kényelmes hálószoba biztosítja a család minden tagjának a privát teret.
A nappaliból közvetlen kijárat nyílik a hangulatos teraszra, amely ideális helyszíne lehet egy nyugodt reggelinek vagy egy közös esti beszélgetésnek a szabad levegőn.
A házak kivitelezése során a tartósságra, energiatakarékosságra és a modern életvitel igényeire is kiemelt figyelmet fordítottak. A gondosan megtervezett műszaki tartalom magas szintű komfortot biztosít a mindennapokban.
Főbb jellemzők:
30 cm-es POROTHERM tégla falazat
10 cm-es grafit EPS homlokzati hőszigetelés
20 cm kőzetgyapot födémszigetelés
3 rétegű üvegezésű műanyag nyílászárók, elektromos redőnyökkel
Hőszivattyús fűtés padlófűtéssel
Antracit színű Bramac tetőcserép
Riasztó és H-tarifa előkészítés
A burkolatok és belső ajtók egyénileg választhatók, a vállalkozó meghatározott értékhatárig állja az árukat, beleértve a segédanyagokat is.
Ár és átadás:
Kulcsrakész ár: 95 millió Ft és 89,9 millió Ft
Várható átadás: 2025. december
Kiváló infrastruktúra:
Iskola, óvoda, bölcsőde, valamint Lidl, Tesco, Aldi és Spar üzletek 5 percen belül elérhetők. A közösségi közlekedés is kiváló: a vasútállomás és a buszmegálló gyalog 10 percre található,
Ha felkeltette érdeklődését ez az eladó monori családi ház, vagy bármely más családi ház és bővebb információt szeretne, keressen bizalommal.Hivatkozási szám: #175843
Az Openhouse Monor Ingatlaniroda tagjaként várom Önt az országos hálózatunk teljes kínálatával.
A családi ház vásárláshoz hitelt igényelne? Ingyenes hitelközvetítéssel segít Önnek bankfüggetlen hitelszakértőnk.
További szolgáltatásainkkal (pl. értékbecslés, energetikai tanúsítvány, jogi háttér) is segítjük Önt a vásárlásban.
Az otthon érték. Az ingatlan üzlet.
Új építésű, minőségi otthonok várják új tulajdonosaikat!
Két különálló, egyszintes családi ház eladó, 650 m²-es, illetve 450 m²-es telkeken, nettó 105,11 m² és 98,52 m² lakóterülettel. A tágas amerikai konyhás nappali mellett három kényelmes hálószoba biztosítja a család minden tagjának a privát teret.
A nappaliból közvetlen kijárat nyílik a hangulatos teraszra, amely ideális helyszíne lehet egy nyugodt reggelinek vagy egy közös esti beszélgetésnek a szabad levegőn.
A házak kivitelezése során a tartósságra, energiatakarékosságra és a modern életvitel igényeire is kiemelt figyelmet fordítottak. A gondosan megtervezett műszaki tartalom magas szintű komfortot biztosít a mindennapokban.
Főbb jellemzők:
30 cm-es POROTHERM tégla falazat
10 cm-es grafit EPS homlokzati hőszigetelés
20 cm kőzetgyapot födémszigetelés
3 rétegű üvegezésű műanyag nyílászárók, elektromos redőnyökkel
Hőszivattyús fűtés padlófűtéssel
Antracit színű Bramac tetőcserép
Riasztó és H-tarifa előkészítés
A burkolatok és belső ajtók egyénileg választhatók, a vállalkozó meghatározott értékhatárig állja az árukat, beleértve a segédanyagokat is.
Ár és átadás:
Kulcsrakész ár: 95 millió Ft és 89,9 millió Ft
Várható átadás: 2025. december
Kiváló infrastruktúra:
Iskola, óvoda, bölcsőde, valamint Lidl, Tesco, Aldi és Spar üzletek 5 percen belül elérhetők. A közösségi közlekedés is kiváló: a vasútállomás és a buszmegálló gyalog 10 percre található,
Ha felkeltette érdeklődését ez az eladó monori családi ház, vagy bármely más családi ház és bővebb információt szeretne, keressen bizalommal.Hivatkozási szám: #175843
Az Openhouse Monor Ingatlaniroda tagjaként várom Önt az országos hálózatunk teljes kínálatával.
A családi ház vásárláshoz hitelt igényelne? Ingyenes hitelközvetítéssel segít Önnek bankfüggetlen hitelszakértőnk.
További szolgáltatásainkkal (pl. értékbecslés, energetikai tanúsítvány, jogi háttér) is segítjük Önt a vásárlásban.
Az otthon érték. Az ingatlan üzlet.