Eladó Ház- házrész
Hirdetéskód: 9277189
Egylet.hu
Felújításhoz személyi kölcsönt keres? Kalkuláljon itt! →
Ez a hirdetés megfelelhet a FIX 3%-os programnak.
Tudj meg többet a részletekről itt.
86.00 m2
ALAPTERÜLET4
SZOBASZÁMnincs megadva
ÉPÍTÉSnincs megadva
FŰTÉS- Építés éve 2026
A+++
A++
A+
A
B
C
D
E
F
G
H
I
Az ingatlan leírása
Megvételre kínálunk Monoron egy újépítésű, HÓSZIVATTYÚS, KLÍMÁS, garázsos, teraszos, 86 nm-es, 4 szobás ikerházat. Minőségi alapanyagokból, igényes kivitelezés jellemzi a projektet, ahol a biztonság és a kényelem mellett az energiatakarékosság volt a fő szempont. Az ingatlan fűtéséről, egy modern, energia takarékos, innovatív levegő-víz hőszivattyú, míg a használati melegvíz ellátásáról egy hőszivattyús bojler gondoskodik H tarifás üzemeltetéssel.
Ennek köszönhetően a rezsi költségek minimalizálódnak.
Az ingatlan hűtéséről egy klíma berendezés fog gondoskodni.
Ennél a beruházásnál most lehetősége van kompromisszumok nélkül egy olyan lakásba költözni, ahol Ön kiválaszthatja a hideg és meleg burkolatokat, szanitereket, valamint az egyéb kiegészítőket a családja legnagyobb megelégedésére, ez által személyre szabva álmai otthonát.
A kulcsra kész ár tartalmazza a redőnyöket, három rétegű nyílászárókat, riasztó előkészítést, kaputelefon és motoros kapu kiépítést. A gépjárművekkel az ingatlanhoz tartozó garázsban vagy a térkövezett beállón lehet biztonságosan parkolni.
Az ingatlanhoz megközelítőleg egy 350 nm-es privát telek tartozik.
Igénybe vehető lehetséges kedvezmények:
CSOK
5% Áfa visszatérítés
Babaváró hitel
Illeték kedvezmény vagy mentesség.
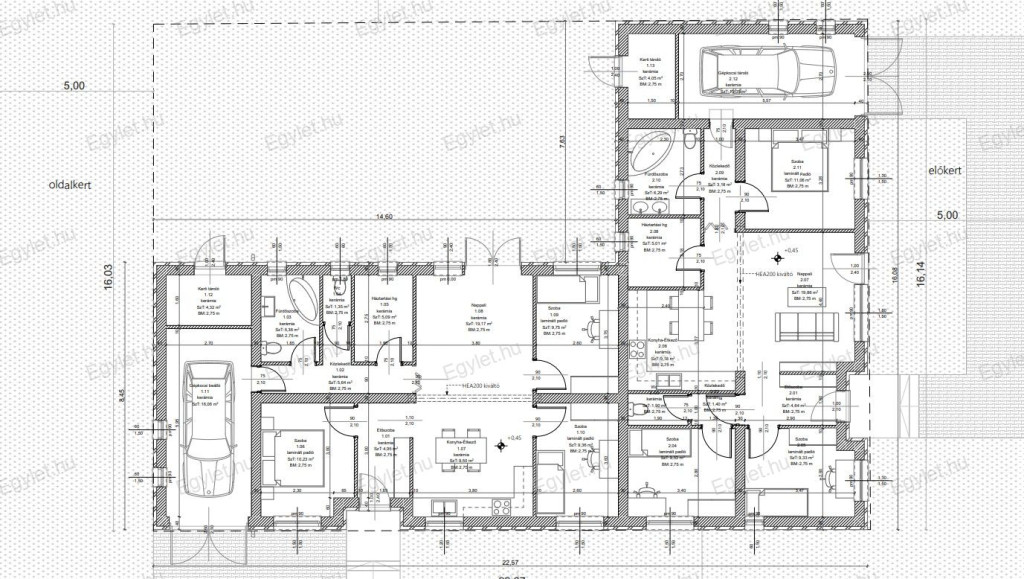
Helyiség lista:
- Előszoba
- Közlekedő
- Háztartási helyiség
- WC, mosdó
- Három hálószoba
- Fürdőszoba
- Amerikai konyha,
- Étkező
- Nappali
- Tároló
- Terasz
- Garázs
A hirdetés referencia fotókat is tartalmaz.
Az ingatlan biztonságos, nyugodt, csendes, kertes házas övezetében, Monor egyik legszebb részén található. A környék fejlett infrastruktúrájának köszönhetően bővelkedik a szociális intézményekben, bölcsőde, óvoda, általános iskola, orvosi intézmények, bevásárlási lehetőségek, találhatóak a közelben.
Közlekedése kiváló, busszal a centrum vagy vonattal a Nyugati pu. rövid idő alatt megközelíthető. Az M4-es autópálya öt perc alatt elérhető.
Hitel, CSOK igénylésben díjmentes ügyintézéssel állunk rendelkezésére! Nálunk kiválaszthatja az Ön számára legkedvezőbb ajánlatot.
Várom megtisztelő érdeklődésüket.
Ennek köszönhetően a rezsi költségek minimalizálódnak.
Az ingatlan hűtéséről egy klíma berendezés fog gondoskodni.
Ennél a beruházásnál most lehetősége van kompromisszumok nélkül egy olyan lakásba költözni, ahol Ön kiválaszthatja a hideg és meleg burkolatokat, szanitereket, valamint az egyéb kiegészítőket a családja legnagyobb megelégedésére, ez által személyre szabva álmai otthonát.
A kulcsra kész ár tartalmazza a redőnyöket, három rétegű nyílászárókat, riasztó előkészítést, kaputelefon és motoros kapu kiépítést. A gépjárművekkel az ingatlanhoz tartozó garázsban vagy a térkövezett beállón lehet biztonságosan parkolni.
Az ingatlanhoz megközelítőleg egy 350 nm-es privát telek tartozik.
Igénybe vehető lehetséges kedvezmények:
CSOK
5% Áfa visszatérítés
Babaváró hitel
Illeték kedvezmény vagy mentesség.
Helyiség lista:
- Előszoba
- Közlekedő
- Háztartási helyiség
- WC, mosdó
- Három hálószoba
- Fürdőszoba
- Amerikai konyha,
- Étkező
- Nappali
- Tároló
- Terasz
- Garázs
A hirdetés referencia fotókat is tartalmaz.
Az ingatlan biztonságos, nyugodt, csendes, kertes házas övezetében, Monor egyik legszebb részén található. A környék fejlett infrastruktúrájának köszönhetően bővelkedik a szociális intézményekben, bölcsőde, óvoda, általános iskola, orvosi intézmények, bevásárlási lehetőségek, találhatóak a közelben.
Közlekedése kiváló, busszal a centrum vagy vonattal a Nyugati pu. rövid idő alatt megközelíthető. Az M4-es autópálya öt perc alatt elérhető.
Hitel, CSOK igénylésben díjmentes ügyintézéssel állunk rendelkezésére! Nálunk kiválaszthatja az Ön számára legkedvezőbb ajánlatot.
Várom megtisztelő érdeklődésüket.