Eladó Ház- házrész
Hirdetéskód: 9313368
Duna House - Új-Lak Bázis Kft.
Felújításhoz személyi kölcsönt keres? Kalkuláljon itt! →80.00 m2
ALAPTERÜLET4
SZOBASZÁMnincs megadva
ÉPÍTÉSEgyéb fűtés
FŰTÉS- CSOK igénybe vehető nem
- Tetőtér beépíthető nem
- Építés éve 2026
- Fűtés Egyéb fűtés
- Klíma nem
- Szigetelt nem
A+++
A++
A+
A
B
C
D
E
F
G
H
I
Az ingatlan leírása
Ne maradj le Monor egyik leggyorsabban elkelő újépítésű projektjéről!
Vásárolj Monor egyik legjobb, bizonyítottan megbízható kivitelezőjétől!
Magas műszaki tartalom, igényes kivitelezés, referenciákkal alátámasztva!
Projekt főbb adatai:
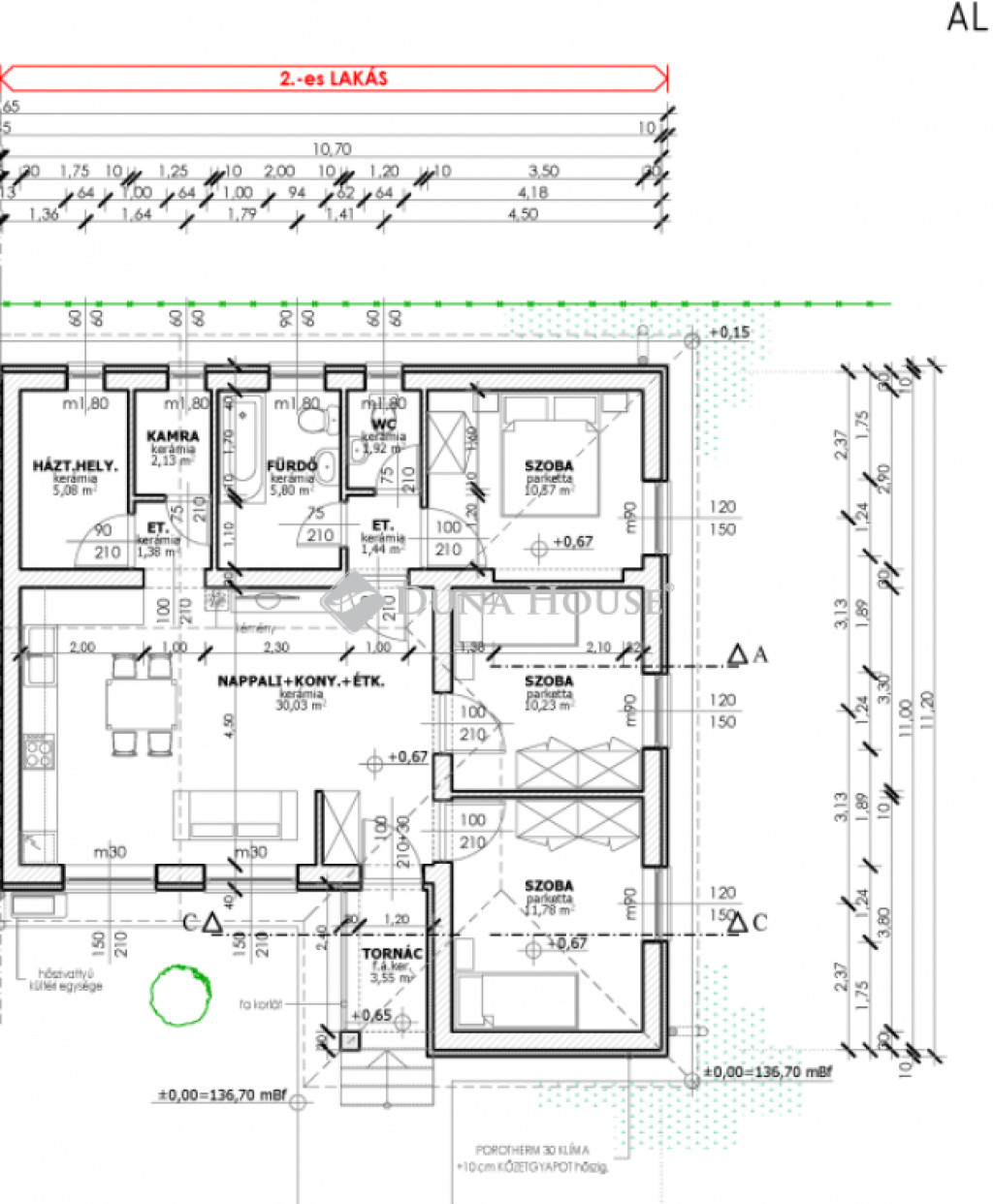
- 80,35 m² hasznos alapterület
- 3 hálószoba
- Amerikai konyhás nappali, fürdő + WC, külön WC, kamra, háztartási helyiség, tornác
- Ingatlanok között hangszigetelő fal a maximális nyugalomért
Műszaki tartalom:
- Kívül fokozottan hőszigetelt tok-, és szárnyszerkezetű, 3 rtg. ű üvegezésű fa, vagy műanyag nyílászárók
- Talajnedvesség ellen: 1 rtg. GV-4 bitumenes vastaglemez
- Hőszigetelés: a külső falakon 10 cm vastag kőzetgyapot hőszigetelés készül
- A hideg burkolatok ragasztott mázas kerámiából, vagy gresslapból készülnek, flexibilis ragasztóval és fugával. A meleg burkolatok laminált parkettából készülnek.(falaknál dilatációs hézaggal).
- A vizes helyiségekben a falakon csempeburkolat készül.
- A térburkolatok beton térburkoló elemekből készülnek.
- Burkolatok 5000ft/m2-ig választhatóak, belső ajtók és szaniterek szintén választhatóak.
Infrastruktúra minden 2 km-en belül:
- Bevásárlási lehetőségek
- Vasútállomás
- Buszpályaudvar
- Általános iskola
- Gimnázium
- Budapest gyorsan elérhető a 4-es főúton vagy az M4-en
- Kiváló vasúti kapcsolat a CeglédSzolnok vonalon
Várható átadás
- 2026 év vége
Megtekintésért keress bizalommal!
Vásárolj Monor egyik legjobb, bizonyítottan megbízható kivitelezőjétől!
Magas műszaki tartalom, igényes kivitelezés, referenciákkal alátámasztva!
Projekt főbb adatai:
- 80,35 m² hasznos alapterület
- 3 hálószoba
- Amerikai konyhás nappali, fürdő + WC, külön WC, kamra, háztartási helyiség, tornác
- Ingatlanok között hangszigetelő fal a maximális nyugalomért
Műszaki tartalom:
- Kívül fokozottan hőszigetelt tok-, és szárnyszerkezetű, 3 rtg. ű üvegezésű fa, vagy műanyag nyílászárók
- Talajnedvesség ellen: 1 rtg. GV-4 bitumenes vastaglemez
- Hőszigetelés: a külső falakon 10 cm vastag kőzetgyapot hőszigetelés készül
- A hideg burkolatok ragasztott mázas kerámiából, vagy gresslapból készülnek, flexibilis ragasztóval és fugával. A meleg burkolatok laminált parkettából készülnek.(falaknál dilatációs hézaggal).
- A vizes helyiségekben a falakon csempeburkolat készül.
- A térburkolatok beton térburkoló elemekből készülnek.
- Burkolatok 5000ft/m2-ig választhatóak, belső ajtók és szaniterek szintén választhatóak.
Infrastruktúra minden 2 km-en belül:
- Bevásárlási lehetőségek
- Vasútállomás
- Buszpályaudvar
- Általános iskola
- Gimnázium
- Budapest gyorsan elérhető a 4-es főúton vagy az M4-en
- Kiváló vasúti kapcsolat a CeglédSzolnok vonalon
Várható átadás
- 2026 év vége
Megtekintésért keress bizalommal!