Eladó Ház- házrész
Hirdetéskód: 9307601

Duna House - Új-Lak Bázis Kft.

Felújításhoz személyi kölcsönt keres? Kalkuláljon itt! →
FIX 3% Program

Ez a hirdetés megfelelhet a FIX 3%-os programnak.
Tudj meg többet a részletekről itt.

76.00 m2
ALAPTERÜLET
4
SZOBASZÁM
nincs megadva
ÉPÍTÉS
Egyéb fűtés
FŰTÉS
  • CSOK igénybe vehető nem
  • Tetőtér beépíthető nem
  • Építés éve 2026
  • Fűtés Egyéb fűtés
  • Klíma nem
  • Szigetelt nem
Energetikai besorolás: Nincs meghatározva
A+++
A++
A+
A
B
C
D
E
F
G
H
I

Az MBH Bank személyi kölcsön ajánlata

Fizetett hirdetés
1 millió Ft
6 évre
20 585 Ft/hó
THM: 14.5%
Részletek →
2 millió Ft
6 évre
41 169 Ft/hó
THM: 14.5%
Részletek →
3 millió Ft
6 évre
61 754 Ft/hó
THM: 14.5%
Részletek →

A tájékoztatás nem teljes körű és nem minősül ajánlattételnek.

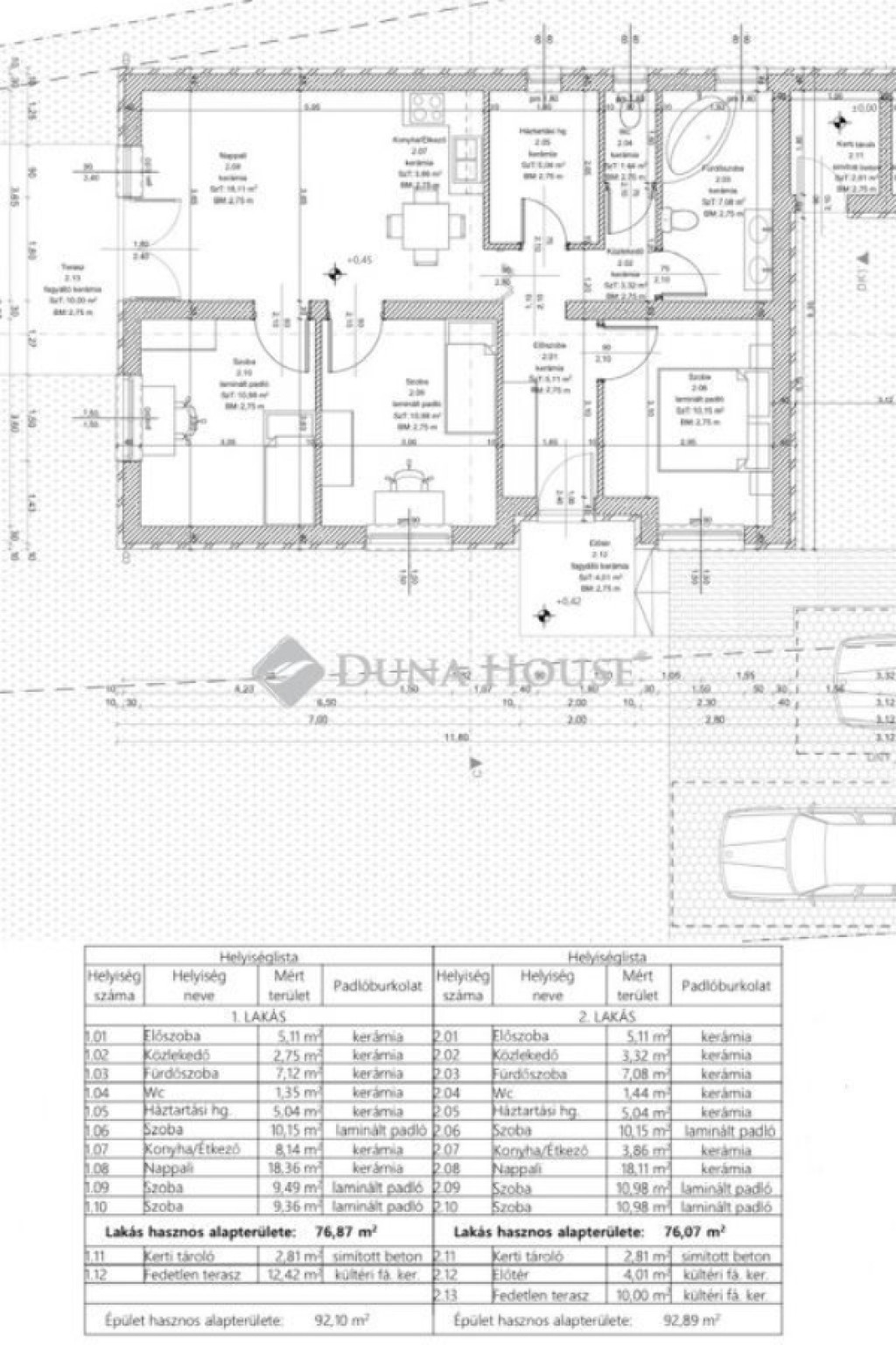
Az ingatlan leírása

Monoron eladó, újépítésű, 3 szoba + nappalis, tároló kapcsolatos ikerházfél, hőszivattyús fűtéssel, kb 300 nm-es kerttel!Belső nettó hasznos élhető tér 76 nm!Várható átadás : 2026.10 hóÖnálló helyrajzi számmal fog rendelkezni, nem osztatlan közös tulajdon, társasház alapító lesz.10 % önerővel szerződhető!Helyiségeit tekintve nagyon jó elosztással rendelkezik, alábbiakban sorolom fel négyzetméterek megjelölésével:- 3 önálló bejáratú szoba (10.15 nm, 10.98 nm, 10.98 nm)- teraszkapcsolatos nappali + konyha és étkező (21.97 nm)- előszoba (5.11 nm)- közlekedő (3.32 nm)- fürdőszoba (7.08 nm)- wc (1.44 nm)- háztartási helyiség (5 nm)- kerti tároló, itt ér össze a két épület (2.81 nm)- nyitott terasz (10 nm)Műszaki leírás:- Fischer hőszivattyús fűtés, padlófűtéssel- burkolat meleg 8000 Ft / nm, hideg: 10 000 ft / nm- 10 cm hőszigetelés grafitos- 30 cm üveggyapot tető hőszigetelés- vakolás: belső: alapvakolat + simítóvakolat- lábazaton 8 cm XPS hőszigetelés- nyílászárók: típus műanyag szerkezetek, fehér színben, 3 rtg.hőszig.üveggel- festés: belsőben páraáteresztő falfestékkel, színezve igény szerint- elektromos nagykapu- utcafronton épített, igényes kerítés- H tarifaAz ár kulcsrakészen értendő!A házakat önerőből építi! Az építő cég anyagilag biztos talpakon áll!Monoron megtalálható:Pékség, Cukrászda, Gyógyszertár, Posta, Vendéglő, Könyvtár, Zöldséges, Rossmann, Dm, Élelmiszer boltok, Okmányiroda, Bankok(Takarék,Otp, Budapest Bank), Piac, Bölcsöde, Óvoda, Iskola, Gimnázium,Uszoda, Elektromos autó töltő.Monor a dél-kelet pesti agglomerációban, a dinamikusan fejlődő főváros és vonzáskörzete, a jó minőségű lakókörnyezetet egyre színvonalasabb közszolgáltatásokkal is biztosító, egyúttal a befektetők számára is vonzó település.Monor olyan város, ahol jó élni, ahol jó befektetni.Kiváló közlekedésének köszönhetően az ország bármely pontja könnyen elérhető Monorról.Amennyiben felkeltettem érdeklődésed keress nyugodtan, és gyere, nézd meg velem az ingatlant!Hitel ügyintézés, eladás és vétel teljes körű ügyintézése, ingyenes tanácsadás, értékbecslés, megbízható ügyvédi háttér biztosítása.

Térkép

Ingatlan adásvétel ügyvédi díja
360 000 Ft
a hirdetésben szereplő ár alapján
  • A vételár 0,45%-a
  • Szerződéscsomag teljeskörű képviselettel
  • Ingyenes tulajdoni lap ellenőrzés
  • Az ÁFA-t már tartalmazza
Érdekel az ajánlat →
A tájékoztatás nem teljes körű és nem minősül ajánlattételnek. Minimum díj: 150 000 Ft, maximum díj: 600 000 Ft. A díj kizárólag lakóingatlan adásvételére vonatkozik.

A hirdető elérhetősége

Duna House - Új-Lak Bázis Kft.

Káplár Ildikó
+36 30 468