Eladó Ház- házrész
Hirdetéskód: 9305989
Duna House - Új-Lak Bázis Kft.
Felújításhoz személyi kölcsönt keres? Kalkuláljon itt! →76.00 m2
ALAPTERÜLET4
SZOBASZÁMnincs megadva
ÉPÍTÉSnincs megadva
FŰTÉS- CSOK igénybe vehető nem
- Tetőtér beépíthető nem
- Építés éve 2026
- Klíma nem
- Szigetelt nem
A+++
A++
A+
A
B
C
D
E
F
G
H
I
Az ingatlan leírása
Monoron eladó, újépítésű, 3 szoba + nappalis, tároló kapcsolatos ikerházfél, hőszivattyús fűtéssel, kb 300 nm-es kerttel!
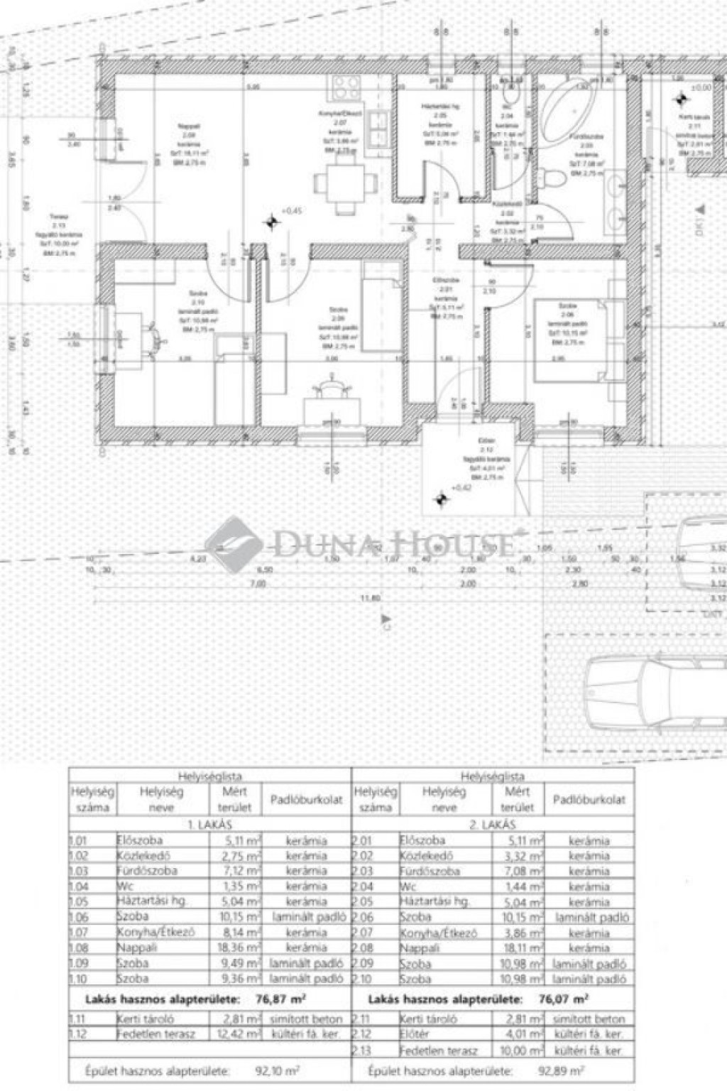
Belső nettó hasznos élhető tér 76 nm!
Várható átadás : 2026.10 hó
Önálló helyrajzi számmal fog rendelkezni, nem osztatlan közös tulajdon, társasház alapító lesz.
10 % önerővel szerződhető!
Helyiségeit tekintve nagyon jó elosztással rendelkezik, alábbiakban sorolom fel négyzetméterek megjelölésével:
- 3 önálló bejáratú szoba (10.15 nm, 10.98 nm, 10.98 nm)
- teraszkapcsolatos nappali + konyha és étkező (21.97 nm)
- előszoba (5.11 nm)
- közlekedő (3.32 nm)
- fürdőszoba (7.08 nm)
- wc (1.44 nm)
- háztartási helyiség (5 nm)
- kerti tároló, itt ér össze a két épület (2.81 nm)
- nyitott terasz (10 nm)
Műszaki leírás:
- Fischer hőszivattyús fűtés, padlófűtéssel
- burkolat meleg 8000 Ft / nm, hideg: 10 000 ft / nm
- 10 cm hőszigetelés grafitos
- 30 cm üveggyapot tető hőszigetelés
- vakolás: belső: alapvakolat + simítóvakolat
- lábazaton 8 cm XPS hőszigetelés
- nyílászárók: típus műanyag szerkezetek, fehér színben, 3 rtg.hőszig.üveggel
- festés: belsőben páraáteresztő falfestékkel, színezve igény szerint
- elektromos nagykapu
- utcafronton épített, igényes kerítés
- H tarifa
Az ár kulcsrakészen értendő!
A házakat önerőből építi! Az építő cég anyagilag biztos talpakon áll!
Monoron megtalálható:
Pékség, Cukrászda, Gyógyszertár, Posta, Vendéglő, Könyvtár, Zöldséges, Rossmann, Dm, Élelmiszer boltok, Okmányiroda, Bankok(Takarék,Otp, Budapest Bank), Piac, Bölcsöde, Óvoda, Iskola, Gimnázium,Uszoda, Elektromos autó töltő.
Monor a dél-kelet pesti agglomerációban, a dinamikusan fejlődő főváros és vonzáskörzete, a jó minőségű lakókörnyezetet egyre színvonalasabb közszolgáltatásokkal is biztosító, egyúttal a befektetők számára is vonzó település.
Monor olyan város, ahol jó élni, ahol jó befektetni.
Kiváló közlekedésének köszönhetően az ország bármely pontja könnyen elérhető Monorról.
Amennyiben felkeltettem érdeklődésed keress nyugodtan, és gyere, nézd meg velem az ingatlant!
Hitel ügyintézés, eladás és vétel teljes körű ügyintézése, ingyenes tanácsadás, értékbecslés, megbízható ügyvédi háttér biztosítása.
Belső nettó hasznos élhető tér 76 nm!
Várható átadás : 2026.10 hó
Önálló helyrajzi számmal fog rendelkezni, nem osztatlan közös tulajdon, társasház alapító lesz.
10 % önerővel szerződhető!
Helyiségeit tekintve nagyon jó elosztással rendelkezik, alábbiakban sorolom fel négyzetméterek megjelölésével:
- 3 önálló bejáratú szoba (10.15 nm, 10.98 nm, 10.98 nm)
- teraszkapcsolatos nappali + konyha és étkező (21.97 nm)
- előszoba (5.11 nm)
- közlekedő (3.32 nm)
- fürdőszoba (7.08 nm)
- wc (1.44 nm)
- háztartási helyiség (5 nm)
- kerti tároló, itt ér össze a két épület (2.81 nm)
- nyitott terasz (10 nm)
Műszaki leírás:
- Fischer hőszivattyús fűtés, padlófűtéssel
- burkolat meleg 8000 Ft / nm, hideg: 10 000 ft / nm
- 10 cm hőszigetelés grafitos
- 30 cm üveggyapot tető hőszigetelés
- vakolás: belső: alapvakolat + simítóvakolat
- lábazaton 8 cm XPS hőszigetelés
- nyílászárók: típus műanyag szerkezetek, fehér színben, 3 rtg.hőszig.üveggel
- festés: belsőben páraáteresztő falfestékkel, színezve igény szerint
- elektromos nagykapu
- utcafronton épített, igényes kerítés
- H tarifa
Az ár kulcsrakészen értendő!
A házakat önerőből építi! Az építő cég anyagilag biztos talpakon áll!
Monoron megtalálható:
Pékség, Cukrászda, Gyógyszertár, Posta, Vendéglő, Könyvtár, Zöldséges, Rossmann, Dm, Élelmiszer boltok, Okmányiroda, Bankok(Takarék,Otp, Budapest Bank), Piac, Bölcsöde, Óvoda, Iskola, Gimnázium,Uszoda, Elektromos autó töltő.
Monor a dél-kelet pesti agglomerációban, a dinamikusan fejlődő főváros és vonzáskörzete, a jó minőségű lakókörnyezetet egyre színvonalasabb közszolgáltatásokkal is biztosító, egyúttal a befektetők számára is vonzó település.
Monor olyan város, ahol jó élni, ahol jó befektetni.
Kiváló közlekedésének köszönhetően az ország bármely pontja könnyen elérhető Monorról.
Amennyiben felkeltettem érdeklődésed keress nyugodtan, és gyere, nézd meg velem az ingatlant!
Hitel ügyintézés, eladás és vétel teljes körű ügyintézése, ingyenes tanácsadás, értékbecslés, megbízható ügyvédi háttér biztosítása.