Eladó Ház- házrész
Hirdetéskód: 9312324
Pécs Király utca 75/5 - OTP Ingatlanpont Iroda
Felújításhoz személyi kölcsönt keres? Kalkuláljon itt! →116.00 m2
ALAPTERÜLET3
SZOBASZÁMnincs megadva
ÉPÍTÉSElektromos
FŰTÉS- CSOK igénybe vehető nem
- Tetőtér beépíthető nem
- Építés éve 1975
- Fűtés Elektromos
- Klíma nem
- Szigetelt nem
A+++
A++
A+
A
B
C
D
E
F
G
H
I
Az ingatlan leírása
Teljeskörűen felújított, energiatakarékos családi ház eladó Mohács közkedvelt részén
Mohács egyik közkedvelt, családbarát részén kínálunk megvételre egy 116 m2-es, 2020-ban teljeskörűen felújított családi házat, 369 m2-es telken.
Az ingatlan kiváló választás azok számára, akik egy azonnal költözhető, korszerű, alacsony fenntartású otthont keresnek, felújítás és további ráfordítás nélkül.
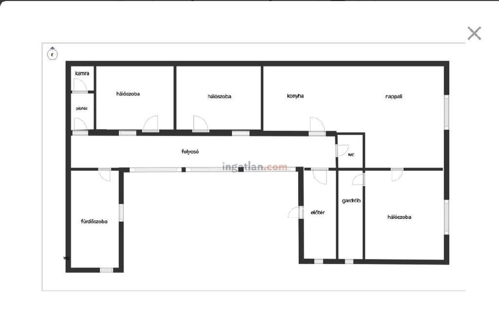
A ház praktikus, jól élhető elrendezésű: 3 külön nyíló szoba, amerikai konyhás nappali, külön gardrób, mosókonyha, valamint egy tágas fürdőszoba került kialakításra, ahol kád és zuhanyzó egyaránt rendelkezésre áll.
A 2020-as teljes felújítás során az ingatlan 10 cm külső szigetelést kapott, emellett több korszerű, energiatakarékos műszaki megoldással is felszerelték. A ház rendelkezik napelemes rendszerrel, 5 db hűtő-fűtő klímával, vízteres kandallóval, valamint vízlágyító rendszerrel, amelyek jelentősen hozzájárulnak a kényelmes és gazdaságos fenntartáshoz.
A házhoz első és hátsó fedett terasz is tartozik, így a kültéri pihenés és vendégfogadás is kényelmesen megoldott. A hátsó teraszon kialakított beépített munkapult és mosogató különösen praktikussá teszi a szabadtéri főzést, grillezést és családi összejöveteleket.
A 369 m2-es kert jól használható, könnyen karbantartható, kellemes zöld környezetet biztosít, gyümölcsfákkal.
Az ingatlan elhelyezkedése kifejezetten kedvező: iskola, óvoda, játszótér néhány perc sétával elérhető, így családosok számára is ideális választás.
Egy igényesen felújított, korszerű és jól átgondolt otthon Mohács egyik kedvelt részén, amely azonnal költözhető állapotban várja új tulajdonosát.(M326845)
88000000 Ft
Mohács egyik közkedvelt, családbarát részén kínálunk megvételre egy 116 m2-es, 2020-ban teljeskörűen felújított családi házat, 369 m2-es telken.
Az ingatlan kiváló választás azok számára, akik egy azonnal költözhető, korszerű, alacsony fenntartású otthont keresnek, felújítás és további ráfordítás nélkül.
A ház praktikus, jól élhető elrendezésű: 3 külön nyíló szoba, amerikai konyhás nappali, külön gardrób, mosókonyha, valamint egy tágas fürdőszoba került kialakításra, ahol kád és zuhanyzó egyaránt rendelkezésre áll.
A 2020-as teljes felújítás során az ingatlan 10 cm külső szigetelést kapott, emellett több korszerű, energiatakarékos műszaki megoldással is felszerelték. A ház rendelkezik napelemes rendszerrel, 5 db hűtő-fűtő klímával, vízteres kandallóval, valamint vízlágyító rendszerrel, amelyek jelentősen hozzájárulnak a kényelmes és gazdaságos fenntartáshoz.
A házhoz első és hátsó fedett terasz is tartozik, így a kültéri pihenés és vendégfogadás is kényelmesen megoldott. A hátsó teraszon kialakított beépített munkapult és mosogató különösen praktikussá teszi a szabadtéri főzést, grillezést és családi összejöveteleket.
A 369 m2-es kert jól használható, könnyen karbantartható, kellemes zöld környezetet biztosít, gyümölcsfákkal.
Az ingatlan elhelyezkedése kifejezetten kedvező: iskola, óvoda, játszótér néhány perc sétával elérhető, így családosok számára is ideális választás.
Egy igényesen felújított, korszerű és jól átgondolt otthon Mohács egyik kedvelt részén, amely azonnal költözhető állapotban várja új tulajdonosát.(M326845)
88000000 Ft