Eladó Ház- házrész
Hirdetéskód: 9217597
Fővállalkozó Balla és Balla Kft
296.00 m2
ALAPTERÜLET6
SZOBASZÁMnincs megadva
ÉPÍTÉSnincs megadva
FŰTÉS- CSOK igénybe vehető nem
- Tetőtér beépíthető nem
- Építés éve 2003
- Klíma nem
- Szigetelt nem
A+++
A++
A+
A
B
C
D
E
F
G
H
I
Az ingatlan leírása
FÖLDSZINTES TÉGLAHÁZ- hőszivattyús-6 SZOBÁS-dupla garázsos
-borospince-sütögető, kemence-nagy kert-nagy belső terek-
A ház 2003-ban épült 44-es Phtéglából, cserépfedéssel.
Alapvetően fűtést és meleg víz ellátást a Vaillant kondenzációs gázkazán biztosítja. 2023-ban felújítás történt: hőszivattyú telepítés, hűtő-fűtő klíma, 23,5 KW-ra napelemekhez szükséges bővítési engedély kérés, 21 db tetőablak csere.
Ez a ház egy minden igényt kielégítő, tágas, igényes, átgondolt elrendezésű otthon.
Eredetileg egy család számára épült, de a lehetőség adott két generáció egymás mellett élésére (korábban ez így is volt).
Körbejárható, bekerített. A bejárat elektromos garázskapu, a garázsajtó szintén. Térkövezett kocsibejáró.
A ház a japán építészeti stílus jegyeit hordozza magán.
Az udvar beleolvad a parkfalu környezetébe, ahol az utcafronton egy óriás nyárfa köszönti az idelátogatót. A hátsó kertben szintén vannak ősfák (nyár, tölgy, akác - bodza), melyek díszei a kertnek és kellemes árnyékot biztosítanak a nyári kánikulában. A ház "U" alakú kialakítása mind a belső tér praktikus elrendezésében, mind pedig az udvar minőségi hasznosításában játszik szerepet.
Itt, hátul, az erdő felőli területen található rózsakert, fűszerkert, magas ágyás, konyhakert. Innen az egyik oldalon előre haladva a gyümölcsfák sora alkot utat a sok virág és bokor társaságában.
Gyümölcsfák: alma, körte, meggy, cseresznye, szilva, sárgabarack, mandula, dió, szőlő, ribizli, málna, birs, naspolya, kökény, som, mogyoró. A kapu felé található egy kis tó, melynek partján kellemes pihenő van kialakítva.
A másik oldal a borospincétől indul. Mellette a félig fedett sütögető, nyári konyha, kemence. Ez előtt az utca felé igazi virágos rét terül el nyáron.
A belső terekről:
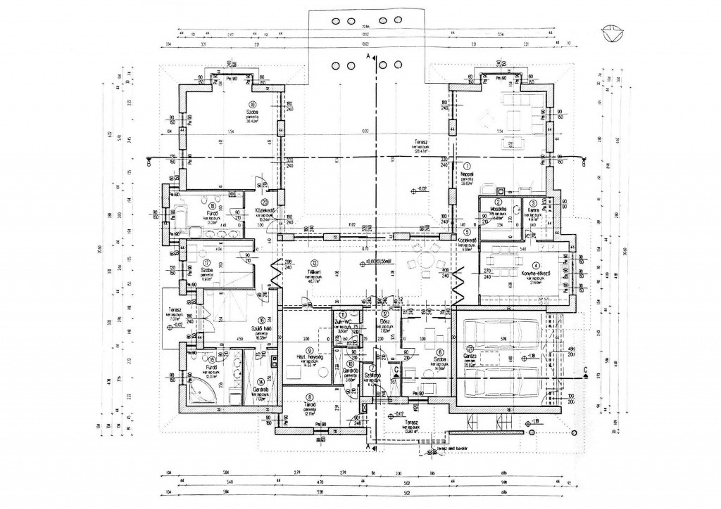
A közel 300 m2-es ház jól elkülöníthető terekre oszlik. A bejáratnál jobb oldalon dolgozó szoba, bal oldalon egy külön lakrész (háló+fürdőszoba) majd az előszobából a télikertnek tervezett - most inkább a társasági élet alapjaként használt terület- helyiségen át jobbra az étkező, majd a konyha. E kettő közötti folyosó köti össze a nappalival. A télikertből balra fordulva a kondi sarok, beugró található, majd jönnek a szobák és fürdőszobák. Összesen 3 fürdőszoba van.
Az ingatlan fenti leírása korántsem adja vissza azt a komplett tartalmat, mellyel rendelkezik ez az egyedi tervezésű ház.
Komoly érdeklődés esetén részletes leírást, tájékoztató adatokat tudok küldeni.
CSEND, NYUGALOM, BÉKE - Leginkább ezzel tudnám jellemezni a helyet, ahol található. Ez nem reklámszöveg! Ez tapasztalat! Jómagam több, mint 25 éve élek itt és nyugodtan állíthatom, hogy egyedülálló hely a környéken! ....és mivel itt lakom, nem árulok zsákbamacskát.
Jöjjön, nézze meg!
Hívjon bármikor!
-borospince-sütögető, kemence-nagy kert-nagy belső terek-
A ház 2003-ban épült 44-es Phtéglából, cserépfedéssel.
Alapvetően fűtést és meleg víz ellátást a Vaillant kondenzációs gázkazán biztosítja. 2023-ban felújítás történt: hőszivattyú telepítés, hűtő-fűtő klíma, 23,5 KW-ra napelemekhez szükséges bővítési engedély kérés, 21 db tetőablak csere.
Ez a ház egy minden igényt kielégítő, tágas, igényes, átgondolt elrendezésű otthon.
Eredetileg egy család számára épült, de a lehetőség adott két generáció egymás mellett élésére (korábban ez így is volt).
Körbejárható, bekerített. A bejárat elektromos garázskapu, a garázsajtó szintén. Térkövezett kocsibejáró.
A ház a japán építészeti stílus jegyeit hordozza magán.
Az udvar beleolvad a parkfalu környezetébe, ahol az utcafronton egy óriás nyárfa köszönti az idelátogatót. A hátsó kertben szintén vannak ősfák (nyár, tölgy, akác - bodza), melyek díszei a kertnek és kellemes árnyékot biztosítanak a nyári kánikulában. A ház "U" alakú kialakítása mind a belső tér praktikus elrendezésében, mind pedig az udvar minőségi hasznosításában játszik szerepet.
Itt, hátul, az erdő felőli területen található rózsakert, fűszerkert, magas ágyás, konyhakert. Innen az egyik oldalon előre haladva a gyümölcsfák sora alkot utat a sok virág és bokor társaságában.
Gyümölcsfák: alma, körte, meggy, cseresznye, szilva, sárgabarack, mandula, dió, szőlő, ribizli, málna, birs, naspolya, kökény, som, mogyoró. A kapu felé található egy kis tó, melynek partján kellemes pihenő van kialakítva.
A másik oldal a borospincétől indul. Mellette a félig fedett sütögető, nyári konyha, kemence. Ez előtt az utca felé igazi virágos rét terül el nyáron.
A belső terekről:
A közel 300 m2-es ház jól elkülöníthető terekre oszlik. A bejáratnál jobb oldalon dolgozó szoba, bal oldalon egy külön lakrész (háló+fürdőszoba) majd az előszobából a télikertnek tervezett - most inkább a társasági élet alapjaként használt terület- helyiségen át jobbra az étkező, majd a konyha. E kettő közötti folyosó köti össze a nappalival. A télikertből balra fordulva a kondi sarok, beugró található, majd jönnek a szobák és fürdőszobák. Összesen 3 fürdőszoba van.
Az ingatlan fenti leírása korántsem adja vissza azt a komplett tartalmat, mellyel rendelkezik ez az egyedi tervezésű ház.
Komoly érdeklődés esetén részletes leírást, tájékoztató adatokat tudok küldeni.
CSEND, NYUGALOM, BÉKE - Leginkább ezzel tudnám jellemezni a helyet, ahol található. Ez nem reklámszöveg! Ez tapasztalat! Jómagam több, mint 25 éve élek itt és nyugodtan állíthatom, hogy egyedülálló hely a környéken! ....és mivel itt lakom, nem árulok zsákbamacskát.
Jöjjön, nézze meg!
Hívjon bármikor!