Eladó Ház- házrész
Hirdetéskód: 9245226
GDN Ingatlanhálózat - Barbara Property
Ez a hirdetés megfelelhet a FIX 3%-os programnak.
Tudj meg többet a részletekről itt.
110.00 m2
ALAPTERÜLET4
SZOBASZÁMnincs megadva
ÉPÍTÉSGáz (cirkó)
FŰTÉS- CSOK igénybe vehető nem
- Tetőtér beépíthető nem
- Fűtés Gáz (cirkó)
- Klíma nem
- Szigetelt nem
A+++
A++
A+
A
B
C
D
E
F
G
H
I
Az ingatlan leírása
Eladásra kínálok Mogyoród központi részén, egy önálló csaladi házat.
A ház 1940es években mogyoródi kőből épült, így rendkívül stabil szerkezettel rendelkezik, majd téglából 1960-ban hozzá építettek. Tető cseréppel borított.
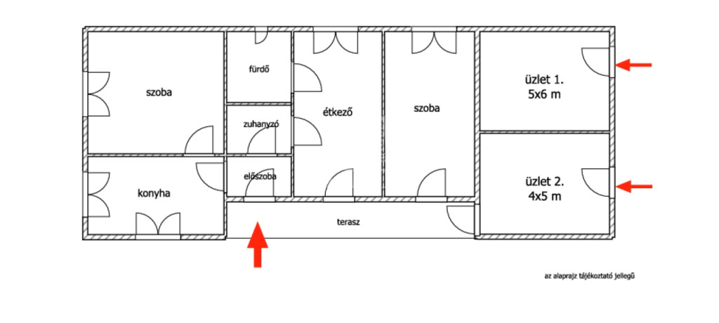
Az utcafronti részen jelenleg 2 külön bejaratú üzlethelyiség található, melyeknek közös mosdójuk van.
A ház udvar felöli bejarattal rendelkező, hátsó része gyakorlatilag 2 szoba, konyha, előszoba, fürdőszoba, plusz külön zuhanyzó, kamra es egy fedett terasz.
A lakóház utan az udvarban tároló es garazs is van.
Rendezett, 510 nm nagyságú telek!
Átalakítási tippek:
- ház alkalmas 5 szoba kialakítására is, avagy az étkezőt egybevonva az egyik szobával, és az üzleteket szobává alakítva, egy modern 3 hálószoba, plusz nappalis elosztast is ki lehet alakítani!
- Ezen túl még 2 kényelmes lakás is kialakitható, 2 külön bejárattal.
Egyszóval rengeteg lehetőséget, és elérhető aron nyujt ez a nagyszerű ház!
Hivjon bizalommal, tekintsük meg együtt! ...TOVÁBBI, TÖBBEZRES INGATLAN KÍNÁLAT: - GDN azonosító: 391468
A ház 1940es években mogyoródi kőből épült, így rendkívül stabil szerkezettel rendelkezik, majd téglából 1960-ban hozzá építettek. Tető cseréppel borított.
Az utcafronti részen jelenleg 2 külön bejaratú üzlethelyiség található, melyeknek közös mosdójuk van.
A ház udvar felöli bejarattal rendelkező, hátsó része gyakorlatilag 2 szoba, konyha, előszoba, fürdőszoba, plusz külön zuhanyzó, kamra es egy fedett terasz.
A lakóház utan az udvarban tároló es garazs is van.
Rendezett, 510 nm nagyságú telek!
Átalakítási tippek:
- ház alkalmas 5 szoba kialakítására is, avagy az étkezőt egybevonva az egyik szobával, és az üzleteket szobává alakítva, egy modern 3 hálószoba, plusz nappalis elosztast is ki lehet alakítani!
- Ezen túl még 2 kényelmes lakás is kialakitható, 2 külön bejárattal.
Egyszóval rengeteg lehetőséget, és elérhető aron nyujt ez a nagyszerű ház!
Hivjon bizalommal, tekintsük meg együtt! ...TOVÁBBI, TÖBBEZRES INGATLAN KÍNÁLAT: - GDN azonosító: 391468