Eladó Ház- házrész
Hirdetéskód: 9219553

Duna House - Új-Lak Bázis Kft.

416 m2
ALAPTERÜLET
6
SZOBASZÁM
nincs megadva
ÉPÍTÉS
nincs megadva
FŰTÉS
  • CSOK igénybe vehető nem
  • Tetőtér beépíthető nem
  • Építés éve 2023
  • Klíma nem
  • Szigetelt nem
Energetikai besorolás: Nincs meghatározva
A+++
A++
A+
A
B
C
D
E
F
G
H
I

Az ingatlan leírása

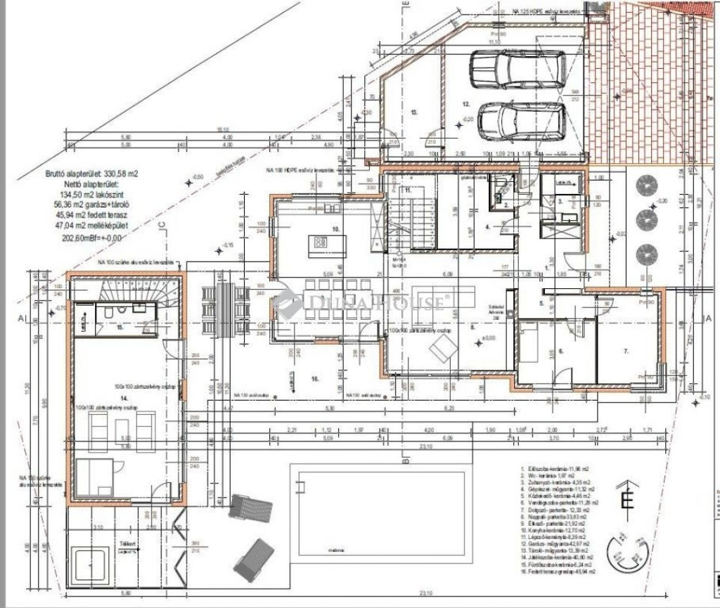
PRÉMIUM MINIMÁL VILLA KÜLTÉRI MEDENCÉVEL, SZAUNÁVAL ÉS TELJESEN KÉSZ BELSŐ TEREKKEL LAKE FOREST VILLAPARKEladó egy Budapesttől karnyújtásnyi távolságra található, zárt, őrzött luxus villaparkban álló, önálló, 416 m²-es, okosotthon-rendszerrel felszerelt családi villa 1 654 m²-es, parkosított telken, kétállásos teremgarázzsal.A nappali + 4 hálós, triplakomfortos otthon minden részlete a gondos tervezést és a kompromisszummentes anyaghasználatot tükrözi az ingatlan időközben teljes befejezést kapott, így az új tulajdonos azonnal élvezheti a prémium életérzést.Kiemelt újdonságokEmeleti, üvegfalú szauna az intim teraszon, közvetlenül a szülői lakosztályból megközelíthetően négy évszakos kikapcsolódás zöldpanorámával.Fedett kerti grillkonyha professzionális beépített gépekkel: nagyméretű gázgrill, mosogató, hűtő/fiókos tárolók, munkapult, külön pizzasütő kemence tökéletes szabadtéri vendéglátó tér.Nagyformátumú kőburkolatok és egyedi fényépítészet a reprezentatív belső terekben (dizájn LED-vonalvilágítás a márványhatású falon).Elegáns, fedett teraszok kőburkolattal, közvetlen kapcsolattal a kerthez és a medencéhez.Elrendezés & ÉletérzésA földszinti, hatalmas üvegfelületekkel megnyitott nappaliétkezőkonyha tér a fedett teraszra és a gondozott kertre tárul. Itt található a fűtött, 4×8 m-es Compass medence automata redőnyfedéssel sportoláshoz és családi pihenéshez egyaránt ideális.Az emeleti szülői lakosztály saját gardróbbal és fürdővel, valamint a szaunához nyíló privát teraszkapcsolattal rendelkezik; a további hálók külön fürdőblokkhoz csatlakoznak.Műszaki tartalom (válogatás)Loxone okosház-előkészítés és vezetékezés az egész épületbenLégtechnika: friss levegő befúvás (rekuperáció), elszívás szellőztetés ablaknyitás nélkülMennyezethűtésfűtés + padlófűtés, FUJITSU hőszivattyúA++ energiahatékonyság, 40 cm hőszigetelés, 3 rétegű nyílászárókNapelem/napkollektor teljes előkészítéseKözponti porszívó csövezésElektromos zsaluziák, távirányítható LED-szalagok helyiségenkéntVízteres kandalló kiállás frisslevegő-beszívássalHörmann elektromos garázskapu, ujjlenyomatos bejárati ajtó30×50 A elektromos ellátás, EV-töltő kiállás a garázsbanNappaliban 5.1 házimozi kiépítés, beépített páncélszekrényKamerarendszer és riasztó előkészítés, kétállásos padlófűtött garázs400 l-es HMV-tartályMedence & KertCompass 4×8 m carbon pools medence, 70 kg teherbírású automata redőnyAutomata vízkezelés/vegyszeradagolás, távvezérelt medencevilágításHidegmeleg vizes kerti és emeleti terasz-zuhanyParkosított, intim, zöldövezeti telek, prémium burkolatok és hatalmas, fedett/nyitott teraszfelületekIkonikus luxus ikonikus környezetben azoknak, akik a modern minimalizmust, a kifinomult anyaghasználatot és a kifogástalan műszaki tartalmat keresik.Bővebb információért és a részletes, helyszíni bemutatásért várom megkeresését.

Térkép

A hirdető elérhetősége

Duna House - Új-Lak Bázis Kft.

Szabó Róbert
+36 20 520