Eladó Ház- házrész
Hirdetéskód: 9205305
Openhouse Miskolc Szentpáli utcai Ingatlaniroda
104 m2
ALAPTERÜLET6
SZOBASZÁMnincs megadva
ÉPÍTÉSnincs megadva
FŰTÉS- CSOK igénybe vehető nem
- Tetőtér beépíthető nem
- Építés éve 1995
- Klíma nem
- Szigetelt nem
A+++
A++
A+
A
B
C
D
E
F
G
H
I
Az ingatlan leírása
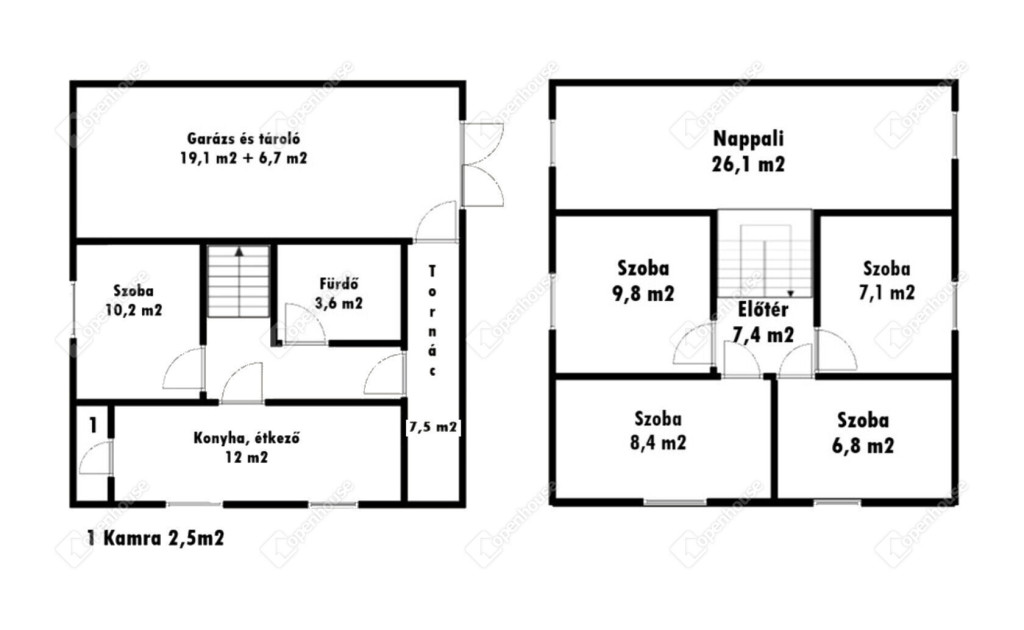
Az Openhouse Miskolc Szentpáli utcai Ingatlaniroda kínálatában eladó a #176828 hivatkozási számú miskolci családi ház.
Az eladó miskolci családi ház jellemzői:
- tágas családi ház Miskolc egyik kedvelt kertvárosi részén a Bábonyibérc városrészen!
- 104 m2-es, eltolt szintes családi ház 320 m2-es telken
- 1995-ben épült, szilikát és Poroterm falazattal, tégla belső falakkal, stabil tetőszerkezettel és cserépfedéssel
- 5 szobás elrendezésének köszönhetően ideális lehet nagyobb családnak vagy több generációnak is
- a ház összkomfortos, fűtését vegyes tüzelésű kazán biztosítja radiátorokon keresztül
- a földszinten található a tágas garázs, kazánház
- a földszinten a bejárat, illetve egy hálószoba, konyha, kamra, WC, előszoba, közlekedő
- félemeleten a tágas nappali
- az emeleten 4 szoba
- kiváló elhelyezkedése révén néhány perc sétára található buszmegálló, élelmiszerboltok, gyógyszertár, így minden fontosabb szolgáltatás könnyen elérhető, közvetlen közelben állatorvos
Ez a ház remek lehetőséget kínál, ha Miskolc egyik csendes, nyugodt környezetében, mégis jó infrastruktúrával ellátott környéken szeretne otthonra találni!
Ha felkeltette érdeklődését ez az eladó miskolci családi ház, vagy bármely más családi ház és bővebb információt szeretne, keressen bizalommal.Hivatkozási szám: #176828
Az Openhouse Miskolc Szentpáli utcai Ingatlaniroda tagjaként várom Önt az országos hálózatunk teljes kínálatával.
A családi ház vásárláshoz hitelt igényelne? Ingyenes hitelközvetítéssel segít Önnek bankfüggetlen hitelszakértőnk.
További szolgáltatásainkkal (pl. értékbecslés, energetikai tanúsítvány, jogi háttér) is segítjük Önt a vásárlásban.
Az otthon érték. Az ingatlan üzlet.
irányár: 34990000 Ft
Az eladó miskolci családi ház jellemzői:
- tágas családi ház Miskolc egyik kedvelt kertvárosi részén a Bábonyibérc városrészen!
- 104 m2-es, eltolt szintes családi ház 320 m2-es telken
- 1995-ben épült, szilikát és Poroterm falazattal, tégla belső falakkal, stabil tetőszerkezettel és cserépfedéssel
- 5 szobás elrendezésének köszönhetően ideális lehet nagyobb családnak vagy több generációnak is
- a ház összkomfortos, fűtését vegyes tüzelésű kazán biztosítja radiátorokon keresztül
- a földszinten található a tágas garázs, kazánház
- a földszinten a bejárat, illetve egy hálószoba, konyha, kamra, WC, előszoba, közlekedő
- félemeleten a tágas nappali
- az emeleten 4 szoba
- kiváló elhelyezkedése révén néhány perc sétára található buszmegálló, élelmiszerboltok, gyógyszertár, így minden fontosabb szolgáltatás könnyen elérhető, közvetlen közelben állatorvos
Ez a ház remek lehetőséget kínál, ha Miskolc egyik csendes, nyugodt környezetében, mégis jó infrastruktúrával ellátott környéken szeretne otthonra találni!
Ha felkeltette érdeklődését ez az eladó miskolci családi ház, vagy bármely más családi ház és bővebb információt szeretne, keressen bizalommal.Hivatkozási szám: #176828
Az Openhouse Miskolc Szentpáli utcai Ingatlaniroda tagjaként várom Önt az országos hálózatunk teljes kínálatával.
A családi ház vásárláshoz hitelt igényelne? Ingyenes hitelközvetítéssel segít Önnek bankfüggetlen hitelszakértőnk.
További szolgáltatásainkkal (pl. értékbecslés, energetikai tanúsítvány, jogi háttér) is segítjük Önt a vásárlásban.
Az otthon érték. Az ingatlan üzlet.
irányár: 34990000 Ft