Eladó Ház- házrész
Hirdetéskód: 9311751

-

Felújításhoz személyi kölcsönt keres? Kalkuláljon itt! →
FIX 3% Program

Ez a hirdetés megfelelhet a FIX 3%-os programnak.
Tudj meg többet a részletekről itt.

217.00 m2
ALAPTERÜLET
4
SZOBASZÁM
Egyéb anyag
ÉPÍTÉS
Gáz (cirkó)
FŰTÉS
  • Belső szintek 3
  • Kilátás Udvari
  • Ingatlan komfort Összkomfortos
  • Építés éve 1983
  • Fűtés Gáz (cirkó)
  • Építőanyag Egyéb anyag
Energetikai besorolás: Nincs meghatározva
A+++
A++
A+
A
B
C
D
E
F
G
H
I

Az MBH Bank személyi kölcsön ajánlata

Fizetett hirdetés
1 millió Ft
6 évre
20 585 Ft/hó
THM: 14.5%
Részletek →
2 millió Ft
6 évre
41 169 Ft/hó
THM: 14.5%
Részletek →
3 millió Ft
6 évre
61 754 Ft/hó
THM: 14.5%
Részletek →

A tájékoztatás nem teljes körű és nem minősül ajánlattételnek.

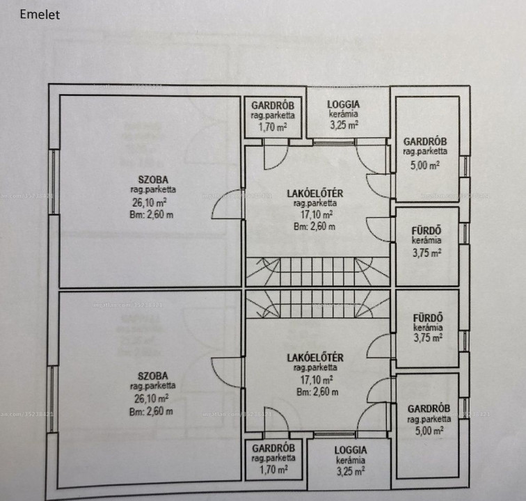
Az ingatlan leírása

Miskolc, Kisavason – panorámás, többgenerációs családi ház eladó


Miskolc egyik hangulatos, történelmi városrészében, Kisavason kínálunk megvételre egy kivételes adottságokkal rendelkező, háromszintes családi házat, amely egy 750 m²-es, tágas telken helyezkedik el.


A 217 m²-es alapterületű ingatlan az 1980-as években, masszív szilikát falazattal épült.


Főbb jellemzők:



  • 3 szint-földszint, emelet, beépített tetőtér

  • Többgenerációs kialakítás vagy két külön lakrészre osztható

  • A lakrészek teljesen elszeparálhatóak

  • Külön villanyórák

  • Mindkét szinten külön fürdőszoba és vizes helyiségek

  • Tetőtérben is kialakított konyha és fürdő

  • Földszinten dupla állásos garázs


 Telek és környezet


A 750 m²-es telek ideális választás mindazok számára, akik értékelik a tágas kertet, a nyugodt környezetet és a szabad tér nyújtotta lehetőségeket. A házból gyönyörű panorámás kilátás nyílik a környékre, ami különleges hangulatot biztosít a mindennapokhoz.


Az ingatlan felújítandó állapotú, így új tulajdonosa saját igényeire szabhatja – legyen szó:



  • egy nagy családi otthon kialakításáról

  • kétgenerációs együttélésről

  • vagy akár befektetési célú, két külön lakás kialakításáról


Ez az ingatlan ritka lehetőség azok számára, akik Miskolc egyik különleges részén szeretnének élni, vagy értékálló befektetést keresnek, ahol a panoráma, a tér és a variálhatóság egyszerre adott.


Ügyfeleim számára teljes körű ügyintézést biztosítok, beleértve a hitelügyintézést, valamint megbízható ügyvédi háttérrel támogatom az adásvételi folyamat biztonságos lebonyolítását.


 


További információért és megtekintéssel kapcsolatban kérem keressen telefonon.


 


www.santazoltan.hu

Térkép

Ingatlan adásvétel ügyvédi díja
357 750 Ft
a hirdetésben szereplő ár alapján
  • A vételár 0,45%-a
  • Szerződéscsomag teljeskörű képviselettel
  • Ingyenes tulajdoni lap ellenőrzés
  • Az ÁFA-t már tartalmazza
Érdekel az ajánlat →
A tájékoztatás nem teljes körű és nem minősül ajánlattételnek. Minimum díj: 150 000 Ft, maximum díj: 600 000 Ft. A díj kizárólag lakóingatlan adásvételére vonatkozik.

A hirdető elérhetősége

Invest Ingatlan Miskolc

+2058880