Eladó Ház- házrész
Hirdetéskód: 9227744

Duna House - Miskolc, Kálvin János utca

FIX 3% Program

Ez a hirdetés megfelelhet a FIX 3%-os programnak.
Tudj meg többet a részletekről itt.

260.00 m2
ALAPTERÜLET
10
SZOBASZÁM
nincs megadva
ÉPÍTÉS
nincs megadva
FŰTÉS
  • CSOK igénybe vehető nem
  • Tetőtér beépíthető nem
  • Építés éve 2021
  • Klíma nem
  • Szigetelt nem
Energetikai besorolás: Nincs meghatározva
A+++
A++
A+
A
B
C
D
E
F
G
H
I

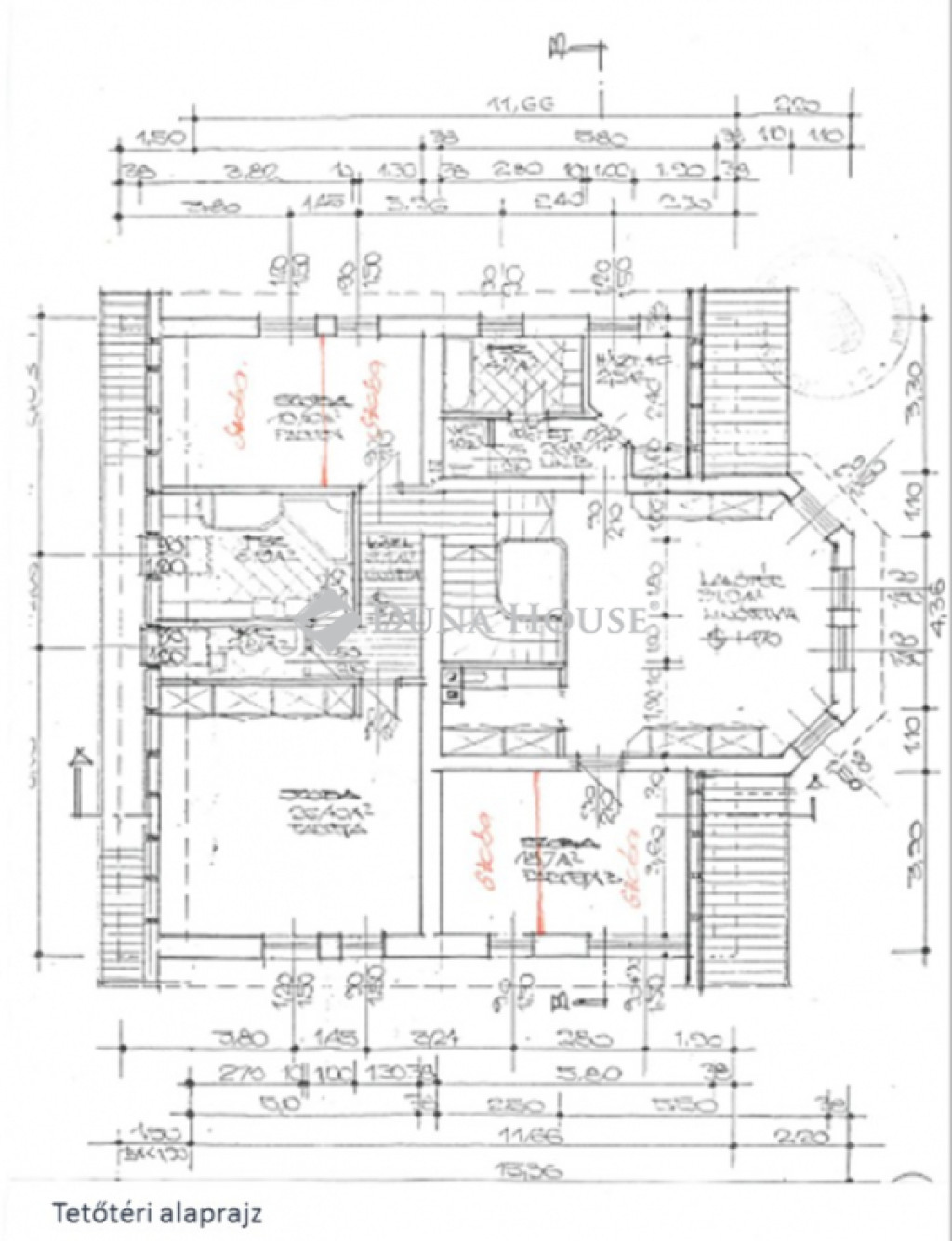
Az ingatlan leírása

Miskolc, Hejőcsaba városrészében egy teljesen újszerű 260 m2 lakótérrel rendelkező, tetőtér beépítéses családi ház eladó.A ház 720 m2-es telken áll, amelyet pihenőkertként is használhat.A ház földszinti része eredetileg rendelő céljára lett kialakítva, amely üzleti-, vagy a lakók elképzelése szerint más funkcióra is igénybe vehető (külön mosdó és WC tartozik ehhez a részhez). Az említett földszinti helyiségeken kívül ezen a szinten foglal helyet a konyha, 44 m2-es nappali-étkező, - ahonnan a kertkapcsolatos teraszra juthatunk - fürdőszoba, külön WC és egy déli fekvésű, 10,5 m2-es szoba is. Az 5 szobás, tágas tetőtéri szintre igényesen kivitelezett belső lépcső vezet, ahol két fürdőszoba, 3 különálló WC, háztartási helyiség található.A ház egy nagyon csendes kis utcáról közelíthető meg, azonban az autópálya és a bevásárlóközpont pár perc alatt elérhető, ugyanúgy, mint az Egyetem vagy Miskolc-Tapolca. Autóval vagy tömegközlekedéssel a belváros is könnyen és rövid idő alatt elérhető.Ha minőségi ingatlant keres, amelynek mérete is megfelel az elképzelésének, hívjon, tekintse meg személyesen!Irodánk pénzügyi szakértője személyre szabott ajánlatot tervez vevőink részére,ingyenes szolgáltatással, amely a hitelt és az elérhető állami támogatásokat(CSOK+, kamattámogatott hitel, Babaváró támogatás) is tartalmazza az Ön igényeire szabva.

Térkép

A hirdető elérhetősége

Duna House - Miskolc, Kálvin János utca

Petrovics Éva
+36 20 369