Eladó Ház- házrész
Hirdetéskód: 9041052

Miskolc - OTP Ingatlanpont Iroda

FIX 3% Program

Ez a hirdetés megfelelhet a FIX 3%-os programnak.
Tudj meg többet a részletekről itt.

125 m2
ALAPTERÜLET
5
SZOBASZÁM
nincs megadva
ÉPÍTÉS
nincs megadva
FŰTÉS
  • CSOK igénybe vehető nem
  • Tetőtér beépíthető nem
  • Építés éve 2010
  • Klíma nem
  • Szigetelt nem
Energetikai besorolás: Nincs meghatározva
A+++
A++
A+
A
B
C
D
E
F
G
H
I

Az ingatlan leírása

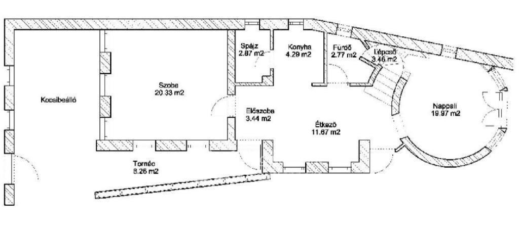
Eladó Miskolcon, Diósgyőr családi házas övezetében egy 125 nm-es, 2 szintes, tégla építésű családi ház 414 nm-es telken, a Diósgyőri vár közelében. Az ingatlan 2010-ben épült 2 ütemben, melyből a felső szint 80%-os készültséggel rendelkezik. Az épület terveit Miskolc város főépítésze, Rostás László készítette, mely magán viseli az erdélyi kultúra stílusjegyeit, szakrális jellemzőket, a hagyományos diósgyőri építészeti stílus tégla architektúrás kialakítását, a stabilitást és a részletekre való odafigyelést. Falazata vastag, hőszigetelt, nyílászárói fa szerkezetűek, szintén hőszigetelt kivitelben. Tetőzete cserép héjazatú. Az alsó szint felújítandó állapotú, ahol egy nagyszoba, nappali, konyha, fürdőszoba + wc, valamint a hátsó részben egy befejezendő nappali található. Az emeleten a készültségnek megfelelő nappali, szobák, fürdőszoba került kialakításra. A ház melegét jelenleg kályha biztosítja, de előkészítésre került a központi fűtés is, a hidegburkolatok alatt padlófűtéssel. A ház mögött szigetelt, könnyűszerkezetes melléképület található. Udvara megfelelő méretű, kerítése még nem kapta meg teljesen a ház stílusát. Víz, villany, csatorna bevezetve, gázcsonk a telken belül van. Amennyiben szeretne egy stílusos, igazán egyedi épületet, melyet saját igényére formálhat és szívesen megtekintené személyesen, kérem hívjon bizalommal!

Térkép

A hirdető elérhetősége

Miskolc - OTP Ingatlanpont Iroda

Cselényi Norbert
+36 70 866