Eladó Ház- házrész
Hirdetéskód: 9039954
Miskolc - OTP Ingatlanpont Iroda
Ez a hirdetés megfelelhet a FIX 3%-os programnak.
Tudj meg többet a részletekről itt.
125.00 m2
ALAPTERÜLET5
SZOBASZÁMnincs megadva
ÉPÍTÉSnincs megadva
FŰTÉS- CSOK igénybe vehető nem
- Tetőtér beépíthető nem
- Építés éve 2010
- Klíma nem
- Szigetelt nem
A+++
A++
A+
A
B
C
D
E
F
G
H
I
Az ingatlan leírása
ELADÓ CSALÁDI HÁZ MISKOLCON – DIÓSGYŐRÖN!
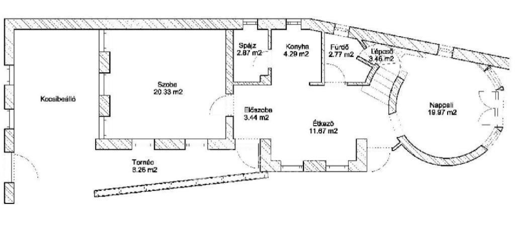
Miskolc egyik legkeresettebb részén, DIÓSGYŐR családi házas övezetében kínálunk eladásra egy TÉGLA ÉPÍTÉSŰ CSALÁDI HÁZAT, amely 125 NM-en két szinten kínál kiváló lehetőséget azoknak, akik EGYEDI INGATLANT keresnek. A DIÓSGYŐRI VÁR közelében fekvő HÁZ ELADÓ, amely egy 414 NM-ES TELEK részeként várja új tulajdonosát.
Az ingatlan 2010-BEN ÉPÜLT, és az építészeti terveket Miskolc főépítésze, Rostás László készítette, különleges ERDÉLYI STÍLUSÚ jegyekkel és HŐSZIGETELT FALAZATTAL. A FELSŐ SZINT 80%-OS KÉSZÜLTSÉGI FOKON áll, így a LEENDŐ TULAJDONOS saját igényeire formálhatja az otthonát. Az ALSÓ SZINT FELÚJÍTANDÓ, ahol tágas NAPPALI, NAGYSZOBA, KONYHA és FÜRDŐSZOBA található, valamint egy befejezésre váró hátsó nappali is kialakítható. A FŰTÉS jelenleg KÁLYHÁVAL megoldott, de a PADLÓFŰTÉS és a KÖZPONTI FŰTÉS előkészítése már megtörtént.
A ház mögött egy SZIGETELT, KÖNNYŰSZERKEZETES MELLÉKÉPÜLET is helyet kapott. A TELKEN BELÜL minden KÖZMŰ elérhető, a GÁZCSÖNK is bekötésre vár. Ha egy STÍLUSOS OTTHONT keres CSENDES KÖRNYEZETBEN, amelyet SAJÁT ÍZLÉSÉRE ALAKÍTHAT, akkor NE HAGYJA KI ezt a lehetőséget!
Hívjon bizalommal akár hétvégén is és tekintse meg személyesen!
Miskolc egyik legkeresettebb részén, DIÓSGYŐR családi házas övezetében kínálunk eladásra egy TÉGLA ÉPÍTÉSŰ CSALÁDI HÁZAT, amely 125 NM-en két szinten kínál kiváló lehetőséget azoknak, akik EGYEDI INGATLANT keresnek. A DIÓSGYŐRI VÁR közelében fekvő HÁZ ELADÓ, amely egy 414 NM-ES TELEK részeként várja új tulajdonosát.
Az ingatlan 2010-BEN ÉPÜLT, és az építészeti terveket Miskolc főépítésze, Rostás László készítette, különleges ERDÉLYI STÍLUSÚ jegyekkel és HŐSZIGETELT FALAZATTAL. A FELSŐ SZINT 80%-OS KÉSZÜLTSÉGI FOKON áll, így a LEENDŐ TULAJDONOS saját igényeire formálhatja az otthonát. Az ALSÓ SZINT FELÚJÍTANDÓ, ahol tágas NAPPALI, NAGYSZOBA, KONYHA és FÜRDŐSZOBA található, valamint egy befejezésre váró hátsó nappali is kialakítható. A FŰTÉS jelenleg KÁLYHÁVAL megoldott, de a PADLÓFŰTÉS és a KÖZPONTI FŰTÉS előkészítése már megtörtént.
A ház mögött egy SZIGETELT, KÖNNYŰSZERKEZETES MELLÉKÉPÜLET is helyet kapott. A TELKEN BELÜL minden KÖZMŰ elérhető, a GÁZCSÖNK is bekötésre vár. Ha egy STÍLUSOS OTTHONT keres CSENDES KÖRNYEZETBEN, amelyet SAJÁT ÍZLÉSÉRE ALAKÍTHAT, akkor NE HAGYJA KI ezt a lehetőséget!
Hívjon bizalommal akár hétvégén is és tekintse meg személyesen!