Eladó Ház- házrész
Hirdetéskód: 9310352
Miskolc - OTP Ingatlanpont Iroda
Felújításhoz személyi kölcsönt keres? Kalkuláljon itt! →
Ez a hirdetés megfelelhet a FIX 3%-os programnak.
Tudj meg többet a részletekről itt.
96.00 m2
ALAPTERÜLET4
SZOBASZÁMnincs megadva
ÉPÍTÉSEgyéb fűtés
FŰTÉS- CSOK igénybe vehető nem
- Tetőtér beépíthető nem
- Építés éve 2026
- Fűtés Egyéb fűtés
- Klíma nem
- Szigetelt nem
A+++
A++
A+
A
B
C
D
E
F
G
H
I
Az ingatlan leírása
Miskolc egyik legkedveltebb és folyamatosan fejlődő városrészében, Szirma új építésű lakóövezetében kínálunk megvételre egy modern, kulcsrakész állapotban átadásra kerülő családi házat. A kivitelezés jelenleg is folyamatban van, a tervezett átadás várhatóan 2026 májusában történik.
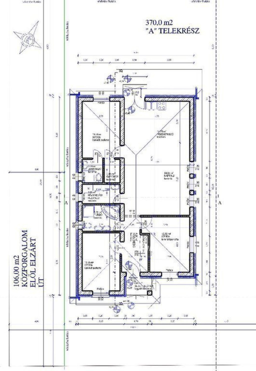
A 96 nm alapterületű családi ház egy 370 nm-es saját használatú telekrészen helyezkedik el. A ház praktikus, jól átgondolt elrendezéssel készült, amely a mindennapi kényelmet és az élhető tereket helyezi előtérbe. A belső tér központja a közel 40 nm-es, tágas amerikai konyhás nappali, világos közösségi teret biztosít a családi élethez. A nappali kertkapcsolata és kellemes tájolása tovább növeli az otthon komfortját.
Az ingatlanban három külön nyíló hálószoba került kialakításra (12,32 nm, 11,55 nm és 11,28 nm), melyek ideális méretűek hálószobának, gyerekszobának vagy akár dolgozószobának is. A praktikus elrendezést tovább erősíti a fürdőszoba, egy külön zuhanyzó, valamint két gardróbhelyiség, amelyek jelentősen megkönnyítik a mindennapi rendszerezést.
A házban emellett háztartási helyiség, közlekedő és fedett előtér is kialakításra kerül, így minden funkció külön, jól használható térben kap helyet.
Az épület tégla szerkezetű, korszerű energetikai megoldásokkal készül. A fűtésről hőszivattyús rendszer gondoskodik padlófűtéssel, amely energiatakarékos és komfortos működést biztosít. Az ingatlan redőnyökkel, klíma és riasztó előkészítéssel kerül átadásra.
Az építkezés jelenlegi szakaszában a leendő tulajdonos számára még lehetőség van bizonyos belső elemek, például burkolatok kiválasztására, a műszaki tartalomban meghatározott értékhatárig, így az otthon részben saját ízlésre szabható.
A környék infrastruktúrája kiváló: óvoda, iskola, boltok és a mindennapi élethez szükséges szolgáltatások mind könnyen elérhetők. A városközpont kb. 10 perc alatt megközelíthető, az autópálya közelsége pedig különösen előnyös azok számára, akik rendszeresen ingáznak. A nyugodt, természetközeli környezet és a kertvárosias hangulat ideális helyszínt biztosít családi élethez.
Fontos kiemelni, hogy a beruházást egy stabil, megbízható és szakmailag tapasztalt kivitelező cég valósítja meg. A projekt mögött olyan vállalkozás áll, amely valódi szakmai háttérrel és tapasztalattal rendelkezik, nem egy rövid távra létrehozott kivitelezői konstrukció!
Irodai azonosító: M324208
A 96 nm alapterületű családi ház egy 370 nm-es saját használatú telekrészen helyezkedik el. A ház praktikus, jól átgondolt elrendezéssel készült, amely a mindennapi kényelmet és az élhető tereket helyezi előtérbe. A belső tér központja a közel 40 nm-es, tágas amerikai konyhás nappali, világos közösségi teret biztosít a családi élethez. A nappali kertkapcsolata és kellemes tájolása tovább növeli az otthon komfortját.
Az ingatlanban három külön nyíló hálószoba került kialakításra (12,32 nm, 11,55 nm és 11,28 nm), melyek ideális méretűek hálószobának, gyerekszobának vagy akár dolgozószobának is. A praktikus elrendezést tovább erősíti a fürdőszoba, egy külön zuhanyzó, valamint két gardróbhelyiség, amelyek jelentősen megkönnyítik a mindennapi rendszerezést.
A házban emellett háztartási helyiség, közlekedő és fedett előtér is kialakításra kerül, így minden funkció külön, jól használható térben kap helyet.
Az épület tégla szerkezetű, korszerű energetikai megoldásokkal készül. A fűtésről hőszivattyús rendszer gondoskodik padlófűtéssel, amely energiatakarékos és komfortos működést biztosít. Az ingatlan redőnyökkel, klíma és riasztó előkészítéssel kerül átadásra.
Az építkezés jelenlegi szakaszában a leendő tulajdonos számára még lehetőség van bizonyos belső elemek, például burkolatok kiválasztására, a műszaki tartalomban meghatározott értékhatárig, így az otthon részben saját ízlésre szabható.
A környék infrastruktúrája kiváló: óvoda, iskola, boltok és a mindennapi élethez szükséges szolgáltatások mind könnyen elérhetők. A városközpont kb. 10 perc alatt megközelíthető, az autópálya közelsége pedig különösen előnyös azok számára, akik rendszeresen ingáznak. A nyugodt, természetközeli környezet és a kertvárosias hangulat ideális helyszínt biztosít családi élethez.
Fontos kiemelni, hogy a beruházást egy stabil, megbízható és szakmailag tapasztalt kivitelező cég valósítja meg. A projekt mögött olyan vállalkozás áll, amely valódi szakmai háttérrel és tapasztalattal rendelkezik, nem egy rövid távra létrehozott kivitelezői konstrukció!
Irodai azonosító: M324208