Eladó Ház- házrész
Hirdetéskód: 9243837
Duna House - Miskolc, Kálvin János utca
Felújításhoz személyi kölcsönt keres? Kalkuláljon itt! →
Ez a hirdetés megfelelhet a FIX 3%-os programnak.
Tudj meg többet a részletekről itt.
260.00 m2
ALAPTERÜLET10
SZOBASZÁMnincs megadva
ÉPÍTÉSGáz (cirkó)
FŰTÉS- CSOK igénybe vehető nem
- Tetőtér beépíthető nem
- Építés éve 2021
- Fűtés Gáz (cirkó)
- Klíma nem
- Szigetelt nem
A+++
A++
A+
A
B
C
D
E
F
G
H
I
Az ingatlan leírása
Eladó újszerű, nagyméretű családi ház Miskolc–Hejőcsabán
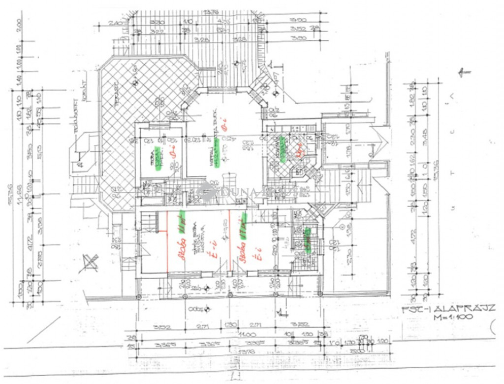
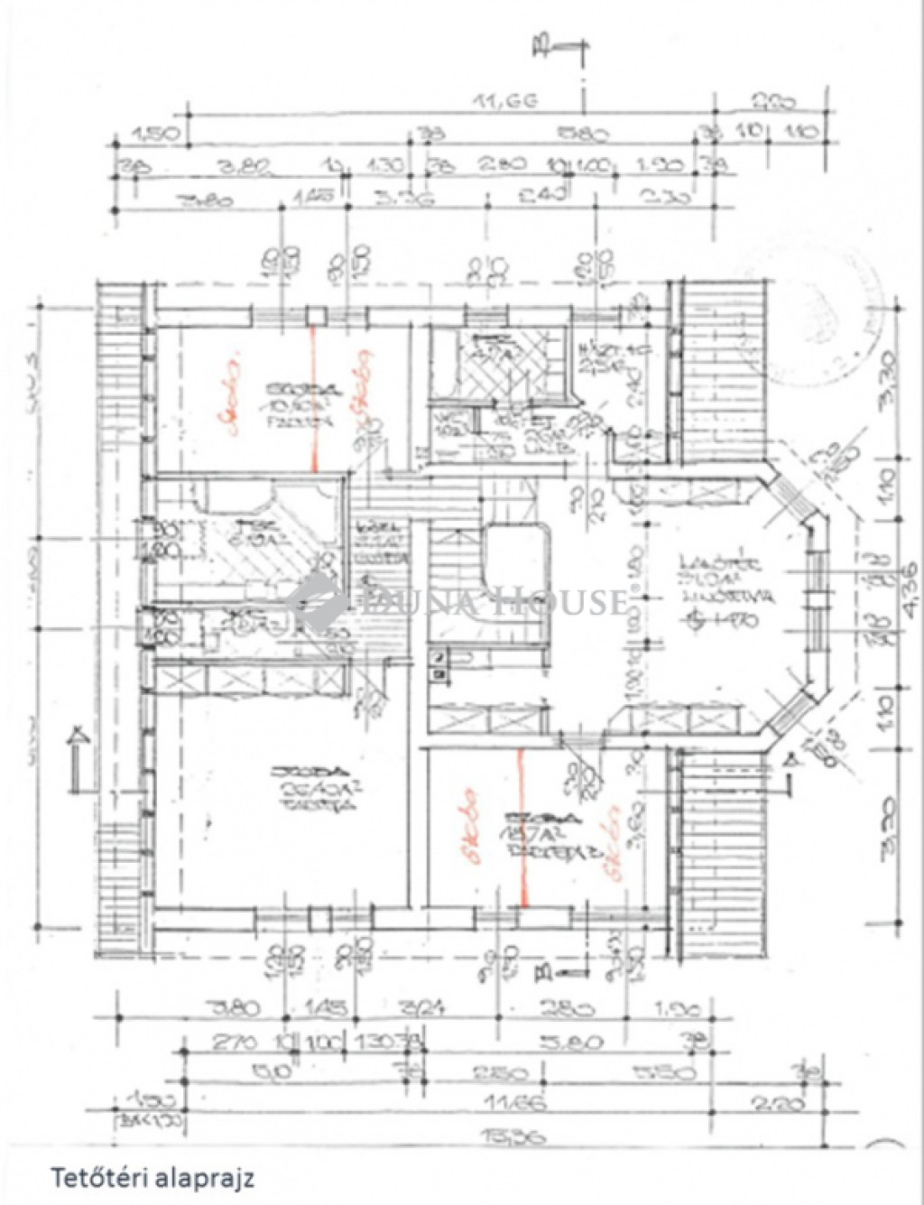
Miskolc Hejőcsaba városrészében eladó egy 260 m² lakóterű, tetőtér-beépítéses, újszerű állapotú családi ház, 720 m²-es telken. Az ingatlan kialakítása és mérete egyaránt ideális nagycsaládosoknak, valamint otthoni vállalkozásban gondolkodók számára.
A földszint eredetileg rendelő céljára készült, külön mosdóval és WC-vel, így üzleti tevékenységre vagy akár külön lakrész kialakítására is alkalmas. Ezen a szinten található továbbá a konyha, a tágas, 44 m²-es nappali–étkező kertkapcsolatos terasszal, fürdőszoba, külön WC, valamint egy déli fekvésű szoba.
Az igényesen kivitelezett belső lépcsőn megközelíthető tetőtéri szinten 5 szoba, 2 fürdőszoba, 3 külön WC és egy háztartási helyiség kapott helyet.
A ház csendes, nyugodt utcában található, ugyanakkor az autópálya, bevásárlóközpontok, az Egyetem és Miskolc-Tapolca néhány perc alatt elérhetők. A belváros autóval és tömegközlekedéssel is gyorsan megközelíthető.
Minőségi, sokoldalúan hasznosítható ingatlan kiváló elhelyezkedéssel.
Az ingatlan finanszírozásához irodánk díjmentes, személyre szabott hitel- és támogatási tanácsadást biztosít (CSOK+, kamattámogatott hitel, Babaváró).
Miskolc Hejőcsaba városrészében eladó egy 260 m² lakóterű, tetőtér-beépítéses, újszerű állapotú családi ház, 720 m²-es telken. Az ingatlan kialakítása és mérete egyaránt ideális nagycsaládosoknak, valamint otthoni vállalkozásban gondolkodók számára.
A földszint eredetileg rendelő céljára készült, külön mosdóval és WC-vel, így üzleti tevékenységre vagy akár külön lakrész kialakítására is alkalmas. Ezen a szinten található továbbá a konyha, a tágas, 44 m²-es nappali–étkező kertkapcsolatos terasszal, fürdőszoba, külön WC, valamint egy déli fekvésű szoba.
Az igényesen kivitelezett belső lépcsőn megközelíthető tetőtéri szinten 5 szoba, 2 fürdőszoba, 3 külön WC és egy háztartási helyiség kapott helyet.
A ház csendes, nyugodt utcában található, ugyanakkor az autópálya, bevásárlóközpontok, az Egyetem és Miskolc-Tapolca néhány perc alatt elérhetők. A belváros autóval és tömegközlekedéssel is gyorsan megközelíthető.
Minőségi, sokoldalúan hasznosítható ingatlan kiváló elhelyezkedéssel.
Az ingatlan finanszírozásához irodánk díjmentes, személyre szabott hitel- és támogatási tanácsadást biztosít (CSOK+, kamattámogatott hitel, Babaváró).