Eladó Ház- házrész
Hirdetéskód: 9176292
Otthon Centrum - Debrecen - Hatvan utca
Ez a hirdetés megfelelhet a FIX 3%-os programnak.
Tudj meg többet a részletekről itt.
82.00 m2
ALAPTERÜLET4
SZOBASZÁMnincs megadva
ÉPÍTÉSGáz (cirkó)
FŰTÉS- CSOK igénybe vehető nem
- Tetőtér beépíthető nem
- Építés éve 2006
- Fűtés Gáz (cirkó)
- Klíma nem
- Szigetelt nem
A+++
A++
A+
A
B
C
D
E
F
G
H
I
Az ingatlan leírása
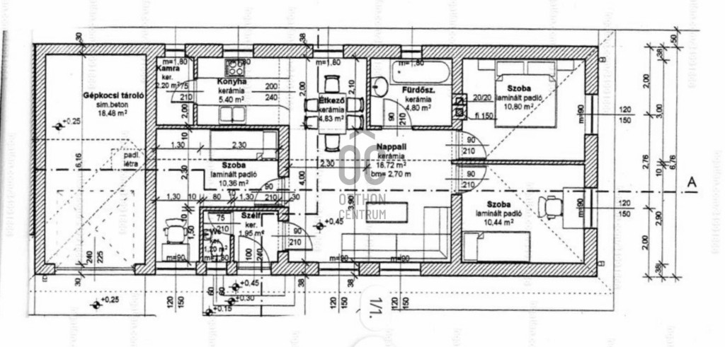
Mikepercsen eladó ikerház garázzsal!
Mikepercs központjához közel, aszfaltozott utcában kínálunk eladásra egy szigetelt ikerházat, amely egy 402 nm-es telken helyezkedik el.
Főbb jellemzői:
- Nappali + 3 szoba,
- Konyha-étkező, kamra, fürdőszoba, wc
- lakótér 62 nm +20 nm-es garázs
- 2006-ban épült, 2020-ban felújítva
- Megkímélt állapot
- Grafitos szigetelés
- Klíma
- Gázcirkó fűtés
- Buszmegálló a közelben
Kiváló választás családoknak, akik nyugodt, mégis központi környezetben keresnek otthont.
✅ Ügyfeleinket teljes körűen segítjük a vásárlás és eladás teljes folyamatában megbízható hiteltanácsadói és ügyvédi háttérrel.
Amennyiben felkeltette az érdeklődését, hívjon bizalommal – akár hétvégén is!
Mikepercs központjához közel, aszfaltozott utcában kínálunk eladásra egy szigetelt ikerházat, amely egy 402 nm-es telken helyezkedik el.
Főbb jellemzői:
- Nappali + 3 szoba,
- Konyha-étkező, kamra, fürdőszoba, wc
- lakótér 62 nm +20 nm-es garázs
- 2006-ban épült, 2020-ban felújítva
- Megkímélt állapot
- Grafitos szigetelés
- Klíma
- Gázcirkó fűtés
- Buszmegálló a közelben
Kiváló választás családoknak, akik nyugodt, mégis központi környezetben keresnek otthont.
✅ Ügyfeleinket teljes körűen segítjük a vásárlás és eladás teljes folyamatában megbízható hiteltanácsadói és ügyvédi háttérrel.
Amennyiben felkeltette az érdeklődését, hívjon bizalommal – akár hétvégén is!