Eladó Ház- házrész
Hirdetéskód: 8536288

Otthon Centrum - Debrecen - Hatvan utca

Felújításhoz személyi kölcsönt keres? Kalkuláljon itt! →
FIX 3% Program

Ez a hirdetés megfelelhet a FIX 3%-os programnak.
Tudj meg többet a részletekről itt.

83.00 m2
ALAPTERÜLET
4
SZOBASZÁM
nincs megadva
ÉPÍTÉS
Gáz (cirkó)
FŰTÉS
  • CSOK igénybe vehető nem
  • Tetőtér beépíthető nem
  • Építés éve 2026
  • Fűtés Gáz (cirkó)
  • Klíma nem
  • Szigetelt nem
Energetikai besorolás: Nincs meghatározva
A+++
A++
A+
A
B
C
D
E
F
G
H
I

Az MBH Bank személyi kölcsön ajánlata

Fizetett hirdetés
1 millió Ft
6 évre
20 585 Ft/hó
THM: 14.5%
Részletek →
2 millió Ft
6 évre
41 169 Ft/hó
THM: 14.5%
Részletek →
3 millió Ft
6 évre
61 754 Ft/hó
THM: 14.5%
Részletek →

A tájékoztatás nem teljes körű és nem minősül ajánlattételnek.

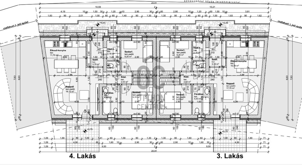
Az ingatlan leírása


Projekt bemutatása

DEBRECENTŐL 6 KM-RE MIKEPÉRCSEN ÚJ ÉPÍTÉSŰ 6 LAKÁSOS SORHÁZI LAKÁSOK SAJÁT KERT KAPCSOLATTAL ELADÓK!

Mikepércs, csendes, kertvárosias, aszfaltozott utcájában, új házak ölelésében épült. Közelében óvoda és bölcsőde, de a település központja is kényelmes séta távolságra található.

MŰSZAKI JELLEMZŐK:
- összközműves (víz, gáz, villany, csatorna)
- padló 12 cm EPS, a födém 30 cm szigetelés
- fafödém, a tető antracit színű Bramac betoncseréppel fedett
- a tégla falazatot 15 cm-es EPS külső szigeteléssel, 12 cm-es XPS
lábazati szigeteléssel látjuk el
- 3 fázisú elektromos áram
- 1 db beszerelt hűtő-fűtő klímaberendezés
- fűtés, melegvízellátás kondenzációs kazánnal, a hőleadás minden helyiségben padlófűtéssel lesz
megoldva
- fehér 3 rétegűkiváló hang- és hőszigetelő műanyag nyílászárók, dekorfóliás belső
ajtók szerelvénnyel
- elektromos alumínium redőny előkészítés, rejtett redőnytok kialakítással
- hálószobák, nappalik laminált parkettával, a többi helyiségek járólappal burkolt lesz
- hidegburkolat 8000 Ft/nm, melegburkolat 6000 Ft/nm árban választható
- utcafronti kerítés fehér Leier színezett zsalukőből, oszlopos kivitelben, betétekkel, elektromos
kaputelefonnal
- lakóegységet elválasztó kerítés fehér Leier szinezett zsalukő lábazat lemez felsőrésszel
- riasztórendszer előkészítése egységek nélkül
- térkővel burkolt járda lesz az épület körül 1 méter szélességben
- módosítható belső válaszfalak, választható belső hideg- melegburkolatok, szaniterek.

AZ ÁR NEM TARTALMAZZA:
Telekhányad ára, beépített bútorok, konyhabútor, tűzhely, főzőlap, elszívó, lámpatestek, mosogató, redőny, fúrt kút, füvesítés, kertépítés

KÖRNYÉK, KÖZLEKEDÉS:
Az ingatlanok Mikepércs biztonságos, belvárosi részében, csendes utcában helyezkednek el. Gépkocsival, autóbusszal könnyedén megközelíthetőek.

A tervezésnél fontos szempont volt az energia költségek alacsonyan tartása, mely a beépítésre tervezett anyagok és berendezések révén, a jelenkor követelményeinek maximálisan megfelel.
A kivitelezők nyitottak arra, hogy az Ön igényeihez alakítsák új otthonát.

VÁRHATÓ ÁTADÁS: 2026 SZEPTEMBER

Babaváró támogatás, CSOK igénybe vehető illetékmentesség és 5%-os áfa visszaigénylés mellett.
Bővebb tájékoztatásért, Műszaki tartalommal, helyszíni megtekintéssel kapcsolatban hívjon bizalommal!

Térkép

Ingatlan adásvétel ügyvédi díja
338 783 Ft
a hirdetésben szereplő ár alapján
  • A vételár 0,45%-a
  • Szerződéscsomag teljeskörű képviselettel
  • Ingyenes tulajdoni lap ellenőrzés
  • Az ÁFA-t már tartalmazza
Érdekel az ajánlat →
A tájékoztatás nem teljes körű és nem minősül ajánlattételnek. Minimum díj: 150 000 Ft, maximum díj: 600 000 Ft. A díj kizárólag lakóingatlan adásvételére vonatkozik.

A hirdető elérhetősége

Otthon Centrum - Debrecen - Hatvan utca

Szaszala Zsolt
+36 70 469