Eladó Ház- házrész
Hirdetéskód: 9250063
Eger Kertész utca 25 - OTP Ingatlanpont Iroda
82.00 m2
ALAPTERÜLET3
SZOBASZÁMnincs megadva
ÉPÍTÉSElektromos
FŰTÉS- CSOK igénybe vehető nem
- Tetőtér beépíthető nem
- Építés éve 1960
- Fűtés Elektromos
- Klíma nem
- Szigetelt nem
A+++
A++
A+
A
B
C
D
E
F
G
H
I
Az ingatlan leírása
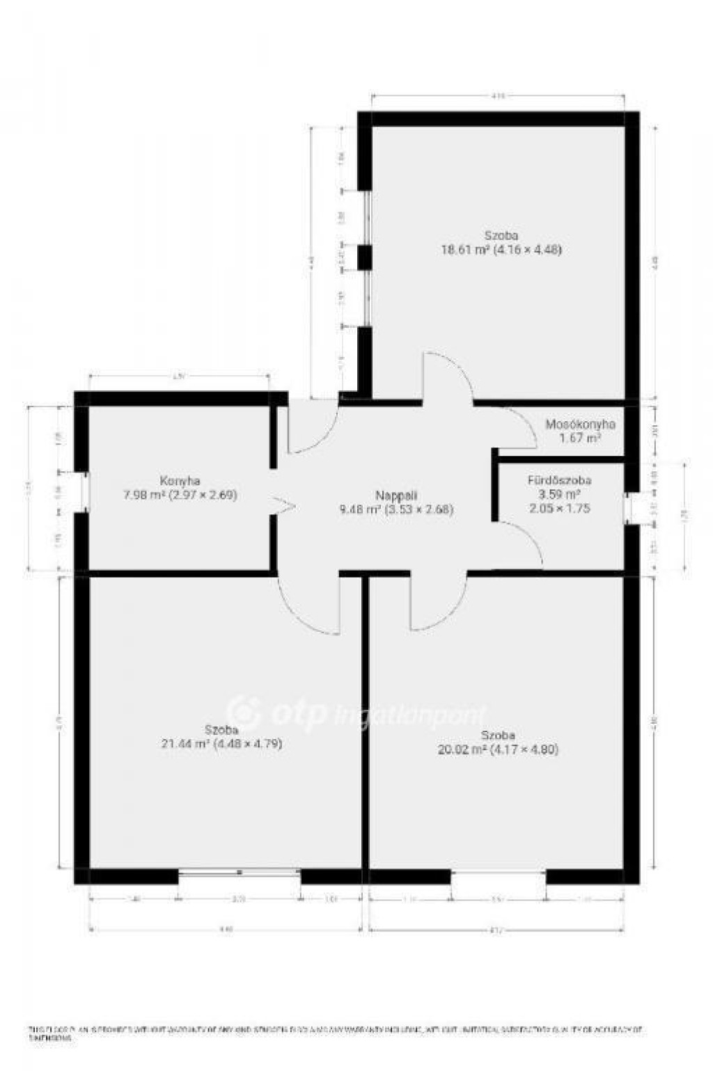
Eladó 83 m2-es, 3 szobás családi ház Mezőkövesden, műhellyel és garázzsal.
Mezőkövesden eladásra kínálok egy 83 nm alapterületű, jó elosztású, 3 szobás családi házat. Az ingatlan praktikus kialakítású, mindennapi használatra és vállalkozási célra egyaránt alkalmas.
A ház három külön nyíló szobával rendelkezik, amelyek közül kettőben hűtő-fűtő klíma biztosítja az egész éves komfortot. Az elosztás átgondolt, a helyiségek jól használhatók, világosak.
Az udvaron egy nagy méretű, szerelőműhelyként használt épület található, amely kiváló lehetőség vállalkozás működtetésére, ipari vagy szolgáltató tevékenységhez, de akár tárolásra is alkalmas. Emellett egy lemezgarázs is rendelkezésre áll.
Az ingatlan ideális választás:
- Családok számára.
- Otthoni vállalkozást indítóknak.
- Műhelyt, raktárt vagy telephelyet keresőknek.
OTP Banki hátterünknek köszönhetően finanszírozási igényekben (pl. Otthon Start Program, Babaváró, Falusi CSOK, CSOK Plusz, Lakáshitel, Személyi kölcsön stb.), illetve biztosítások tekintetében is díjmentesen, soron kívüli ügyintézéssel segítem ügyfeleim! Referenciaszám: M319584
Mezőkövesden eladásra kínálok egy 83 nm alapterületű, jó elosztású, 3 szobás családi házat. Az ingatlan praktikus kialakítású, mindennapi használatra és vállalkozási célra egyaránt alkalmas.
A ház három külön nyíló szobával rendelkezik, amelyek közül kettőben hűtő-fűtő klíma biztosítja az egész éves komfortot. Az elosztás átgondolt, a helyiségek jól használhatók, világosak.
Az udvaron egy nagy méretű, szerelőműhelyként használt épület található, amely kiváló lehetőség vállalkozás működtetésére, ipari vagy szolgáltató tevékenységhez, de akár tárolásra is alkalmas. Emellett egy lemezgarázs is rendelkezésre áll.
Az ingatlan ideális választás:
- Családok számára.
- Otthoni vállalkozást indítóknak.
- Műhelyt, raktárt vagy telephelyet keresőknek.
OTP Banki hátterünknek köszönhetően finanszírozási igényekben (pl. Otthon Start Program, Babaváró, Falusi CSOK, CSOK Plusz, Lakáshitel, Személyi kölcsön stb.), illetve biztosítások tekintetében is díjmentesen, soron kívüli ügyintézéssel segítem ügyfeleim! Referenciaszám: M319584