Eladó Ház- házrész
Hirdetéskód: 9325496
Eger Kertész utca 25 - OTP Ingatlanpont Iroda
Felújításhoz személyi kölcsönt keres? Kalkuláljon itt! →
Ez a hirdetés megfelelhet a FIX 3%-os programnak.
Tudj meg többet a részletekről itt.
140.00 m2
ALAPTERÜLET5
SZOBASZÁMnincs megadva
ÉPÍTÉSGáz (cirkó)
FŰTÉS- CSOK igénybe vehető nem
- Tetőtér beépíthető nem
- Építés éve 1980
- Fűtés Gáz (cirkó)
- Klíma nem
- Szigetelt nem
A+++
A++
A+
A
B
C
D
E
F
G
H
I
Az ingatlan leírása
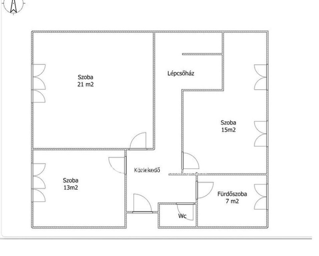
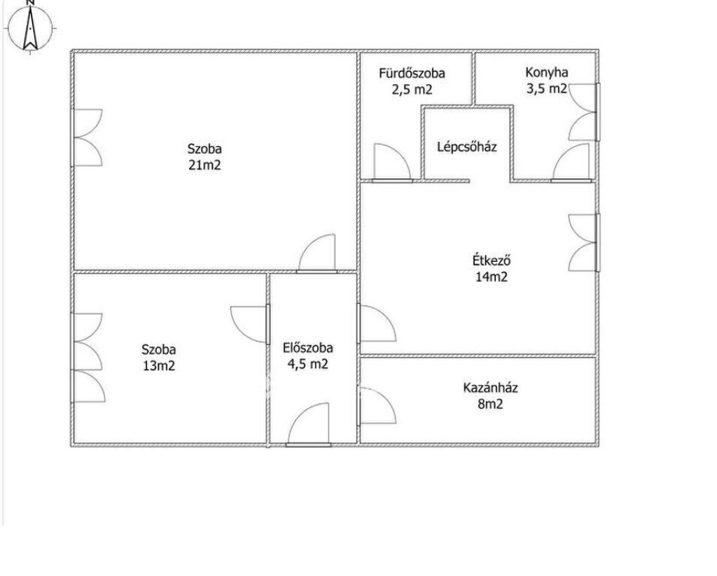
Borsod-Abaúj-Zemplén megye, Mezőkövesd városában, 516 m2-es telken kínálunk megvételre egy 140 m2-es, két szintes családi házat, amely kiváló választás lehet nagyobb családok vagy akár két generáció számára is.
Az ingatlan praktikus elrendezésének köszönhetően mindkét szint külön bejárattal rendelkezik, így akár külön lakrészként is használható.
Alsó szint helyiségei: tágas nappali, egy szoba, konyha, fürdőszoba
és a kazánház.
Az alsó szinten klíma biztosítja a kellemes hőmérsékletet a nyári hónapokban.
Felső szint helyiségei: 3 külön nyíló szoba és fürdőszoba található.
A fűtés: gázcirkó + vegyes tüzelésű kazánnal megoldott.
A nyílászárók dupla szárnyúak, melyekben az üveg kétrétegűre lett cserélve.
A tetőszerkezete jó állapotban van.
Az udvaron 3 beállásos garázs és fedett kocsibeálló található.
Ez az ingatlan remek lehetőség mindazok számára, akik tágas, jól alakítható otthont keresnek jó elhelyezkedéssel.
További információér hívjon bizalommal. A megtekintésre telefonos egyeztetés alapján van lehetőség. Ingatlanirodánk megbízható ügyvédi hátteret biztosítva segíti ügyfeleit, igény esetén Otthon Start, CSOK, babaváró hitelt, illetve kedvező hitelfeltételek ügyintézését is segíti.
Az energetikai tanúsítvány készítése folyamatban van, amint rendelkezésre áll, úgy azzal a hirdetés frissítésre kerül.
Az ingatlan praktikus elrendezésének köszönhetően mindkét szint külön bejárattal rendelkezik, így akár külön lakrészként is használható.
Alsó szint helyiségei: tágas nappali, egy szoba, konyha, fürdőszoba
és a kazánház.
Az alsó szinten klíma biztosítja a kellemes hőmérsékletet a nyári hónapokban.
Felső szint helyiségei: 3 külön nyíló szoba és fürdőszoba található.
A fűtés: gázcirkó + vegyes tüzelésű kazánnal megoldott.
A nyílászárók dupla szárnyúak, melyekben az üveg kétrétegűre lett cserélve.
A tetőszerkezete jó állapotban van.
Az udvaron 3 beállásos garázs és fedett kocsibeálló található.
Ez az ingatlan remek lehetőség mindazok számára, akik tágas, jól alakítható otthont keresnek jó elhelyezkedéssel.
További információér hívjon bizalommal. A megtekintésre telefonos egyeztetés alapján van lehetőség. Ingatlanirodánk megbízható ügyvédi hátteret biztosítva segíti ügyfeleit, igény esetén Otthon Start, CSOK, babaváró hitelt, illetve kedvező hitelfeltételek ügyintézését is segíti.
Az energetikai tanúsítvány készítése folyamatban van, amint rendelkezésre áll, úgy azzal a hirdetés frissítésre kerül.