Eladó Ház- házrész
Hirdetéskód: 9302108
Eger Kertész utca 25 - OTP Ingatlanpont Iroda
Felújításhoz személyi kölcsönt keres? Kalkuláljon itt! →200.00 m2
ALAPTERÜLET4
SZOBASZÁMnincs megadva
ÉPÍTÉSnincs megadva
FŰTÉS- CSOK igénybe vehető nem
- Tetőtér beépíthető nem
- Építés éve 2004
- Klíma nem
- Szigetelt nem
A+++
A++
A+
A
B
C
D
E
F
G
H
I
Az ingatlan leírása
AZONNAL BIRTOKBA VEHETŐ CSALÁDI HÁZ! 3 Külön lakrész lehetősége? Modernizált alapok Mezőkövesden!
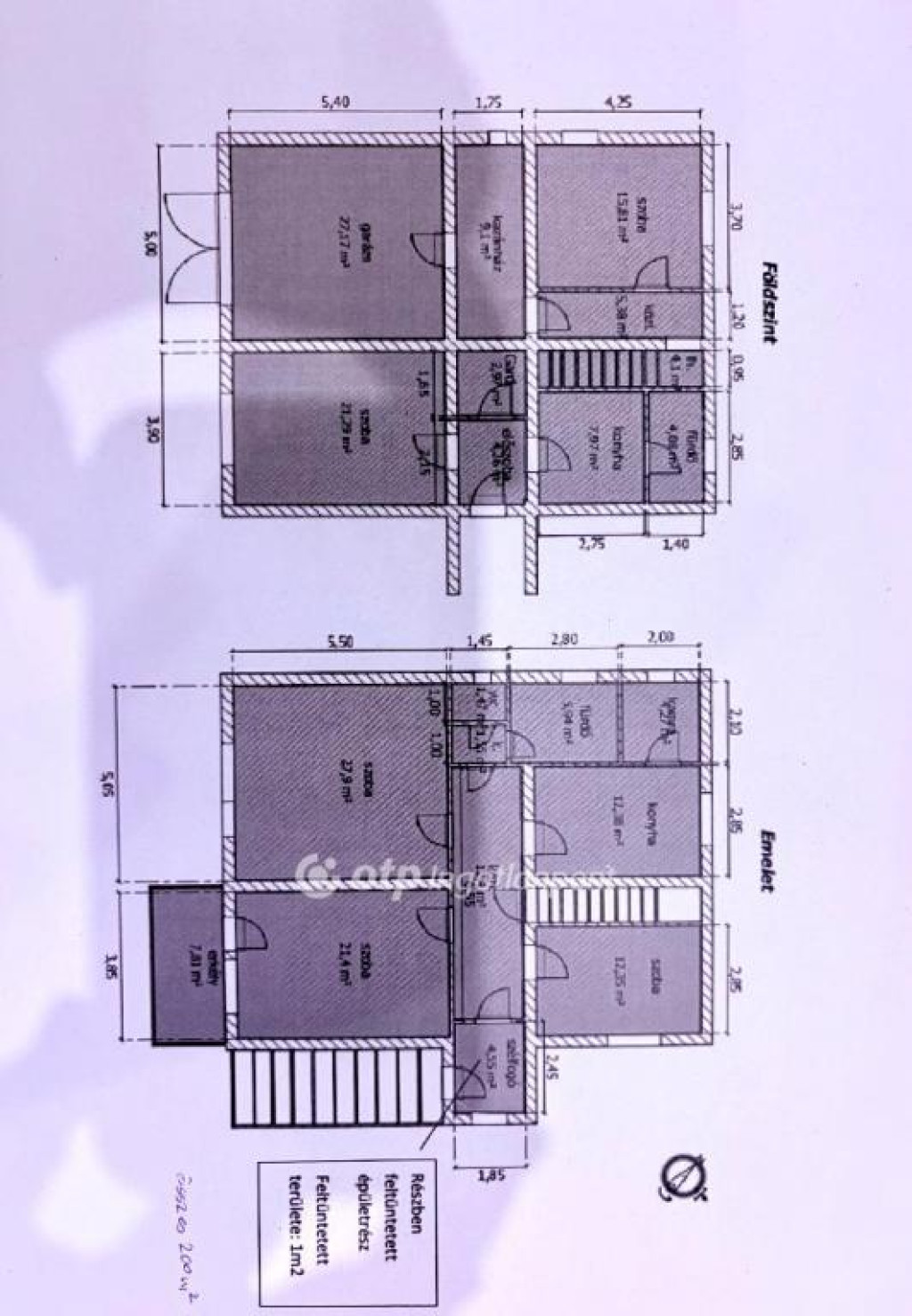
Eladásra kínálok Mezőkövesd kedvelt, csendes részén egy rendkívül sokoldalú, kétszintes, összesen 200 m2-es családi házat. Az ingatlan egyedi építészeti megoldásainak köszönhetően akár három generáció zavartalan együttélésére, vagy lakó- és vállalkozási egység együttes kialakítására is alkalmas. Az ingatlan tehermentes és a vételár kifizetése után azonnal birtokba vehető.
Kialakítása:
Földszinti garzon: A külső betonlépcső alatti bejárat egy teljesen szeparált lakrészbe vezet, ahol szoba, konyha, fürdőszoba és gardrób kapott helyet.
Fő lakrész és belső lépcsőház: Az emeletre egy külső betonlépcső vezet fel. Innen jutunk be az emeleti szintre, ahol egy belső lépcsőházon keresztül közvetlen átjárás biztosított az alsó szintre és a garázshoz is.
Garázs: A 27 m2-es, tágas garázsból szintén megoldott a belső feljutás a lakótérbe.
Műszaki tartalom ? A nehezén már túl van:
Az ingatlan gépészeti felújítása elkészült, a belső terek az esztétikai befejezésre várnak.
Teljesen új villanyhálózat ipari árammal, új vízvezetékek és korszerű fűtésrendszer.
Fűtése modern gáz-cirkó rendszer.
Nyílászárói újak, műanyag szerkezetűek, redőnnyel felszerelve.
A biztonságot kiépített kamerarendszer nyújtja. A telken rendezett udvart találunk, melyet a kerítés teljesen elzár az utcafrontról.
Az ingatlan mellett egy üres telek található, így garantált a nyugodt pihenést. A Zsóry-fürdő közelsége és a 3 külön bejárat miatt az ingatlan kiváló befektetés vendégháznak vagy üzleti célú hasznosításra is.
Amennyiben felkeltette érdeklődését az ingatlan, jöjjön el és győződjön meg személyesen is a leírtakról! Ingatlanirodánk ügyvédi háttérrel, CSOK, babaváró hitel, valamint kamatkedvezményes hitel ügyintézésével támogatja ügyfelei ingatlanvásárlását! Kérem érdeklődéskor hivatkozzon az M319635 számra.
Várom hívását, akár hétvégén is.
Eladásra kínálok Mezőkövesd kedvelt, csendes részén egy rendkívül sokoldalú, kétszintes, összesen 200 m2-es családi házat. Az ingatlan egyedi építészeti megoldásainak köszönhetően akár három generáció zavartalan együttélésére, vagy lakó- és vállalkozási egység együttes kialakítására is alkalmas. Az ingatlan tehermentes és a vételár kifizetése után azonnal birtokba vehető.
Kialakítása:
Földszinti garzon: A külső betonlépcső alatti bejárat egy teljesen szeparált lakrészbe vezet, ahol szoba, konyha, fürdőszoba és gardrób kapott helyet.
Fő lakrész és belső lépcsőház: Az emeletre egy külső betonlépcső vezet fel. Innen jutunk be az emeleti szintre, ahol egy belső lépcsőházon keresztül közvetlen átjárás biztosított az alsó szintre és a garázshoz is.
Garázs: A 27 m2-es, tágas garázsból szintén megoldott a belső feljutás a lakótérbe.
Műszaki tartalom ? A nehezén már túl van:
Az ingatlan gépészeti felújítása elkészült, a belső terek az esztétikai befejezésre várnak.
Teljesen új villanyhálózat ipari árammal, új vízvezetékek és korszerű fűtésrendszer.
Fűtése modern gáz-cirkó rendszer.
Nyílászárói újak, műanyag szerkezetűek, redőnnyel felszerelve.
A biztonságot kiépített kamerarendszer nyújtja. A telken rendezett udvart találunk, melyet a kerítés teljesen elzár az utcafrontról.
Az ingatlan mellett egy üres telek található, így garantált a nyugodt pihenést. A Zsóry-fürdő közelsége és a 3 külön bejárat miatt az ingatlan kiváló befektetés vendégháznak vagy üzleti célú hasznosításra is.
Amennyiben felkeltette érdeklődését az ingatlan, jöjjön el és győződjön meg személyesen is a leírtakról! Ingatlanirodánk ügyvédi háttérrel, CSOK, babaváró hitel, valamint kamatkedvezményes hitel ügyintézésével támogatja ügyfelei ingatlanvásárlását! Kérem érdeklődéskor hivatkozzon az M319635 számra.
Várom hívását, akár hétvégén is.