Eladó Ház- házrész
Hirdetéskód: 9262875
Eger Kertész utca 25 - OTP Ingatlanpont Iroda
Felújításhoz személyi kölcsönt keres? Kalkuláljon itt! →
Ez a hirdetés megfelelhet a FIX 3%-os programnak.
Tudj meg többet a részletekről itt.
83.00 m2
ALAPTERÜLET2
SZOBASZÁMnincs megadva
ÉPÍTÉSnincs megadva
FŰTÉS- CSOK igénybe vehető nem
- Tetőtér beépíthető nem
- Építés éve 1920
- Klíma nem
- Szigetelt nem
A+++
A++
A+
A
B
C
D
E
F
G
H
I
Az ingatlan leírása
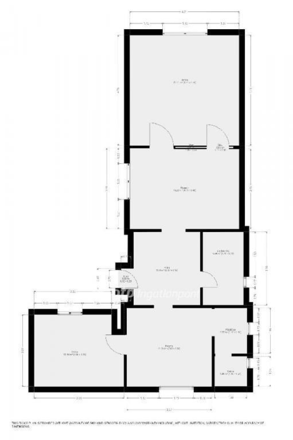
Eladó Mezőkövesden egy jó adottságokkal rendelkező, 2 szobás, 83 m2-es családi ház, 302 m2-es telken. Az ingatlan három hűtő-fűtő klímával felszerelt, fűtése kályhával és konvektorral megoldott. A nyílászárók műanyag hőszigeteltek, a falazat vegyes falazatú (vályog és szilikát).
A ház praktikus elrendezésű, az egyik szoba könnyedén ketté választható, így akár 3 szobássá is alakítható.
A telken külön utcafronti bejárattal rendelkező műhely található, amely ideális vállalkozásra, hobbira vagy tárolásra. A kertben ásott kút is rendelkezésre áll.
Főbb jellemzők:
83 m2 lakótér.
302 m2 telek.
2 szoba (könnyen 3 szobássá alakítható).
3 hűtő-fűtő klíma.
Kályha és konvektoros fűtés.
Műanyag nyílászárók.
Vegyes falazat (vályog és szilikát).
Külön utcafronti bejáratú műhely.
Ásott kút.
OTP Banki hátterünknek köszönhetően finanszírozási igényekben (pl. Otthon Start Program, Babaváró, Falusi CSOK, CSOK Plusz, Lakáshitel, Személyi kölcsön stb.), illetve biztosítások tekintetében is díjmentesen, soron kívüli ügyintézéssel segítem ügyfeleim! Referenciaszám: M317945
A ház praktikus elrendezésű, az egyik szoba könnyedén ketté választható, így akár 3 szobássá is alakítható.
A telken külön utcafronti bejárattal rendelkező műhely található, amely ideális vállalkozásra, hobbira vagy tárolásra. A kertben ásott kút is rendelkezésre áll.
Főbb jellemzők:
83 m2 lakótér.
302 m2 telek.
2 szoba (könnyen 3 szobássá alakítható).
3 hűtő-fűtő klíma.
Kályha és konvektoros fűtés.
Műanyag nyílászárók.
Vegyes falazat (vályog és szilikát).
Külön utcafronti bejáratú műhely.
Ásott kút.
OTP Banki hátterünknek köszönhetően finanszírozási igényekben (pl. Otthon Start Program, Babaváró, Falusi CSOK, CSOK Plusz, Lakáshitel, Személyi kölcsön stb.), illetve biztosítások tekintetében is díjmentesen, soron kívüli ügyintézéssel segítem ügyfeleim! Referenciaszám: M317945