Eladó Ház- házrész
Hirdetéskód: 9297290
Eger Kertész utca 25 - OTP Ingatlanpont Iroda
Felújításhoz személyi kölcsönt keres? Kalkuláljon itt! →
Ez a hirdetés megfelelhet a FIX 3%-os programnak.
Tudj meg többet a részletekről itt.
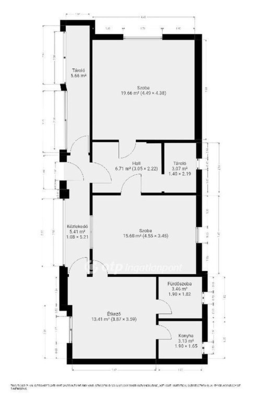
76.00 m2
ALAPTERÜLET2
SZOBASZÁMnincs megadva
ÉPÍTÉSGáz (konvektor)
FŰTÉS- CSOK igénybe vehető nem
- Tetőtér beépíthető nem
- Építés éve 1960
- Fűtés Gáz (konvektor)
- Klíma nem
- Szigetelt nem
A+++
A++
A+
A
B
C
D
E
F
G
H
I
Az ingatlan leírása
Eladásra kínálok egy 76 m2 alapterületű, 2 szobás, hagyományos hosszú parasztház jellegű ingatlant, amely egy 791 m2-es telken helyezkedik el.
Az épület falazata vályog és tégla, stabil szerkezeti alapokkal. A villamos hálózat részben felújításra került, a vezetékek műanyag védőcsövekben kerültek elhelyezésre a falakban, ami a további korszerűsítést is megkönnyíti.
Fűtése konvektorral megoldott. Az ingatlan korszerűsítést igényel, ugyanakkor méretének és adottságainak köszönhetően kiváló alap lehet egy saját igényekre szabott otthon kialakításához.
A 791 m2-es telek ideális kert, veteményes, pihenőkert vagy akár további fejlesztési lehetőségek kialakítására is.
Ajánlott mindazok számára, akik értéket látnak a hagyományos parasztház hangulatban, és egy jó adottságú ingatlant keresnek elérhető áron.
OTP Banki hátterünknek köszönhetően finanszírozási igényekben (pl. Otthon Start Program, Babaváró, Falusi CSOK, CSOK Plusz, Lakáshitel, Személyi kölcsön stb.), illetve biztosítások tekintetében is díjmentesen, soron kívüli ügyintézéssel segítem ügyfeleim! Referenciaszám: M322999
Az épület falazata vályog és tégla, stabil szerkezeti alapokkal. A villamos hálózat részben felújításra került, a vezetékek műanyag védőcsövekben kerültek elhelyezésre a falakban, ami a további korszerűsítést is megkönnyíti.
Fűtése konvektorral megoldott. Az ingatlan korszerűsítést igényel, ugyanakkor méretének és adottságainak köszönhetően kiváló alap lehet egy saját igényekre szabott otthon kialakításához.
A 791 m2-es telek ideális kert, veteményes, pihenőkert vagy akár további fejlesztési lehetőségek kialakítására is.
Ajánlott mindazok számára, akik értéket látnak a hagyományos parasztház hangulatban, és egy jó adottságú ingatlant keresnek elérhető áron.
OTP Banki hátterünknek köszönhetően finanszírozási igényekben (pl. Otthon Start Program, Babaváró, Falusi CSOK, CSOK Plusz, Lakáshitel, Személyi kölcsön stb.), illetve biztosítások tekintetében is díjmentesen, soron kívüli ügyintézéssel segítem ügyfeleim! Referenciaszám: M322999