Eladó Ház- házrész
Hirdetéskód: 9315326
OTP Ingatlanpont Csongrád
Felújításhoz személyi kölcsönt keres? Kalkuláljon itt! →63.00 m2
ALAPTERÜLET2
SZOBASZÁMnincs megadva
ÉPÍTÉSGáz (konvektor)
FŰTÉS- CSOK igénybe vehető nem
- Tetőtér beépíthető nem
- Építés éve 1940
- Fűtés Gáz (konvektor)
- Klíma nem
- Szigetelt nem
A+++
A++
A+
A
B
C
D
E
F
G
H
I
Az ingatlan leírása
Eladó felújítandó családi ház Mezőkovácsháza központjában
Békés vármegye kedvelt kisvárosában, Mezőkovácsháza központjában kínálom megvételre ezt a felújítandó, nagy telekkel rendelkező családi házat.
Az ingatlan kiváló elhelyezkedésű: iskola és óvoda mindössze néhány perc sétával elérhető, a városközpont minden fontos intézménye könnyen megközelíthető.
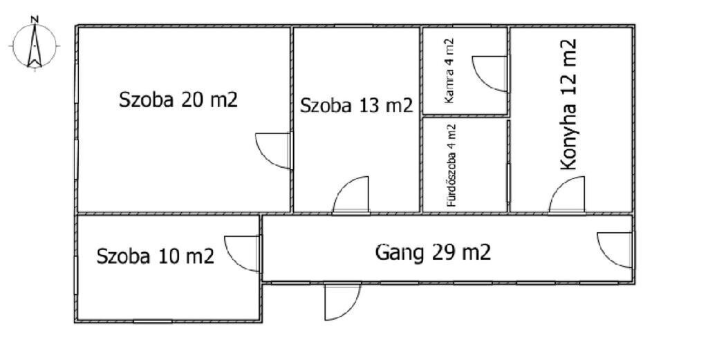
A 63 m?-es vályogház praktikus elrendezésű: 3 szoba, konyha, fürdőszoba és kamra található benne. Az épülethez tartozik egy 29 m?-es gang, amelyről két szoba és a konyha is nyílik, így akár több generáció számára is jól alakítható.
A ház fűtése konvektorral megoldott. Az ingatlan teljes közműellátottsággal rendelkezik, azonban egy korábbi csőtörés miatt a vízellátás jelenleg az udvaron, kerti csapról biztosított.
A telek tágas, az udvar rendezett és gondozott, amely kiváló lehetőséget biztosít kertészkedésre, pihenésre vagy további fejlesztésekre. Az udvaron több melléképület is található, amelyek tárolásra vagy gazdálkodásra is alkalmasak.
Az ingatlan bútorozott állapotban kerül értékesítésre, a berendezés a vételár részét képezi. A ház jelenlegi állapotában is azonnal birtokba vehető és költözhető, ugyanakkor felújítást igényel, így új tulajdonosa saját ízlésére formálhatja.
Az ingatlan jelenlegi állapotában hitelfelvételre nem alkalmas.
Ajánlom mindazoknak, akik kedvező áron keresnek jó elhelyezkedésű ingatlant, és nem riadnak vissza a felújítástól.
Békés vármegye kedvelt kisvárosában, Mezőkovácsháza központjában kínálom megvételre ezt a felújítandó, nagy telekkel rendelkező családi házat.
Az ingatlan kiváló elhelyezkedésű: iskola és óvoda mindössze néhány perc sétával elérhető, a városközpont minden fontos intézménye könnyen megközelíthető.
A 63 m?-es vályogház praktikus elrendezésű: 3 szoba, konyha, fürdőszoba és kamra található benne. Az épülethez tartozik egy 29 m?-es gang, amelyről két szoba és a konyha is nyílik, így akár több generáció számára is jól alakítható.
A ház fűtése konvektorral megoldott. Az ingatlan teljes közműellátottsággal rendelkezik, azonban egy korábbi csőtörés miatt a vízellátás jelenleg az udvaron, kerti csapról biztosított.
A telek tágas, az udvar rendezett és gondozott, amely kiváló lehetőséget biztosít kertészkedésre, pihenésre vagy további fejlesztésekre. Az udvaron több melléképület is található, amelyek tárolásra vagy gazdálkodásra is alkalmasak.
Az ingatlan bútorozott állapotban kerül értékesítésre, a berendezés a vételár részét képezi. A ház jelenlegi állapotában is azonnal birtokba vehető és költözhető, ugyanakkor felújítást igényel, így új tulajdonosa saját ízlésére formálhatja.
Az ingatlan jelenlegi állapotában hitelfelvételre nem alkalmas.
Ajánlom mindazoknak, akik kedvező áron keresnek jó elhelyezkedésű ingatlant, és nem riadnak vissza a felújítástól.