Eladó Ház- házrész
Hirdetéskód: 9223500
OTP Ingatlanpont Csongrád
Felújításhoz személyi kölcsönt keres? Kalkuláljon itt! →
Ez a hirdetés megfelelhet a FIX 3%-os programnak.
Tudj meg többet a részletekről itt.
167.00 m2
ALAPTERÜLET5
SZOBASZÁMnincs megadva
ÉPÍTÉSnincs megadva
FŰTÉS- CSOK igénybe vehető nem
- Tetőtér beépíthető nem
- Építés éve 1950
- Klíma nem
- Szigetelt nem
A+++
A++
A+
A
B
C
D
E
F
G
H
I
Az ingatlan leírása
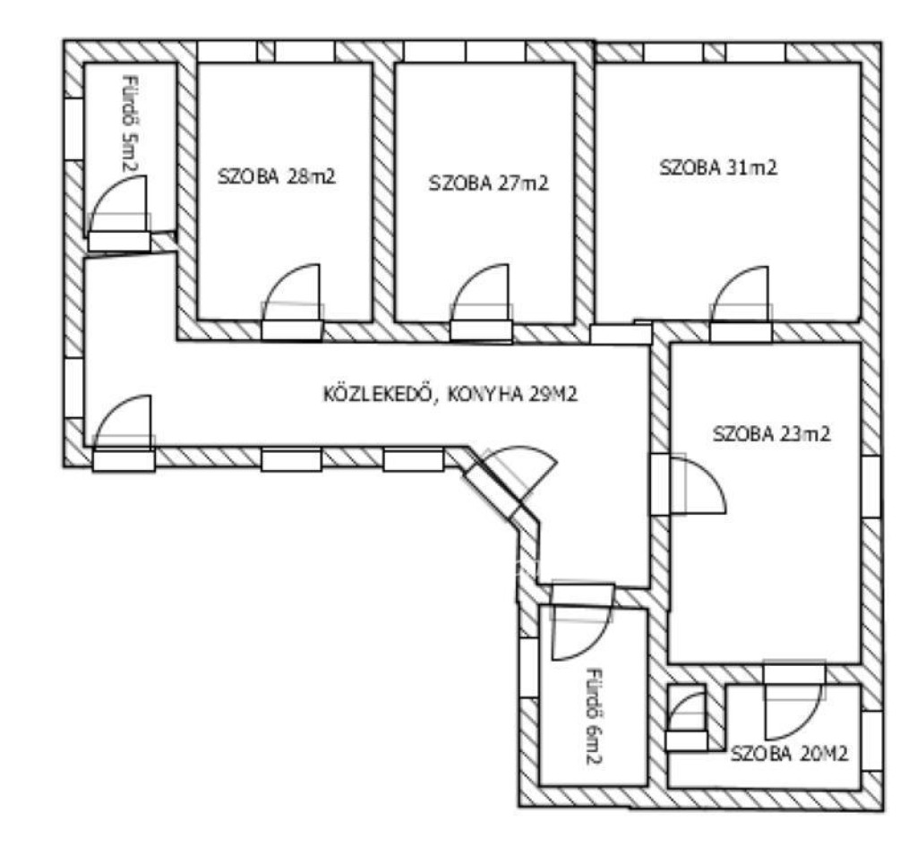
Mezőberény központjában eladó egy 167 m2-es, polgári stílusú családi ház, amely tökéletes alapot ad egy meleg, otthonos családi fészek kialakításához.
A nagy szobák és a tágas terek kényelmes életteret biztosítanak minden családtagnak, a hatalmas telek pedig ideális játékra, kertészkedésre és közös programokra.
A ház felújítást igényel, így teljes mértékben saját ízlésre formálható.
A ház tágas tereinek és sarki fekvésének köszönhetően kiváló alap lehet irodák, üzletek vagy befektetési célú ingatlan kialakítására.
Kedvező hitelajánlatokkal (CSOK+, BABAVÁRÓ hitel, piaci hitel, és szabadfelhasználású hitel) várjuk jelentkezését. Számos konstrukció közül választhatnak. Irodáink Szentes, Petőfi utca 12. (a buszmegálló felől) és Csongrád, Fő utca 54. szám alatt várja a személyes érdeklődőket. ***VÁLASSZUK KI EGYÜTT AZ ÖNNEK LEGMEGFELELŐBB AJÁNLATOT! BANKI SORBAN ÁLLÁS NÉLKÜL!
A nagy szobák és a tágas terek kényelmes életteret biztosítanak minden családtagnak, a hatalmas telek pedig ideális játékra, kertészkedésre és közös programokra.
A ház felújítást igényel, így teljes mértékben saját ízlésre formálható.
A ház tágas tereinek és sarki fekvésének köszönhetően kiváló alap lehet irodák, üzletek vagy befektetési célú ingatlan kialakítására.
Kedvező hitelajánlatokkal (CSOK+, BABAVÁRÓ hitel, piaci hitel, és szabadfelhasználású hitel) várjuk jelentkezését. Számos konstrukció közül választhatnak. Irodáink Szentes, Petőfi utca 12. (a buszmegálló felől) és Csongrád, Fő utca 54. szám alatt várja a személyes érdeklődőket. ***VÁLASSZUK KI EGYÜTT AZ ÖNNEK LEGMEGFELELŐBB AJÁNLATOT! BANKI SORBAN ÁLLÁS NÉLKÜL!