Eladó Ház- házrész
Hirdetéskód: 9310953

OTP Ingatlanpont Csongrád

Felújításhoz személyi kölcsönt keres? Kalkuláljon itt! →
FIX 3% Program

Ez a hirdetés megfelelhet a FIX 3%-os programnak.
Tudj meg többet a részletekről itt.

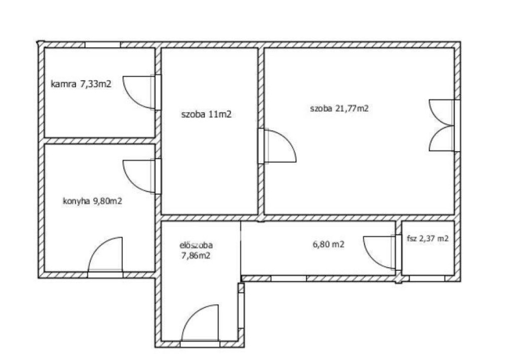
67.00 m2
ALAPTERÜLET
1
SZOBASZÁM
nincs megadva
ÉPÍTÉS
Egyéb fűtés
FŰTÉS
  • CSOK igénybe vehető nem
  • Tetőtér beépíthető nem
  • Építés éve 1950
  • Fűtés Egyéb fűtés
  • Klíma nem
  • Szigetelt nem
Energetikai besorolás: Nincs meghatározva
A+++
A++
A+
A
B
C
D
E
F
G
H
I

Az MBH Bank személyi kölcsön ajánlata

Fizetett hirdetés
1 millió Ft
6 évre
20 585 Ft/hó
THM: 14.5%
Részletek →
2 millió Ft
6 évre
41 169 Ft/hó
THM: 14.5%
Részletek →
3 millió Ft
6 évre
61 754 Ft/hó
THM: 14.5%
Részletek →

A tájékoztatás nem teljes körű és nem minősül ajánlattételnek.

Az ingatlan leírása

Csak az OTP Ingatlanpont kínálatában!!!!
Eladásra kínálunk Jász-Nagykun-Szolnok Vármegyében Mesterszálláson egy kis kertes házat, amely 1356m2-es telken helyezkedik el. Az ingatlant jelenleg méhész raktárként használják, de aköltözés folyamatban van. A ház 67m2-es, fürdószoba és Wc kialakításra került. Az ingatlan teljes felújítást igényel.
Ha felkeltettem érdeklődését, keressen bizalommal! Vagy esetleg ingatlant adna el? Akkor is keressen bátran a megadott elérhatőségeken! Akár ingyenes árkalkulációt is szívesen végzünk Önnek, további kötöttségek nélkül!
Igény esetén ügyvédet biztosítunk, valamint kedvező hitelajánlatokkal várjuk jelentkezését. Számos konstrukció közül választhatnak.

Térkép

Ingatlan adásvétel ügyvédi díja
150 000 Ft
a hirdetésben szereplő ár alapján
  • A vételár 0,45%-a
  • Szerződéscsomag teljeskörű képviselettel
  • Ingyenes tulajdoni lap ellenőrzés
  • Az ÁFA-t már tartalmazza
Érdekel az ajánlat →
A tájékoztatás nem teljes körű és nem minősül ajánlattételnek. Minimum díj: 150 000 Ft, maximum díj: 600 000 Ft. A díj kizárólag lakóingatlan adásvételére vonatkozik.

A hirdető elérhetősége

OTP Ingatlanpont Csongrád

Halász-Medve Zsuzsanna
+36 70 420